Property SEARCH

4 bed Link Detached House

£900,000

Faversham Road, Wichling, Kent

AVAILABLE


Property FEATURES

  • Former Coach House located in a delightful rural setting
  • Annexe, perfect for extended family or rental
  • Parking for numerous vehicles, motor home, boat or horse box
  • Easy access to Faversham, A2 and motorway links
  • Pretty, established secluded gardens
  • Above-average EPC energy efficiency rating C (71)
View Brochure

Property DESCRIPTION

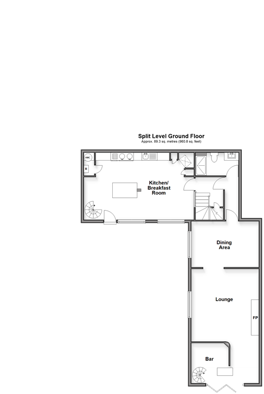
Dating back to the 18th Century is this charming attached Coach House that used to serve the local manor house. The property now offers flexible living accommodation which is currently arranged to provide an annexe which could ideally suit buyers with extended family, wanting office/studio space or that are looking for the opportunity to provide an income. There is plenty of character on offer, log burners and mature secluded gardens. In addition there is a large double garage and parking for numerous vehicles, motor home, boat or horse box! Room sizes:Kitchen/Breakfast Room: 23'0 x 14'3 (7.02m x 4.35m)Dining Area: 14'4 x 11'9 (4.37m x 3.58m)Lounge & Bar: 24'4 x 14'3 (7.42m x 4.35m)LandingBedroom 1: 14'10 x 11'3 (4.52m x 3.43m)Bedroom 4/Dressing RoomBathroomBedroom 2: 14'4 x 12'11 (4.37m x 3.94m)Inner HallBathroomBedroom 3: 14'5 x 11'9 (4.40m x 3.58m)Annexe - Lounge/Diner: 14'6 x 9'10 (4.42m x 3.00m)Kitchen: 9'9 x 5'9 (2.97m x 1.75m)Shower RoomAnnexe - Bedroom: 9'9 x 8'7 (2.97m x 2.62m)Conservatory: 15'5 x 10'11 (4.70m x 3.33m)Room 1: 17'10 x 13'4 (5.44m x 4.07m)Room 2Room 3: 33'0 x 17'10 (10.07m x 5.44m)Double Garage: 17'7 x 16'6 (5.36m x 5.03m)Cottage Style GardensParking For Numerous Vehicles 
Please note that the seller of this property is a person connected with Wards as defined in the Estate Agents Act 1979.
 
The information provided about this property does not constitute or form part of an offer or contract, nor may it be regarded as representations. All interested parties must verify accuracy and your solicitor must verify tenure/lease information, fixtures & fittings and, where the property has been extended/converted, planning/building regulation consents. All dimensions are approximate and quoted for guidance only as are floor plans which are not to scale and their accuracy cannot be confirmed. Reference to appliances and/or services does not imply that they are necessarily in working order or fit for the purpose.
 
The seller is a person connected with Wards as defined in the Estate Agents Act 1979. Legal advice should be taken to verify fixtures/fittings, planning, alterations and/or lease details. Appliances & services are untested, dimensions are approximate and floor plans are not to scale. Through a Homewise Home For Life Plan people aged 60+ can secure this property for up to 59% less, by purchasing a Lifetime Lease.
 
We are pleased to offer our customers a range of additional services to help them with moving home. None of these services are obligatory and you are free to use service providers of your choice. Current regulations require all estate agents to inform their customers of the fees they earn for recommending third party services. If you choose to use a service provider recommended by Wards, details of all referral fees can be found at the link below. If you decide to use any of our services, please be assured that this will not increase the fees you pay to our service providers, which remain as quoted directly to you.

Council Tax band: F

Tenure: Freehold

Property LOCATION

Show Map
Powered by Apex27