Property SEARCH

4 bed Terraced

£575,000

Lord Clyde View, Chatham, Kent

AVAILABLE


Property FEATURES

  • Terraced house set in a desirable location
  • Eco home with triple glazing, solar panels and more!
  • Cul-de-sac location with large green out the front
  • Ideal home for families needing more room due to the space and flexibility it offers
  • Perfect location due to close proximity to local station, amenities and schools
  • Above-average EPC energy efficiency rating B (82)
View Brochure

Property DESCRIPTION

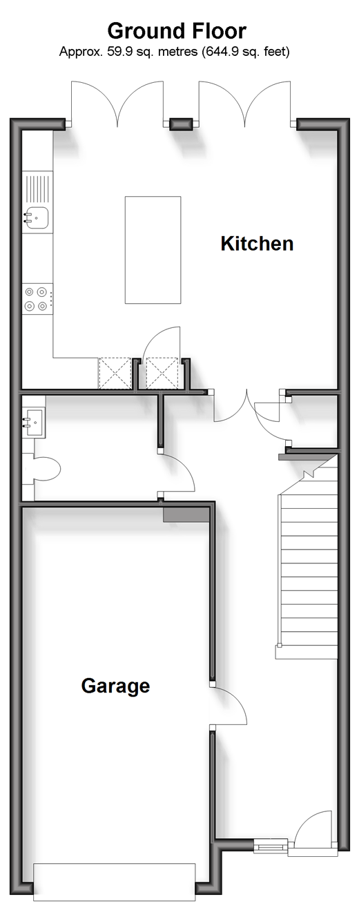
This terrace house is located in one of most desirable locations in Chatham. Offering spacious living, this property was built with the future in mind, it benefits from solar panel, triple glazing, underfloor heating and a heat recovery system. On top of having all these desirable features, the property is situated in a quiet cul-De-sac over looking what used to be the parade grounds but now is a large green with the added benefit of a play park for the Little ones, what make this really stand out is the near exclusivity of the grounds making it feel like the ideal place to want to make a home. Room sizes:Entrance HallKitchen: 16'9 x 13'8 (5.11m x 4.17m)Cloakroom: 6'5 x 5'7 (1.96m x 1.70m)Integral Garage: 20'0 x 9'10 (6.10m x 3.00m)LandingLounge: 18'7 x 13'8 (5.67m x 4.17m)Bedroom 3: 17'4 x 9'1 (5.29m x 2.77m)Bedroom 4: 13'9 x 7'4 (4.19m x 2.24m)Bathroom: 7'10 x 6'1 (2.39m x 1.86m)Bedroom 1: 16'9 x 11'7 (5.11m x 3.53m)En-suite Shower Room: 8'9 x 5'10 (2.67m x 1.78m)Bedroom 2: 16'9 x 10'10 (5.11m x 3.30m)En-suite: 8'9 x 5'11 (2.67m x 1.80m)DrivewayFront GardenRear Garden 
The information provided about this property does not constitute or form part of an offer or contract, nor may it be regarded as representations. All interested parties must verify accuracy and your solicitor must verify tenure/lease information, fixtures & fittings and, where the property has been extended/converted, planning/building regulation consents. All dimensions are approximate and quoted for guidance only as are floor plans which are not to scale and their accuracy cannot be confirmed. Reference to appliances and/or services does not imply that they are necessarily in working order or fit for the purpose.
 
We are pleased to offer our customers a range of additional services to help them with moving home. None of these services are obligatory and you are free to use service providers of your choice. Current regulations require all estate agents to inform their customers of the fees they earn for recommending third party services. If you choose to use a service provider recommended by Wards, details of all referral fees can be found at the link below. If you decide to use any of our services, please be assured that this will not increase the fees you pay to our service providers, which remain as quoted directly to you.

Council Tax band: E

Tenure: Freehold

Powered by Apex27