Property SEARCH

4 bed End of Terrace House

£325,000

Margate Road, Ramsgate, Kent

AVAILABLE


Property FEATURES

  • Being sold with no onward chain
  • Perfect family home or investment opportunity
  • Arranged over multiple floors
  • Close to great transport links which include the train station and bus routes
  • Sunny aspect rear garden
View Brochure

Property DESCRIPTION

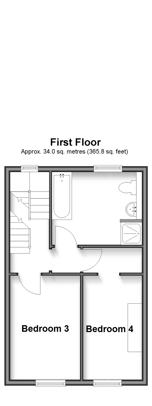
This wonderful end of terrace house would make an ideal family home or investment opportunity. The property is being sold with no onward chain. Arranged over multiple floors this offers flexible accommodation which is perfect for modern day family life. The property could benefit from modernisation to release its full potential. To the rear is a sunny aspect rear garden perfect for entertaining friends and family on the summer months. Room sizes:Entrance HallwayLounge: 14'1 x 12'1 (4.30m x 3.69m)Kitchen: 11'8 x 8'9 (3.56m x 2.67m)Dining Area: (L-shaped) 15'4 x 13'0 (4.68m x 3.97m) plus 9'1 x 8'4 (2.77m x 2.54m)CloakroomLandingBedroom 3: 12'8 x 7'1 (3.86m x 2.16m)BathroomBedroom 4: 11'11 x 8'1 (3.63m x 2.47m)LandingBedroom 1: 15'5 x 12'1 (4.70m x 3.69m)Bedroom 2: 11'9 x 10'2 (3.58m x 3.10m)Garden to Rear 
The information provided about this property does not constitute or form part of an offer or contract, nor may it be regarded as representations. All interested parties must verify accuracy and your solicitor must verify tenure/lease information, fixtures & fittings and, where the property has been extended/converted, planning/building regulation consents. All dimensions are approximate and quoted for guidance only as are floor plans which are not to scale and their accuracy cannot be confirmed. Reference to appliances and/or services does not imply that they are necessarily in working order or fit for the purpose.
 
We are pleased to offer our customers a range of additional services to help them with moving home. None of these services are obligatory and you are free to use service providers of your choice. Current regulations require all estate agents to inform their customers of the fees they earn for recommending third party services. If you choose to use a service provider recommended by Wards, details of all referral fees can be found at the link below. If you decide to use any of our services, please be assured that this will not increase the fees you pay to our service providers, which remain as quoted directly to you.

Council Tax band: B

Tenure: Freehold

Property LOCATION

Show Map
Powered by Apex27