Property SEARCH

1 bed Maisonette

£185,000

Rudge Close, Lordswood, Chatham, ME5

AVAILABLE


Property FEATURES

  • One Bedroom Maisonette
  • Garage En Bloc
  • Open Plan Living/Dining Area
  • Modern Fitted Kitchen
  • First Floor
  • Leasehold
  • Close to Local Amenities

Property DESCRIPTION

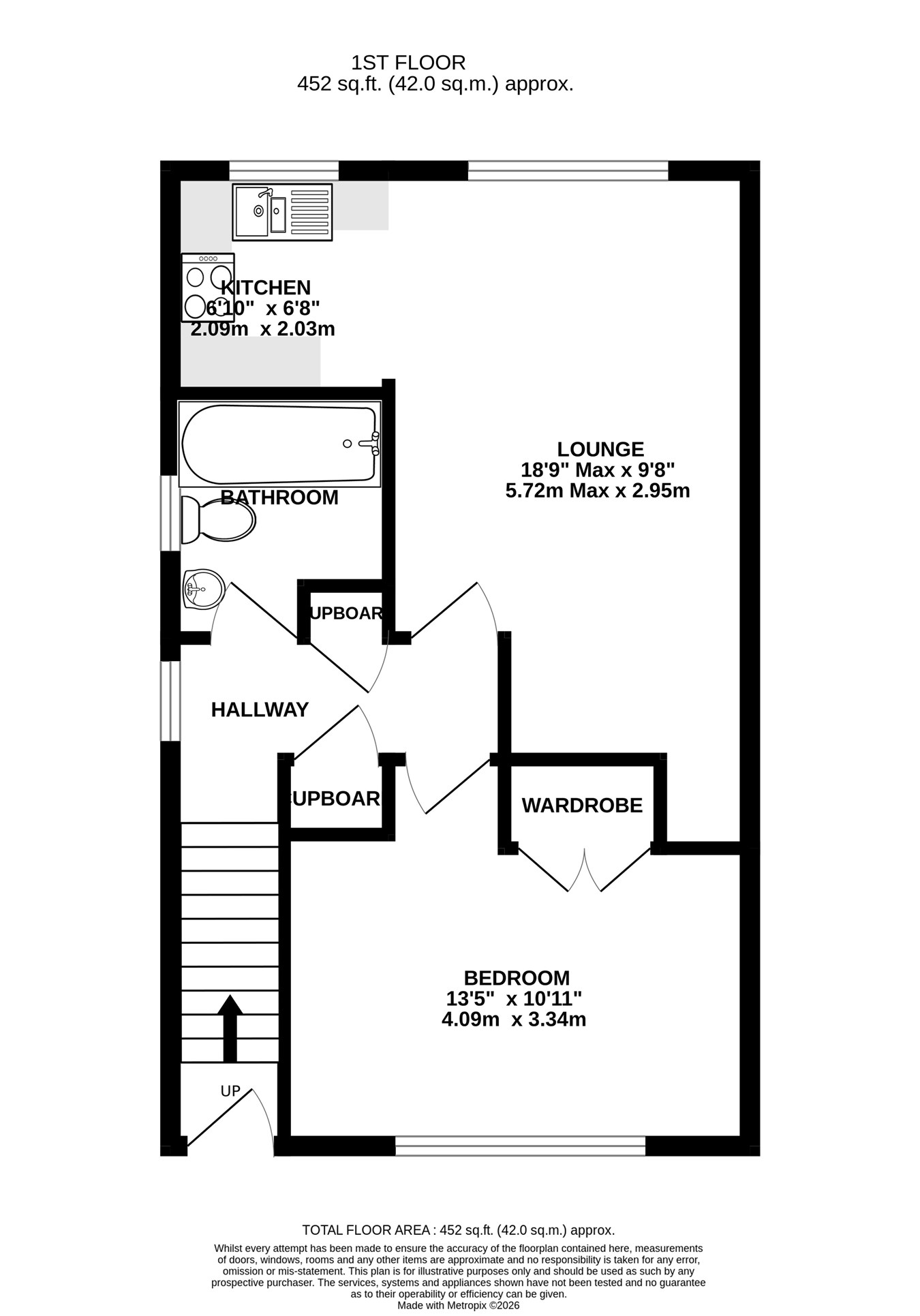
A great opportunity for the first time buyer or investor is this one bedroom first floor maisonette. Upon entering the property you have the stairs leading to the first floor where you are welcomed to a good size open plan lounge/dining area with a modern kitchen positioned to the left, offering a range of fitted wall and base units and integrated oven and hob. Continuing through the hallway you will find a generous sized bedroom with fitted wardrobes and bathroom with bath with shower over, a WC and wash hand basin. Externally the property offers a garage en-bloc with parking. This is ideal for downsizers or first time buyers. For further information please contact the Walderslade Sales Team.

First Floor


Hallway


Lounge
18' 9" x 9' 8" (5.71m x 2.95m)

Kitchen
6' 10" x 6' 8" (2.08m x 2.03m)

Bathroom
6' 9" x 6' 5" (2.06m x 1.96m)

Bedroom
13' 5" x 10' 11" (4.09m x 3.33m)

Property LOCATION

Show Map
Powered by Apex27