Property SEARCH

5 bed Detached Bungalow

£700,000

Bullockstone Road, Herne Bay

AVAILABLE


Property FEATURES

  • **Watch Our Narrated Video Walkthrough Tour**
  • CHAIN FREE - Large Detached Chalet Bungalow On 0.56 Acre Plot
  • 2,339 Sq Ft (217.33 Sq M) Of Professional Grade Outbuilding Space
  • Five Double Bedrooms With Ground Floor Bathroom & En-Suite
  • Incredible Modern Kitchen With Vaulted Ceiling & Courtyard Access
  • Beautiful 475' Rear Garden With Southerly Aspect
  • Electric Gated Entrance to Exceptional Driveway
  • Short Drive To The Seafront At Herne Bay & Whitstable
  • Secondary School & Primary School Nearby
  • A Stunning Home Offering A Truly Unique Lifestyle Opportunity
View Brochure

Property DESCRIPTION

NO FORWARD CHAIN...
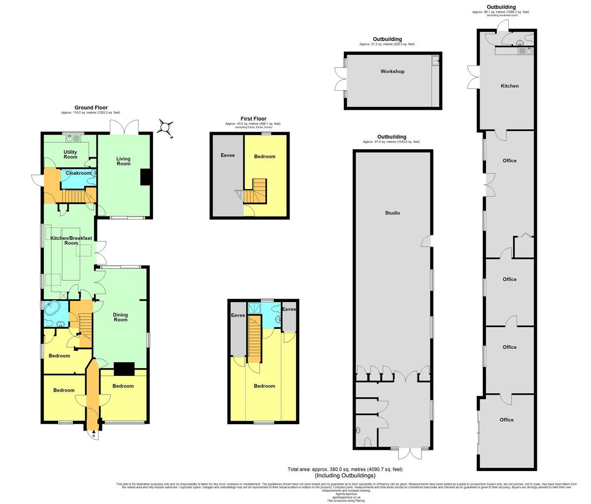
Situated within the hamlet of Bullockstone and set back from the road behind secure electric gates, 'Rosecraig' is simply one of the best lifestyle options around. With vehicular access through the length of this 636' plot with 2,339 sq ft (217.33 sq m) of professional grade outbuildings, this unique home offers a rare combination of expansive living space with opportunity to run a business well away from the house itself, but within the comfort of your own grounds. This is not an opportunity you want to miss.
The heart of the home is a new and modern style kitchen featuring vaulted ceilings and direct access to a central courtyard. The ground floor is designed for flexibility, offering a large dining/family room, a study, and a cosy lounge.
The sleeping arrangements are uniquely configured via two separate staircases. The first leads to a private main suite with an en-suite.
The second provides access to the fourth bedroom, while the ground floor features two further bedrooms and a bedroom/dressing room or study.
The grounds are a true standout, enjoying a Southerly aspect and split into two distinct zones. The initial landscaped garden leads to a summerhouse, chicken coop, and a 20ft workshop. Beyond lies the property's unique feature; The Studio Complex (48ft): Heated via LPG, comprising a studio lounge, WC, and changing rooms?ideal for a home business, gym, or annex.
The Main Outbuilding (96ft): Currently divided into five rooms plus a WC, offering incredible scope for collectors, creators, or commercial use (STPP).
Call the exclusive sole agent Kent Estate Agencies today to book your viewing.

Location:
Bullockstone is a little semi-rural hamlet, surrounded by farmland, dating from the 17th century, and situated just to the west of Herne, and within a short driving distance of Herne Bay, Canterbury and Whitstable.
The coastal town of Herne Bay is just under two miles away with a good range shopping facilities that include mainstream retail outlets and independent boutiques. There is also a good choice of leisure activities and a historic pier together with the worlds first freestanding clocktower.
The town also boasts a rowing and sailing club, a football club in the Kent league, a local cinema and a swimming pool. The picturesque Memorial Park also has tennis and basketball courts, a small lake, a children's play area and a sports field. There is a mainline railway station with a regular service to London Victoria and St. Pancras and the town enjoys excellent road links with the A299 (Thanet Way) providing access to both the coast and London via the A2/M2 motorway network.
The historic village of Herne is very close by with its mix of period homes and modern architecture. The 15th century church of St. Martins dominates the heart of the village together with two pubs which includes a craft alehouse , argued to be the the smallest in England.
There is also a post office/store, dental surgery, primary school and village hall next to a large playing field. The area is surrounded by lovely walks and is on the 'Triangle' bus route which has very regular service to Canterbury and Herne Bay.
The nearby cathedral city of Canterbury is just five miles away and offers an even wider range of shopping, educational leisure amenities and two hospitals.
The fashionable harbour town of Whitstable is also just five miles away with a superb selection of cafes, bars and seafood restaurants that the town is renown for. You will also find a vibrant selection of independent boutiques as well as other leisure amenities.

Approved Property Details   


Hallway   
Power points.

Lounge    10' 5 x 17' 9 (3.18m x 5.42m)
Patio doors to courtyard. French double doors to rear garden. Power points.

Dining Room    20' 3 x 11' 5 (6.18m x 3.36m)
Feature fireplace with log burning stove. Window to side & rear. Radiator. Power points. Wood flooring. French doors to courtyard.

Kitchen    20' 6 x 11' 5 (6.25m x 3.48m)
The kitchen is planned with a matching range of wall and base units arranged on two walls. 1 1/2 bowl sink unit. Work surfaces with drainer grooves & upstands. Gas hob with extractor cooker hood above and built-in fan assisted electric double oven. Integrated dishwasher. Window to side. Power points. Radiator. Wood flooring. Door to courtyard.

Utility Room    11' 6 x 7' 2 (3.51m x 2.19m)
Range of matching wall and base units. Bowl sink unit. Power points. Radiator. Window to rear. Plumbing for washing machine. Tiled flooring.

Cloakroom   
Suite comprising wash hand and close coupled WC. Local splash back tiling. Radiator. Tiled flooring.

Bedroom One    9' 9 x 8' 9 (2.98m x 2.67m)
Window to front. Radiator. Power points. Wood flooring.

Bedroom Two    11' 0 x 9' 9 (3.36m x 2.98m)
Window to front. Radiator. Power points.

Bedroom Three    9' 9 x 8' 2 (2.98m x 2.49m)
Window to side. Cupboard housing Worcester Bosch boiler. Radiator. Power points. Wood flooring.

Bedroom Four    20' 6 x 14' 3 (Narrowing to 7'2) (6.25m x 4.35m)
Window to front. Cupboard. Radiator. Power points. Wood flooring.

En-suite to Bedroom Four   
Suite in white comprising separate fully tiled shower cubicle with close coupled WC. Heated towel rail. Partially tiled walls. Frosted window to rear. Laminate flooring. Extractor fan.

Bedroom Five    17' 8 x 9' 17 (Narrows to 3'9) (5.39m x 3.18m)
Window to rear. Cupboard. Radiator. Power points.

Bathroom   
Suite in white comprising panelled bath with hand held shower attachment. Pedestal wash hand basin with close coupled WC. Radiator. Partially tiled walls. Frosted window to side. Tiled flooring.

Workshop    20' 0 x 11' 4 (6.1m x 3.46m)


Outbuilding One    11' 5 x 61' 2 (3.48m x 18.65m)
Studio incorporating a separate lounge area and WC.
Studio: Wall of fitted cupboards. Three Radiators. Windows to side.
Lounge: Window to side. Double doors to courtyard area. Radiator.
WC: Suite in white comprising pedestal wash hand basin and close coupled WC. Radiator. Wall mounted LPG boiler supplying hot water and central heating.

Outbuilding Two    12' 0 x 96' 0 (3.66m x 29.27m)
The outbuilding is divided into five rooms plus separate WC. Double glazed windows and doors. Power and light. Broadband and phone line. Slimline electric heaters.

Total Plot Size   
0.56 Acre. In Metres: 197.19. In Feet: 646' 11

Main Services
The following mains services are connected to the property electricity, water, gas, drainage and a telephone line. All services will be subject to the appropriate companies transfer conditions.

Heating
Central heating is provided by a gas fired boiler and hot water radiators as indicated in these particulars.

Windows
The windows are UPVC double glazed units.

Tenure
The property is to be sold Freehold with vacant possession.

Council Tax
We are advised by the Valuation Office that the property is currently within Council Tax Band C. The amount payable under tax band C for the year 2026/2027 is £2,131.55.

Viewing
Please ring us to make an appointment. We are open from 9am to 6pm Monday to Friday, 9am to 5pm Saturdays and by appointment only on Sundays.

Agent Notes
Kent Estate Agencies gives notice for themselves and for the sellers of the property, whose agents they are that any floor plans, plans or mapping and measurements are approximate quoted in metric with imperial equivalents. All are for general guidance only and whilst every attempt has been made to ensure accuracy, they must not be relied on. The measurements are provided in accordance with the R.I.C.S. Code of Measuring Practice 6th edition.
We have not carried out a structural survey and the services, appliances and specific fittings have not been tested and therefore no guarantee can be given that they are in working order. Photographs are reproduced for general information and it must not be inferred that any item shown is included with the property. Prospective purchasers or lessees should seek their own professional advice. Kent Estate Agencies retain the copyright in all advertising material used to market this property.
No person in the employment of Kent Estate Agencies has any authority to make any representation or warranty whatever in relation to this property. Purchase prices, rents or other prices quoted are correct at the date of publication and, unless otherwise stated, exclusive of VAT.
For a free valuation of your property contact the number on this brochure.

Property LOCATION

Show Map
Powered by Apex27