Property SEARCH

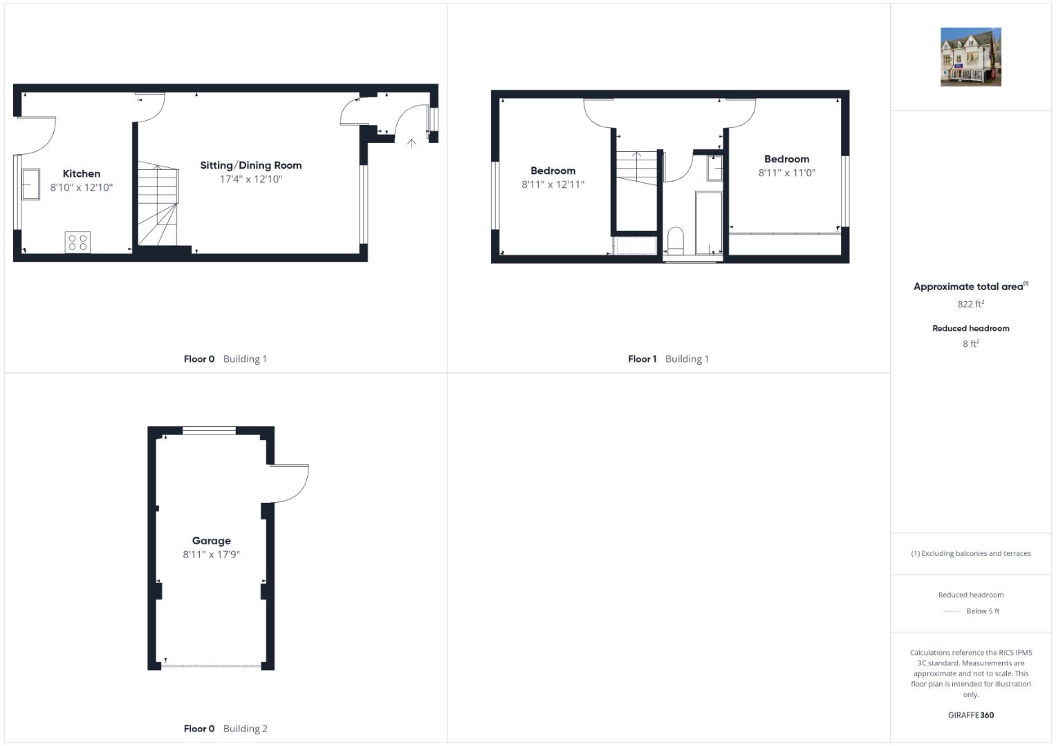
2 bed Semi-detached House

£275,000

Knott Crescent, Willesborough, Ashford TN24 0UF

FOR SALE


Property FEATURES

  • SEMI DETACHED HOUSE
  • TWO BEDROOMS
  • CORNER PLOT POSITION
  • DETACHED GARAGE & DRIVEWAY
  • GAS CENTRAL HEATING & DOUBLE GLAZING
  • NO ONWARD CHAIN
  • CLOSE TO WILLIAM HARVEY HOSPITAL
  • SHORT WALK FROM LOCAL SCHOOLS

Property DESCRIPTION

Sitting on a pleasant corner plot position is this delightful semi-detached home available for sale with no onward chain.
The property comprises an entrance porch, sitting/dining room, kitchen, two double bedrooms and bathroom/WC. The rear garden enjoys a secluded feel leading on to the detached garage with driveway for off road parking. Gas central heating and double glazing are installed whilst the property is ideally located for access to local schools, transport links and William Harvey hospital.

Property LOCATION

Show Map
Powered by Apex27