Property SEARCH

3 bed Detached House

£425,000

Whitehall Way, Sellindge, Ashford TN25 6ET

FOR SALE


Property FEATURES

  • ATTRACTIVE DETACHED HOUSE
  • CORNER PLOT OVERLOOKING FIELDS
  • THREE BEDROOMS
  • TWO EN SUITE & GF SHOWER ROOM/WC
  • SITTING ROOM & DINING ROOM
  • DOUBLE GLAZED CONSERVATORY
  • WELL MAINTAINED SECLUDED GARDEN
  • GARAGE & DRIVEWAY
  • QUIET CUL DE SAC POSITION

Property DESCRIPTION

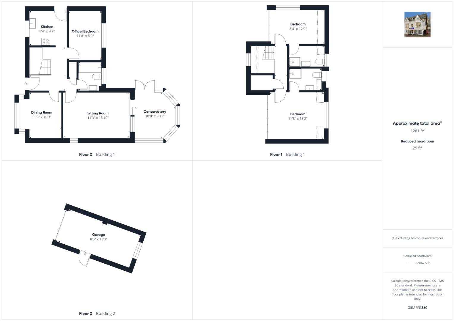
A most impressive detached home in a quiet cul de sac setting adjoining open fields.
This charming and surprisingly spacious property comprises an entrance hall, sitting room, dining room, conservatory, fitted kitchen, ground floor bedroom/study, bathroom with two double bedrooms to the first floor, both en suite.
The gardens have been immaculately maintained and enjoy a secluded feel with the property also benefiting from a a detached garage and driveway.
The convenient Co-Op store is only a few minutes walk and you will find bus routes easily accessible.
The village enjoys a very active community with tennis, bowls and various sports and social groups.
Residents share 1/12 of the adjoining field.

Property LOCATION

Show Map
Powered by Apex27