Property SEARCH

5 bed Detached House

£750,000

Stanley Road, Whitstable

FOR SALE


Property FEATURES

  • Substantial Detached Family Home
  • Private No-Through Road
  • Moments from Duncan Downs
  • Walking Distance of the Town & Station
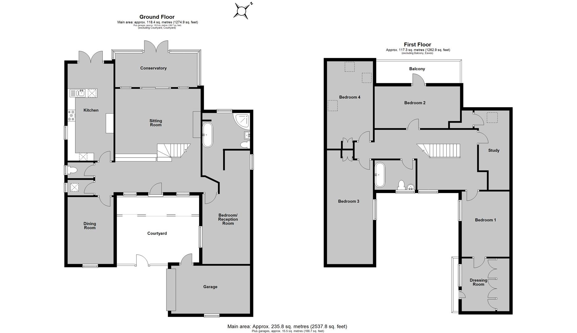
  • 2537 sq ft (235 sq m) of Spacious & Versatile Acco
  • Kitchen/Breakfast Room
  • 3 Reception Rooms
  • 5 Bathrooms & 3 Bathrooms
  • 65ft (20m) Westerly Aspect Garden & Balcony
  • Single Garage & Ample Off-Street Parking

Property DESCRIPTION

A substantial detached family home ideally situated on a private no-through road moments from Duncan Downs and conveniently positioned within walking distance of the bustling town centre and station (0.9 miles). The seafront, supermarkets, and Estuary View medical centre are all easily accessible.

The spacious and versatile accommodation extends to 2537 sq ft (235 sq m) and is arranged to provide a generous sitting room a wood burning stove and doors leading to a conservatory, a dining room, a kitchen/breakfast room with doors opening to a raised decked terrace, a double bedroom with en-suite bathroom (currently used as a reception room), a cloakroom and a utility cupboard.

To the first floor, a large central landing space leads to four further bedrooms, one of which benefits from a balcony providing a perfect vantage point to enjoy the views and Whitstable s famous sunsets, a family bathroom, and a study.

The mature and established rear garden enjoys a Westerly aspect and extends to 65ft (20m), incorporating raised decked seating areas and an expanse of lawn edged by mature planting. A block paved driveway provides ample off-street parking and access to a single garage.

Property LOCATION

Show Map
Powered by Apex27