Property SEARCH

1 bed Detached Bungalow

£270,000

Bentley Avenue, Herne Bay, CT6 8EA

AVAILABLE


Property FEATURES

  • Detached Bungalow
  • Large Double Bedroom
  • Off Road Parking
  • No Forward Chain
  • Spacious Lounge
  • Refurbished Throughout
  • Rear Garden
  • Close To The Seafront
  • Private Development
  • EPC Rating: E 46

Property DESCRIPTION

Description
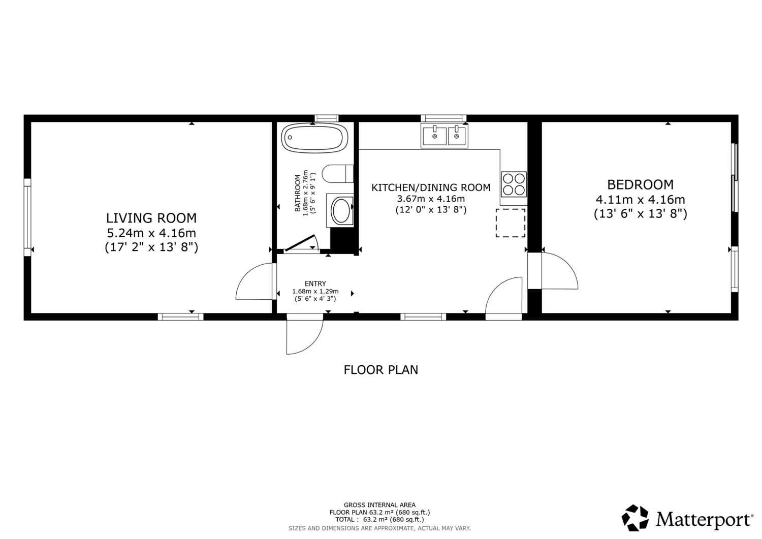
Offered for sale with no forward chain, this detached one bedroom bungalow on Bentley Avenue in the popular Studd Hill area of Herne Bay has been refurbished by the current owner and provides smart, well-presented accommodation that is ready to move into.

The property opens into a generous lounge/diner positioned to the front, creating an inviting main living space with plenty of room to relax and entertain. Set in the middle of the bungalow is the kitchen/breakfast room, which is arranged as a practical and sociable space and benefits from a door leading out to the side of the property.

To the rear, the large double bedroom enjoys a pleasant outlook over the garden and has the added benefit of a door opening directly outside. Completing the internal accommodation is a modern bathroom fitted with a stylish roll top bath, adding character and a touch of luxury.

Outside, there is a rear garden providing space to enjoy the warmer months, while to the front a driveway offers off-road parking.

Bentley Avenue is well placed within Studd Hill, a sought-after private coastal estate on the western side of Herne Bay, just moments from the seafront. The area is popular for its relaxed seaside setting, with Studd Hill beach and promenade close by, while Herne Bay town centre offers a range of shops, cafés and everyday amenities. Herne Bay railway station provides services on the Chatham Main Line, and local bus links serve the Studd Hill area, making it convenient for travel into Herne Bay, Whitstable and Canterbury.

WHAT TO DO IF YOU HAVE A PROPERTY TO SELL If you're interested in buying a property and have one to sell, don't worry - we're here to help! Our estate agents can provide you with a free property valuation and assist you throughout the selling process. We understand that selling a property can be stressful, which is why we offer this service to make things easier for you. We're committed to providing you with a seamless buying and selling experience, and we're always here to help. So why wait? Get in touch with us today and let us guide you through the process!


WHAT TO DO NEXT To view our properties, please book an appointment beforehand. If you make an acceptable offer, please note that we require some documents from you before taking the property off the market. These include a copy of your identification, a copy of your mortgage agreement in principle, proof of deposit, and proof of cash if you're purchasing without a mortgage. If you're using funds from a related sale, we'll need the name of your selling agent, and the name of your solicitor, who will act for you in the purchase. Once we have all these, we can remove the property from the market.


NOTE Please note that sizes and dimensions provided are approximate and may vary from the actual measurements.


NOT READING THIS ON THE AGENTS WEBSITE? Don't miss out on the complete experience of this property. See all it has to offer by clicking the 'Explore the full 3D tour from this Agent' link below.

Property LOCATION

Show Map
Powered by Apex27