Property SEARCH

3 bed End of Terrace House

£350,000

Spenlow Drive, Walderslade Woods, Chatham, ME5

AVAILABLE


Property FEATURES

  • Walderslade Woods
  • No Forward Chain
  • 3 Bedroom End of Terrace
  • Immaculate Condition
  • Kitchen/Diner
  • Cul-De-Sac Position
  • Garage & Driveway
  • Ideal for First Time Buyer or Families

Property DESCRIPTION

Being offered with no forward chain is this beautifully presented three bedroom house situated in a quiet cul-de-sac position within Walderslade Woods. The property benefits from being well maintained throughout and is ready to move into.

The ground floor comprises of an entrance porch which leads to the good size lounge with new fitted carpets. This follows through to a good size kitchen/diner which has a range of fitted wall and base units with integrated oven & hob, fridge and washing machine to remain. There are also ample worksurfaces.

Upstairs you are welcomed to a bright and airy landing with three good size bedrooms and a family bathroom.

Moving outside the rear garden has low maintenance in mind with patio area and shrub borders with access to the garage. To the front you have a garage and driveway for two cars.

Must be viewed to fully appreciate. Please call the Walderslade Sales Team for further details.

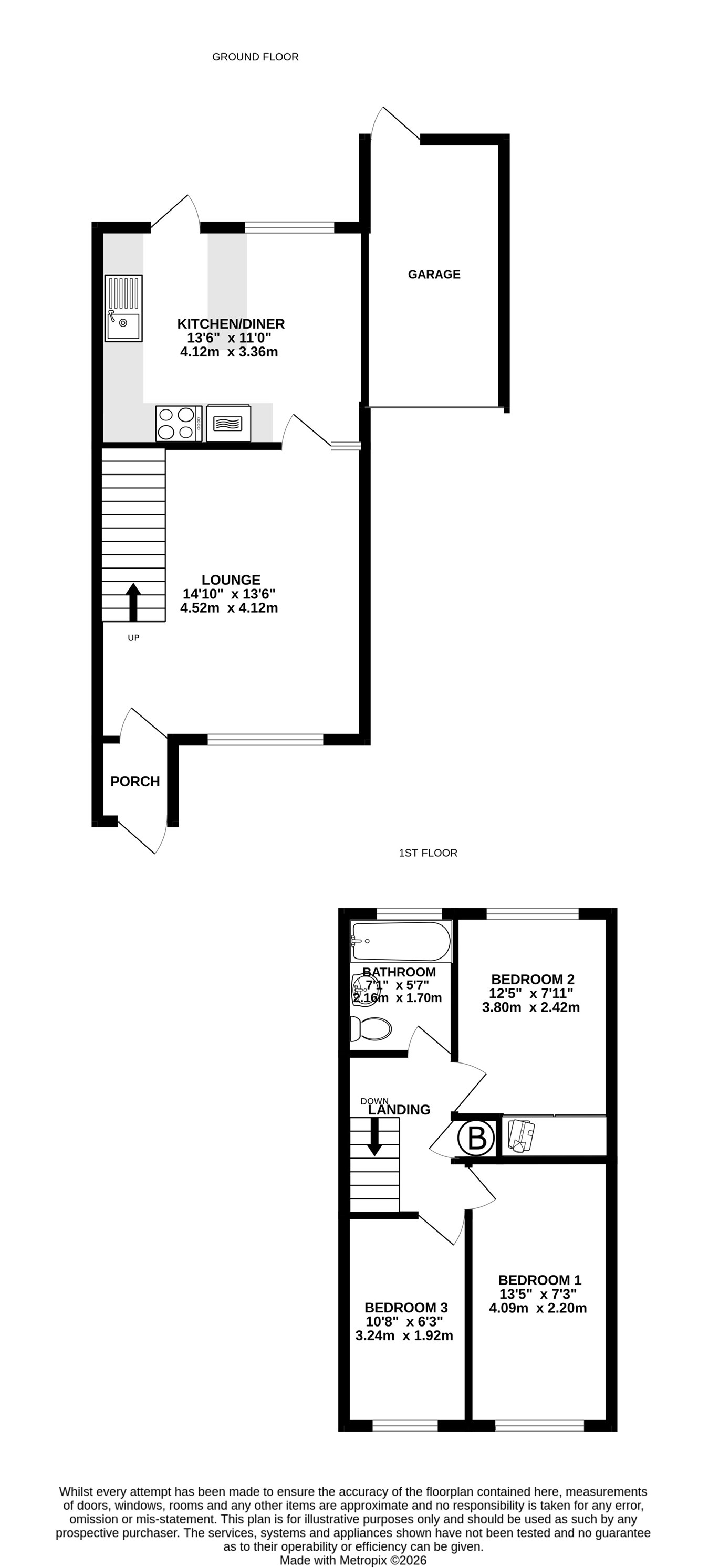
Ground Floor


Entrance Porch


Lounge
14' 10" x 13' 6" (4.52m x 4.11m)

Kitchen/Diner
13' 6" x 11' 0" (4.11m x 3.35m)

First Floor


Bedroom 1
13' 5" x 7' 3" (4.09m x 2.21m)

Bedroom 2
12' 5" x 7' 11" (3.78m x 2.41m)

Bedroom 3
10' 8" x 6' 3" (3.25m x 1.91m)

Bathroom
7' 1" x 5' 7" (2.16m x 1.70m)

External


Garage

Property LOCATION

Show Map
Powered by Apex27