Property SEARCH

1 bed Maisonette

£180,000

Hamelin Road, Darland, Gillingham, ME7

AVAILABLE


Property FEATURES

  • Chain Free
  • Ground Floor Maisonette
  • One Double Bedroom
  • Allocated Parking For One Car
  • Popular Darland Location
  • Ideal Investment Or First Time Buy
  • Conservatory With Garden Access
  • Private Rear Garden

Property DESCRIPTION

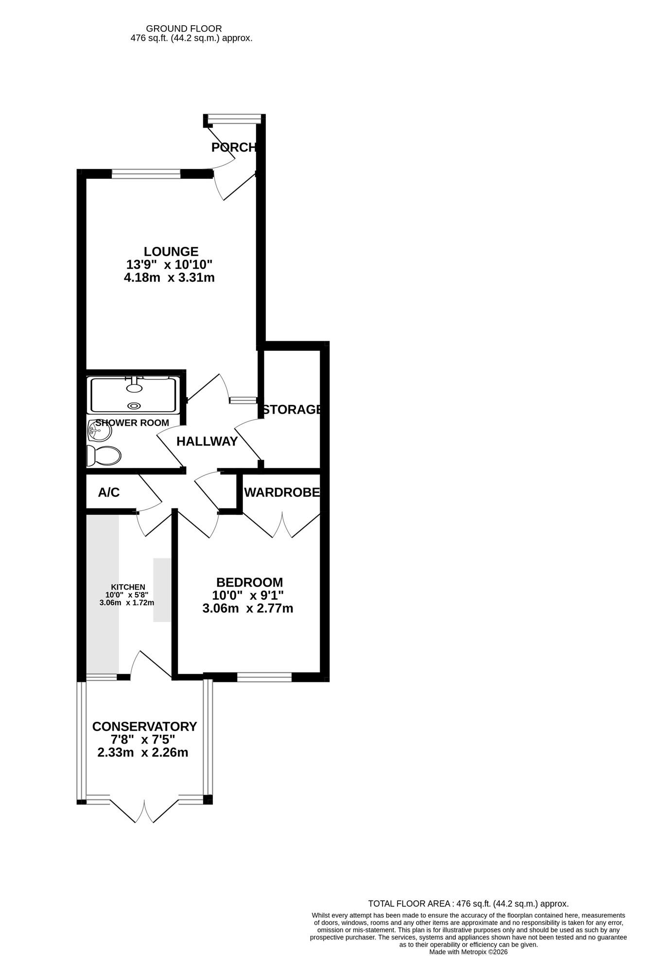
Situated in the highly sought-after area of Darland, Gillingham, this well-presented one-bedroom ground floor maisonette is offered to the market chain free, making it an ideal purchase for first-time buyers, downsizers, or investors alike. The property is neutrally decorated throughout and offers well-proportioned accommodation, beginning with an entrance porch that leads into a comfortable lounge. From here, a central lobby provides access to a double bedroom, a modern shower room, and a fitted kitchen, along with a useful storage cupboard. To the rear, a bright conservatory offers additional living space and provides direct access to the private rear garden—perfect for relaxing or entertaining. Externally, the property benefits from allocated parking and is tucked away in a quiet cul-de-sac location. The area is well-served by local amenities and offers excellent transport links, making it both convenient and desirable. Properties of this nature in Darland rarely become available and are always in high demand. Early viewing is highly recommended—contact the Greyfox Rainham sales team today to avoid missing out.

Ground Floor


Lounge
13' 9" x 10' 10" (4.19m x 3.30m)

Shower Room


Kitchen
10' 0" x 5' 8" (3.05m x 1.73m)

Bedroom
10' 0" x 9' 1" (3.05m x 2.77m)

Conservatory
7' 8" x 7' 5" (2.34m x 2.26m)

Property LOCATION

Show Map
Powered by Apex27