Property SEARCH

2 bed End of Terrace House

£325,000

Howbury Walk, Parkwood, Gillingham, ME8

AVAILABLE


Property FEATURES

  • Ideal First-Time Purchase Or Potential Investment Opportunity
  • Positioned On A Generous Corner Plot With Extension Potential (STPP)
  • Large Driveway For Multiple Vehicles & A Detached Garage
  • Modern Kitchen/Dining Room & A Spacious Separate Lounge
  • Popular Location With Great Transport Links & Amenities Nearby
  • Beautifully Presented End Of Terrace Home
  • Two Generous Double Bedrooms
  • Stylish Shower Room With Built In Ceiling Speakers

Property DESCRIPTION

A fantastic opportunity for first-time buyers or potential investment, this beautifully presented and ready to move into two-bedroom end-of-terrace home occupies a generous corner plot in a popular residential location. The ground floor comprises a welcoming porch with useful storage space, a well-proportioned separate lounge, and a modern kitchen/diner to the rear, offering an ideal space for both everyday living and entertaining while overlooking the garden. Upstairs, the property features two spacious double bedrooms, with the main bedroom benefiting from ample built-in wardrobes and a dedicated dressing area. The accommodation is completed by a contemporary bathroom with a stylish walk-in shower. Externally, the property truly stands out, positioned on a sizeable corner plot providing excellent outdoor space and exciting potential to extend (STRP). The rear garden offers a combination of patio and lawn areas, perfect for relaxing or entertaining. In addition, there is a large, detached garage, a generous driveway providing off-street parking for multiple vehicles, and a front garden area. Conveniently located, the home is within easy reach of well-regarded schools, a range of local amenities, and Parkwood Shopping Centre, all within walking distance. Excellent transport links are also nearby, making this an ideal choice for commuters. Properties of this calibre are in high demand, pick up the phone and start dialling the Greyfox sales team in Rainham today to arrange your viewing.

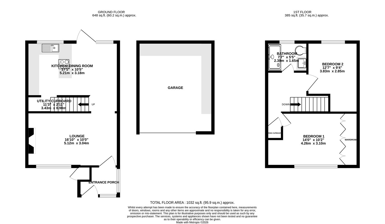
Ground Floor


Kitchen/ Dining Room
17' 01" x 9' 05" (5.21m x 2.87m)

Lounge
16' 10" x 10' 0" (5.13m x 3.05m)

First Floor


Bedroom 1
14' 0" x 10' 2" (4.27m x 3.10m)

Bedroom 2
12' 7" x 9' 4" (3.84m x 2.84m)

Bathroom
7' 7" x 5' 5" (2.31m x 1.65m)

Property LOCATION

Show Map
Powered by Apex27