Property SEARCH

3 bed Terraced

£355,000

Trebble Road, Swanscombe

AVAILABLE


View Brochure

Property DESCRIPTION

GUIDE PRICE OF £355,000 TO £360,000
3-BED TERRACED HOUSE FOR SALE
LARGE GARDEN TO REAR
NO CHAIN

Heritage Estates are delighted to offer this chain-free, three-bedroomed terraced house with a large garden to the rear for sale. The property is situated near a local park/children's recreational play area; local shops and schools. Swanscombe and Ebbsfleet International train stations are nearby with excellent high-speed links into London. The house comprises: a porch; hallway; lounge; dining room; kitchen; garden room; three bedrooms; family bathroom and garden.

Front View of Property
There is a lay-by directly in front of the property for parking. Low-brick wall and wrought-iron gate to front garden. Pathway to entrance. Attractive brick façade.

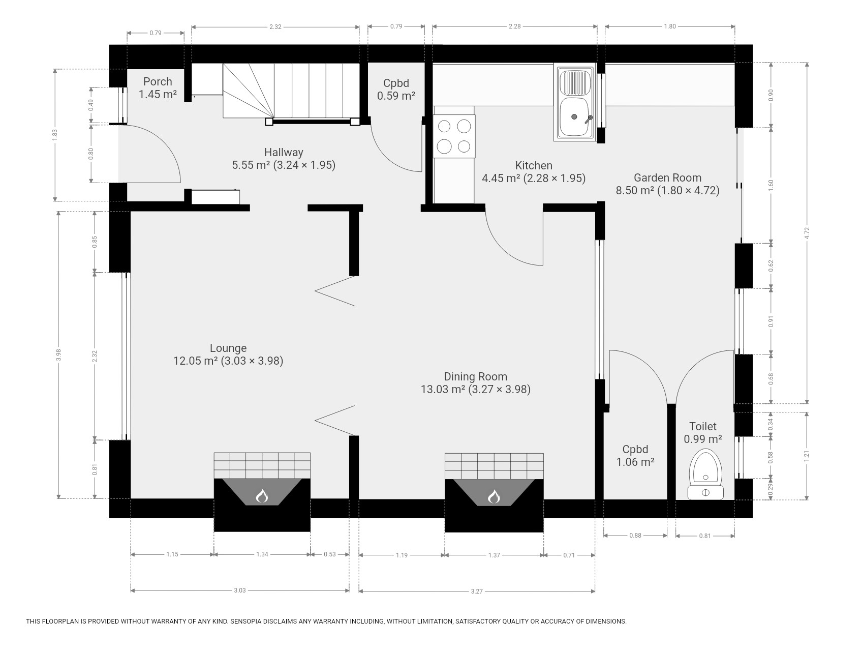
Entrance Porch 1.83m (6' 0') x 0.79m (2' 7')
Open internal porch area. Grey carpet. Leads to hallway.

Hallway 1.95m (6' 5') x 3.24m (10' 8')
Grey carpet. Cupboard. Further cupboard housing electric circuit board and electric meter. Access to first floor via stairs. Radiator. Under-stair cupboard housing gas meter/storage.

Lounge 3.98m (13' 1') x 3.03m (9' 11')
Single glazed sash window to front. Veneered flooring. Fire surround. Radiator under window.

Rear Reception / Dining Room 3.98m (13' 1') x 3.27m (10' 9')
Single-glazed sash window to rear. Veneered flooring. Fire surround. Radiator.

Kitchen 1.95m (6' 5') x 2.28m (7' 6')
Fitted kitchen with a range of wall and base units in grey. Inset stainless steel sink and drainer. Free-standing oven with extractor fan over. Leads to garden room.

Garden Room 4.85m (15' 11') x 1.80m (5' 11')
UPVC double glazed patio doors to rear leading to garden. UPVC double glazed window to rear. Sheet metal flooring. Kitchen base units; fridge/freezer; washing machine; 'Biasi' boiler firing gas fired central heating. Radiator. Deep storage cupboard.

Ground Floor WC 1.20m (3' 11') x 0.81m (2' 8')
Window to rear. Floor tiles. White WC.

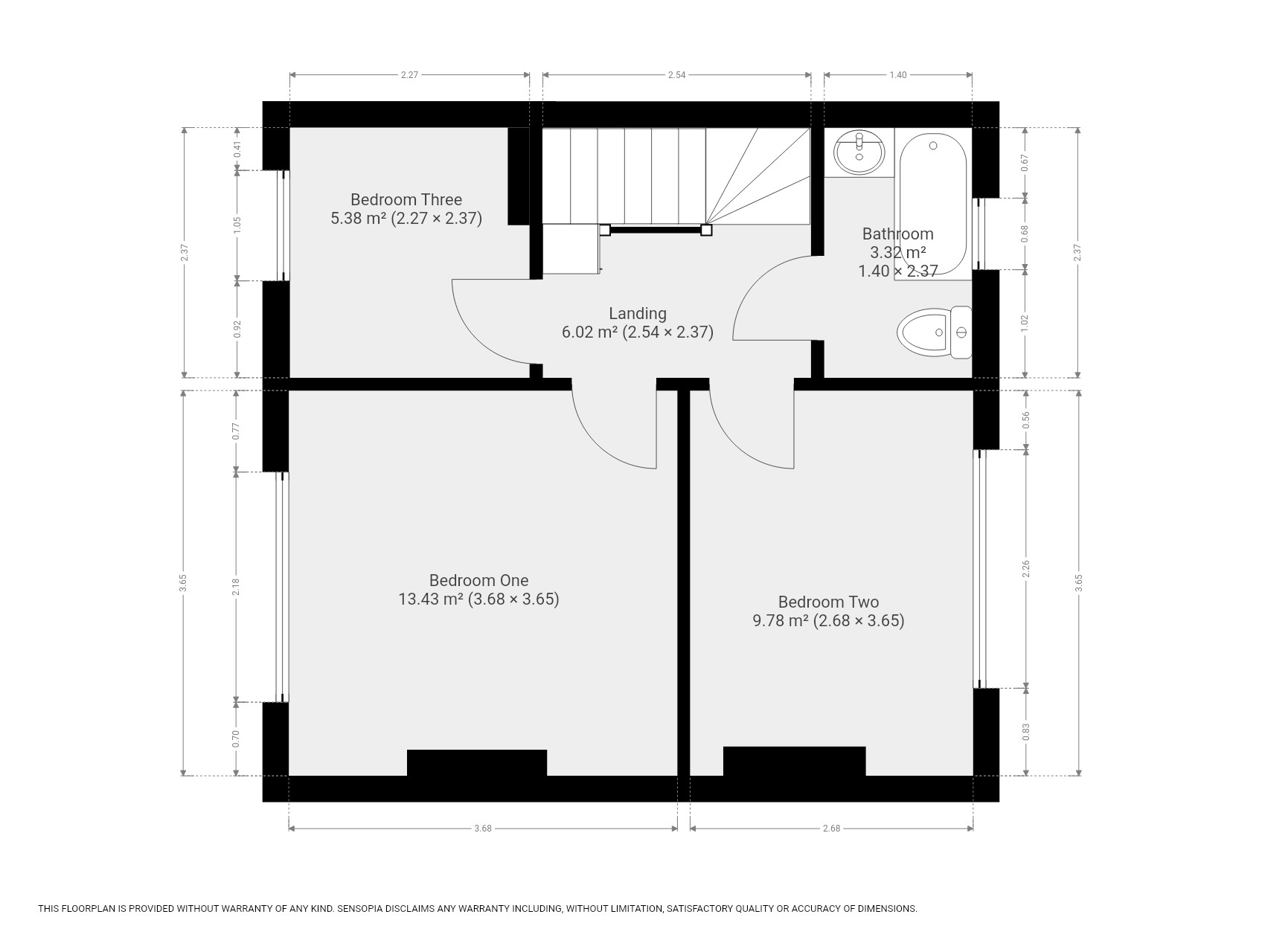
First Floor Landing 2.37m (7' 9') x 2.24m (7' 4')
Grey carpet. Storage cupboard. Access to loft via hatch.

Bedroom One 3.65m (12' 0') x 2.68m (8' 10')
Single glazed sash window to front. Radiator. Grey carpet. Double room. Soft green décor.

Bedroom Two 3.65m (12' 0') x 2.68m (8' 10')
Single glazed window to rear over-looking garden. Grey carpet. Radiator. Double room. Soft green décor.

Bedroom Three 2.37m (7' 9') x 2.66m (8' 9')
Single glazed sash window to front. Radiator. Grey carpet. Good-sized third bedroom. Soft green décor.

Bathroom 2.37m (7' 9') x 1.40m (4' 7')
UPVC double glazed opaque window to rear. White cast-iron bath with bath panel and mixer shower tap; white WC and sink set on vanity cupboard. Radiator. Vinyl floor tiles. Blue décor.

Rear Garden
There is a good-size rear garden with patio. Laid to lawn with timber fence surround and rear pedestrian gate.

Further Information
Council Tax: Band B (Approx. £1,774 annually)
Local Authority: Dartford Borough Council

Property LOCATION

Show Map
Powered by Apex27