Property SEARCH

3 bed Terraced

£250,000

Burnt Oak Terrace, Gillingham, ME7

AVAILABLE


Property FEATURES

  • Chain Free!
  • Well Presented Terrace House
  • Three Generous Bedrooms
  • Open-Plan Living & Dining Space
  • Modern Kitchen & Bathroom
  • Central Gillingham Location
  • Cellar Offering Additional Living Space (STRP)
  • Landscaped & Tiered Rear Garden

Property DESCRIPTION

Situated in the heart of Gillingham, this well-presented three-bedroom mid-terrace home offers excellent access to local amenities and strong transport links, making it an ideal purchase for first-time buyers, families, or investors alike. Internally, the property boasts a spacious open-plan living and dining area, providing plenty of room for relaxing and entertaining, with direct access to the rear garden. The home also features a modern fitted galley-style kitchen and a stylish family bathroom complete with a shower over the bath. In addition, the property benefits from a useful cellar, providing valuable additional storage space. Upstairs, there are three well-proportioned double bedrooms, with the principal bedroom benefitting from fitted wardrobes. Externally, the property enjoys a generous tiered rear garden measuring approximately 50ft in length. The current owners have made excellent use of the space, which is arranged over three levels. Two tiers are paved, creating fantastic seating and entertaining areas, while the lower tier is laid to lawn and would be perfect for those with green fingers. The property also retains a number of attractive period features throughout, adding character and charm to the home. To the front of the property there is on-street permit parking available. Early viewing is highly recommended. Contact the Greyfox Rainham sales team today to arrange your viewing before it's gone.

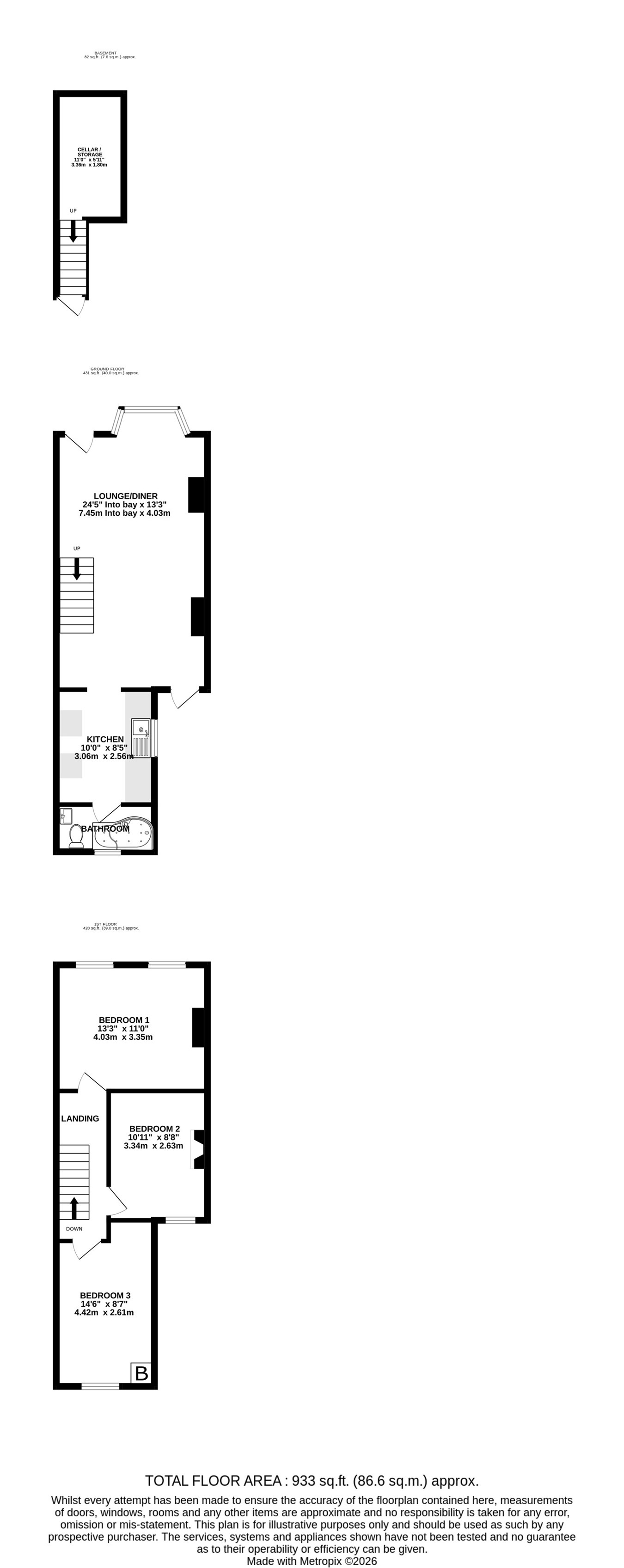
Basement


Cellar/ Storage
11' 0" x 5' 11" (3.35m x 1.80m)

Ground Floor


Lounge/ Diner
24' 5" x 13' 3" (7.44m x 4.04m)

Kitchen
10' 0" x 8' 5" (3.05m x 2.57m)

Bathroom


First Floor


Bedroom 1
13' 3" x 11' 0" (4.04m x 3.35m)

Bedroom 2
10' 11" x 8' 8" (3.33m x 2.64m)

Bedroom 3
14' 6" x 8' 7" (4.42m x 2.62m)

Property LOCATION

Show Map
Powered by Apex27