Property SEARCH

1 bed Flat

£200,000

Tankerton Road, Tankerton, Whitstable

FOR SALE


Property FEATURES

  • Bright & Spacious Ground Floor Flat
  • Moments from the Beach
  • Walking Distance to Central Whitstable
  • Whitstable Station 0.6 Miles
  • Presented in Smart Contemporary Style
  • Open-Plan Living Room with Bay Window
  • Stylish Modern Kitchen
  • Private Courtyard Gardens to Front & Rear
  • No Onward Chain

Property DESCRIPTION

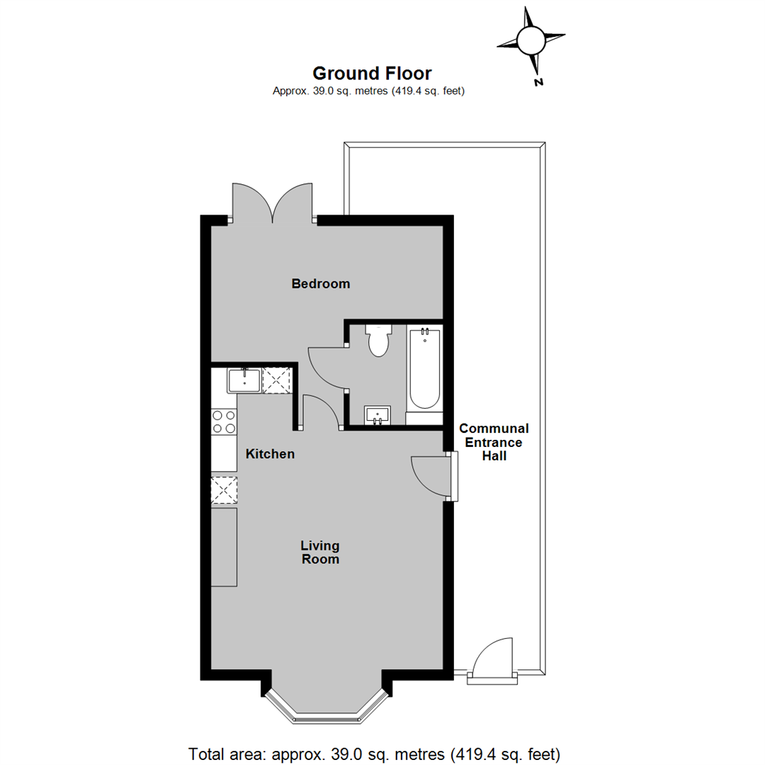
This bright, spacious, and smartly presented ground floor flat was created following the conversion of an attractive period building and is ideally situated between Tankerton and Whitstable, moments from the beach and a short walk to Whitstable s fashionable town centre with its highly regarded restaurants and independent shops, bus routes and Whitstable Station (0.6 miles).

The accommodation is tastefully presented in smart contemporary style throughout and arranged to provide a generous living room with bay window, open-plan to a stylish modern kitchen, a double bedroom with doors opening to an attractive decked terrace which enjoys a South Easterly aspect, and an en-suite bathroom.

There is a further area of private courtyard garden to the front of the property. No onward chain.

Property LOCATION

Show Map
Powered by Apex27