Property SEARCH

2 bed Apartment

£220,000

Sheerness, Minster, Kent

ON MARKET


Property FEATURES

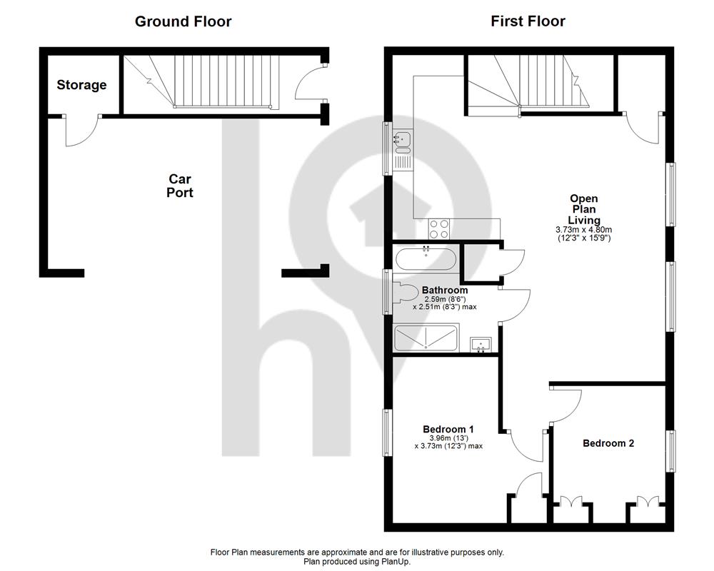
  • Beautifully Presented Coach House
  • Open Plan Living
  • Good Size Kitchen with Integrated Appliances
  • Modern Bathroom
  • Off Road Parking with Car Port
  • Council Tax: B | EPC: Awaited
  • Service Charge of £678.87 per annum | Ground Rent of £150 per annum

Property DESCRIPTION

This beautifully presented and upgraded coach house offers stylish, modern living throughout. Finished to a high standard, the property benefits from contemporary glass balustrades, modern window shutters and a bright, well-designed layout.



The accommodation comprises two generous bedrooms and a sleek, contemporary bathroom featuring a double walk-in shower, bath, vanity unit and WC, finished with quality fittings.



The heart of the home is the impressive open-plan living space, providing a fantastic area for both relaxing and entertaining. The modern kitchen area is fitted with a range of built-in appliances and a tiled floor, seamlessly flowing into the living and dining area to create a light and spacious environment.



There is also the added benefit of a large storage area along with car port and parking.



This superb home would make an ideal first-time purchase, investment or stylish downsizing opportunity.



Lease Details:

999 years from 30th June 2013 (Approx. 986 years unexpired)

Ground Rent: £150 (Reviewed every 10 years in line with the Retail Price Index)

Service Charge: £678.87 per annum



Anti-Money Laundering Regulations:



We are required by law to conduct Anti-Money Laundering checks on all parties involved in the sale or purchase of a property. We take the responsibility of this seriously in line with HMRC guidance in ensuring the accuracy and continuous monitoring of these checks. Our partner, Hipla, will carry out the initial checks on our behalf. We will send you a link to conclude a biometric check electronically.



As an applicant, you will be charged a non-refundable fee of £12 (inclusive of VAT) per buyer for these checks. The fee covers data collection, manual checking and monitoring. You will need to pay this amount directly to Hipla and complete all Anti-Money Laundering checks before your offer can be formally accepted.

Open Plan Living
4.80m (15'9") max x 3.73m (12'3") max
Bedroom 1
3.96m (13') x 3.73m (12'3") max
Bedroom 2
3.28m (10'9") x 2.67m (8'9")

Property LOCATION

Show Map
Powered by Apex27