Property SEARCH

3 bed Terraced

£325,000

Haig Avenue, Rochester, ME1

AVAILABLE


Property FEATURES

  • No Forward Chain
  • Two Reception Rooms
  • Close to Highly Recommended Schools
  • Driveway to the Front
  • Enclosed South Facing Garden
  • An Ideal First Time Buyers Home
  • Three Bedroom Mid-Terrace

Property DESCRIPTION

Guide Price £325,000 - £350,000

Being offered with no forward chain is this three bedroom 1930s home with an opportunity to place your own creative stamp. Situated in a sought after location with highly recommended schools just a short distance away. It also has the benefit of local bus services into Rochester and Maidstone town centre.

On entering you are greeted by an entrance hallway with stairs to the first floor which follows through to a good size lounge and dining room with French doors leading out to the enclosed rear garden. The kitchen offers a range of fitted wall and base units with integrated hob and oven. Moving upstairs you have three good size bedrooms, the main bedroom with fitted wardrobes, and a family bathroom. Externally the rear garden is mainly laid to lawn with patio area and a variety of shrub borders. This is a lovely space to chill and is ideal for children to play safely. This is a lovely property for the first time buyer or growing family. Please call the Sales Team for further details.

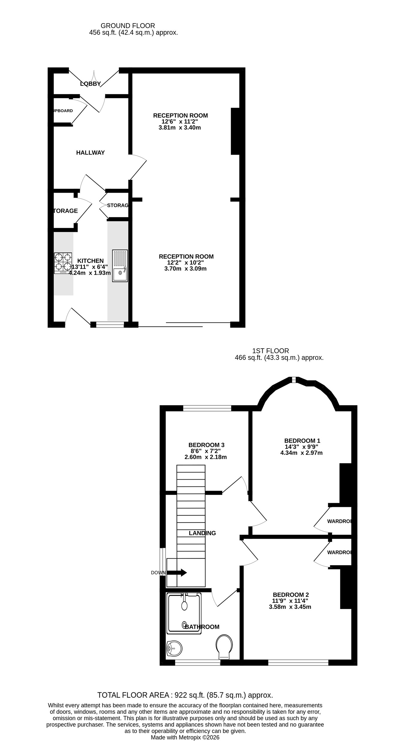
Ground Floor


Lobby


Hallway


Kitchen
13' 11" x 6' 4" (4.24m x 1.93m)

Reception Room
12' 6" x 11' 2" (3.81m x 3.40m)

Reception Room
12' 2" x 10' 2" (3.71m x 3.10m)

First Floor


Bedroom 1
14' 3" x 9' 9" (4.34m x 2.97m)

Bedroom 2
11' 9" x 11' 4" (3.58m x 3.45m)

Bedroom 3
8' 6" x 7' 2" (2.59m x 2.18m)

Bathroom

Property LOCATION

Show Map
Powered by Apex27