Property SEARCH

4 bed Detached House

£900,000

Birkdale Close, Molehill Road, Chestfield, Whitstable

FOR SALE


Property FEATURES

  • Substantial Detached Family Home
  • Quiet & Popular Cul-de-Sac
  • Popular Village of Chestfield
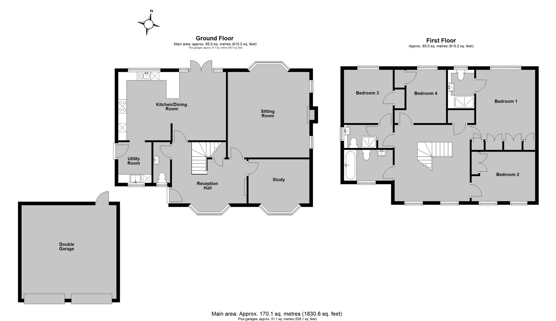
  • 1830 sq ft (170 sq m) Beautifully Presented Accomm
  • Contemporary Kitchen/Dining Room
  • Sitting Room with Open Fireplace
  • 4 Double Bedrooms & Study
  • 3 Stylish Bathrooms
  • 94ft (28.85m) Private & Secluded Rear Garden
  • Double Garage & Off-Street Parking

Property DESCRIPTION

This substantial detached family home is situated in a quiet and popular cul-de-sac in an exclusive and highly regarded development within the popular village of Chestfield, which is conveniently positioned between Whitstable (3 miles) and Canterbury (6 miles).

The beautifully presented accommodation extends to 1830 sq ft (170 sq m) and is arranged on the ground floor to provide a generous reception hall, a sitting room with bay window and an open fireplace, a contemporary kitchen/dining room with a pair of casement doors leading to the garden, a study, a utility room and a cloakroom.

To the first floor, a galleried landing leads to four double bedrooms, each with fitted wardrobes, and three stylish bathrooms including an en-suite shower room to the principal bedroom.

The private and secluded rear garden has a pleasant outlook and extends to 94ft (28.85m), incorporating a large patio area, and a roofed-pergola overlooking a natural pond, which provides an idyllic setting for outside entertaining. A double garage and driveway provide an area of off-street parking and access to a charging point for electric vehicles.

Property LOCATION

Show Map
Powered by Apex27