Property SEARCH

5 bed Detached House

£1,050,000

Island Wall, Whitstable

FOR SALE


Property FEATURES

  • Elegant Period Property
  • Prime Location
  • Moments from the Beach
  • Short Stroll from the High Street
  • Whitstable Station 0.7 miles
  • Sitting Room with Views of the Sea
  • 5 Bedrooms & 6 Bathrooms
  • Planning Permission Granted CA/20/02299
  • Enchanting Courtyard Garden
  • No Onward Chain

Property DESCRIPTION

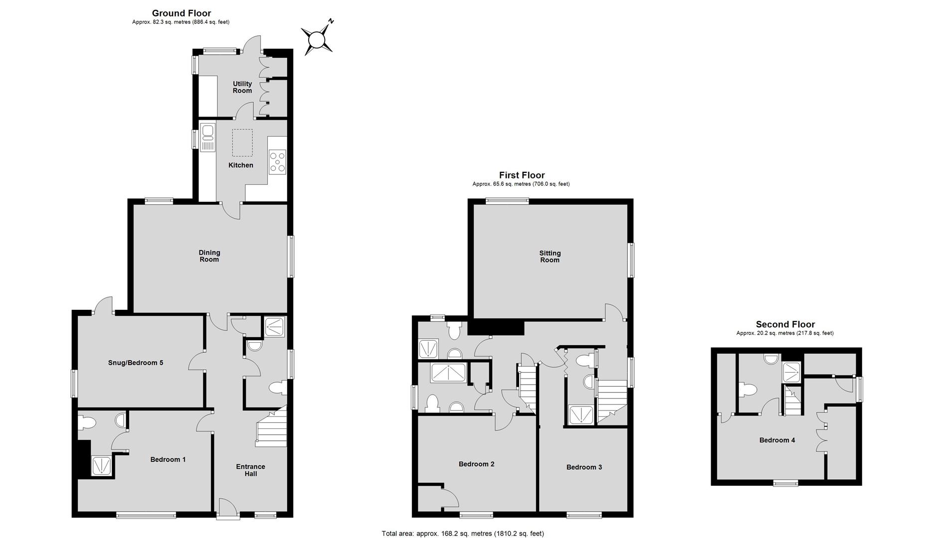
Copeland House is an elegant period property situated in a prime location on Island Wall, within moments of the beach and a short stroll from the bustling High Street. Whitstable station is within short walking distance (0.7 miles).

The generous accommodation is arranged over three floors to provide an inviting entrance hall, a first-floor sitting room with views of the sea, a dining room, kitchen, utility room, five bedrooms (three with en-suite shower rooms) and three further shower rooms.

The enchanting courtyard garden is enclosed by mature shrubs and other plants, affording a good level of privacy. There is a gate to the rear opening to an alleyway leading directly to the beach.

Planning permission has been granted under reference CA/20/02299 for a two-storey rear extension including accommodation within the roof space, together with a first-floor sea-facing balcony and external staircase. The planning permission has been implemented and will not expire, as footings for the proposed extension have been constructed and inspected by Building Control.

Interested parties are advised to make their own enquiries relating to planning matters via Canterbury City Council; www.canterbury.gov.uk/planning.
No onward chain.

Property LOCATION

Show Map
Powered by Apex27