Property SEARCH

3 bed Semi-detached House

£350,000

Meadowbridge, Osborne Gardens, Herne Bay, Kent

AVAILABLE


Property FEATURES

  • Bespoke kitchen with integrated Bosch appliances
  • Flooring included throughout
  • Turf to the rear garden included
  • Tiling to bathrooms and en-suites included
  • Air Source Heat Pump
  • EV Charging points
  • Open green spaces
View Brochure

Property DESCRIPTION

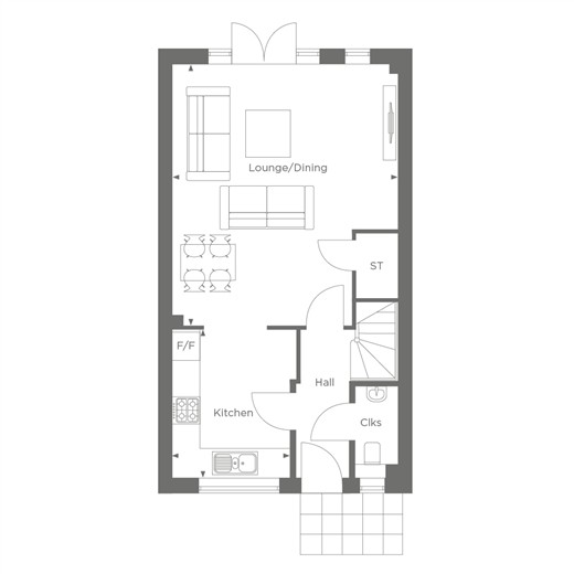
We are delighted to introduce The Chalvington, our three bedroom semi detached house at our sought after Meadowbridge development in Herne Bay. This property has a modern feel to the ground floor with its open plan lounge/dining space which has French doors leading to the turfed garden with an adjoining kitchen. The kitchen offers a bespoke design fitted kitchen with Bosch appliances and ground floor cloakroom. Bedroom 1 includes an en-suite and fitted wardrobe. This property also benefits from two parking spaces which includes a charging point for electric vehicles. Room sizes:Lounge/Dining: 19'1 x 16'4 (5.82m x 4.98m)Kitchen: 10'10 x 8'6 (3.30m x 2.59m)CloakroomLandingBedroom 1: 12'0 x 9'2 (3.66m x 2.80m)En-SuiteBedroom 2: 13'5 x 9'2 (4.09m x 2.80m)Bedroom 3: 12'0 x 6'11 (3.66m x 2.11m)BathroomFront GardenRear GardenOff road parking 
The information provided about this property does not constitute or form part of an offer or contract, nor may it be regarded as representations. All interested parties must verify accuracy and your solicitor must verify tenure/lease information, fixtures & fittings and, where the property has been extended/converted, planning/building regulation consents. All dimensions are approximate and quoted for guidance only as are floor plans which are not to scale and their accuracy cannot be confirmed. Reference to appliances and/or services does not imply that they are necessarily in working order or fit for the purpose.
 
Legal advice should be taken to verify fixtures/fittings, planning, alterations and/or lease details. Appliances & services are untested, dimensions are approximate and floor plans are not to scale. Proposed development at Manston airport may affect this area, please check with your solicitor before proceeding, please contact us before proceeding.
 
We are pleased to offer our customers a range of additional services to help them with moving home. None of these services are obligatory and you are free to use service providers of your choice. Current regulations require all estate agents to inform their customers of the fees they earn for recommending third party services. If you choose to use a service provider recommended by Wards, details of all referral fees can be found at the link below. If you decide to use any of our services, please be assured that this will not increase the fees you pay to our service providers, which remain as quoted directly to you.

Tenure: Freehold

Property LOCATION

Show Map
Powered by Apex27