Property SEARCH

4 bed Semi-detached House

£450,000

Guston Heights, Guston, Dover, CT15

AVAILABLE


Property FEATURES

  • Join us for our Easter Open Day on Saturday 4th April! And enjoy a complimentary Easter egg!
  • £10,000 Quayside Contribution* - contact us for more information!
  • Show home open Thursday-Monday 10am-5pm
  • High specification & finish throughout
  • 4 double bedrooms
  • 1,516 sq ft
  • Village location
  • 10 year warranty
View Brochure

Property DESCRIPTION

SUMMARY
£10,000 Quayside contribution - contact us for more information!
Guston Heights, an exclusive development in the village of Guston. Phase 2 offers a collection of 20 2, 3 & 4 bedroom homes, all finished to an impeccable standard and come fully fitted with high specification throughout!




DESCRIPTION
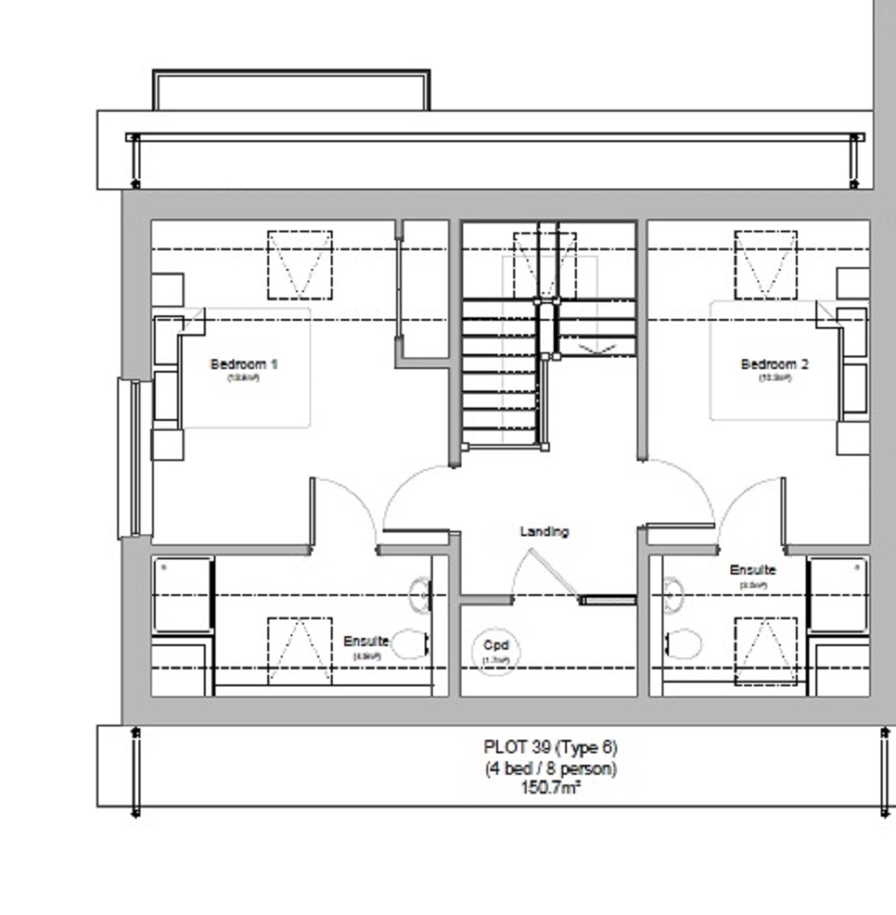
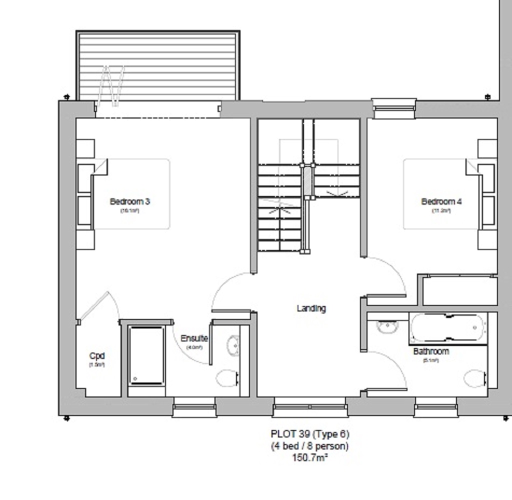
Plot 39 - Show home open Thursday-Monday 10am-5pm, book your viewing today!

This 1,516 Sq.Ft 3 storey home boasts 4 double bedrooms with built in wardrobe to bedrooms 1 & 4, spacious kitchen, utility room, separate living/dining room, downstairs w/c, a family bathroom plus 3 en-suites, private garden and parking!

This stunning home is finished to an impeccable standard complete with fully fitted kitchens with high range appliances and carpet and Amtico flooring throughout. Making your new home ready to move in to!

Contact us today for more information - Brochure available upon request!
*T&C's apply Council Tax Band: Not currently available, please contact the branch Tenure: Unknown

Additional Information
Guston Heights forms part of the wider project pioneered by Homes England that will deliver a thriving new community, sustainable travel and green spaces. Each home comes with parking for 2 cars and 10 year ICW Warranty. Guston is a pretty village within a wider parish of the same name, just to the North of Dover. For families who are looking to relocate, Guston Church of England Primary School is just a 6 minute walk, Burgoyne Heights Pre School an 11 minute walk, with a range of secondary and Grammar Schools within a short distance. And for the commuters, Dover Priory Train Station is 1.5 miles from the development, where you can reach London is just over an hour!
Dover Fastrack - Kents first zero-emission bus service is also in place - The rapid bus system will connect Whitfield with Dover town centre and Dover Priory Train Station!
Guston Heights benefits from exceptional views of Dover Castle, the English Channel and countryside settings so spectacular it has been deemed an area of outstanding natural beauty! Come and see the views for yourself by calling us today and booking your visit!


Disclaimer
All information has been provided by the developer and is subject to verification. Please note all interior images are from the show home and are indicative only.
Please note all view images are from the local area.




1. MONEY LAUNDERING REGULATIONS - Intending purchasers will be asked to produce identification documentation at a later stage and we would ask for your co-operation in order that there will be no delay in agreeing the sale.
2. These particulars do not constitute part or all of an offer or contract.
3. The measurements indicated are supplied for guidance only and as such must be considered incorrect.
4. Potential buyers are advised to recheck the measurements before committing to any expense.
5. Connells has not tested any apparatus, equipment, fixtures, fittings or services and it is the buyers interests to check the working condition of any appliances.
6. Connells has not sought to verify the legal title of the property and the buyers must obtain verification from their solicitor.

Powered by Apex27