Property SEARCH

2 bed Apartment

£350,000

Central Parade, Herne Bay

AVAILABLE


Property FEATURES

  • **Watch Our Narrated Video Walkthrough Tour**
  • Lower Ground Floor Apartment With Garden
  • Two Double Bedrooms & Family Bathroom
  • 65ft Private Use Garden With Sea Views
  • Huge Reception With Open Plan Kitchen
  • Private Off-Road Parking for Two Cars
  • No Forward Chain & Vacant Possession
  • Private Front & Rear Access
  • Walking Distance To Train Station
  • Internal Viewing Is Highly Advised
View Brochure

Property DESCRIPTION

NO CHAIN... GARDEN WITH SEA VIEWS... PARKING FOR TWO CARS... Kent Estate Agencies are excited to present to the market this generously proportioned lower ground floor flat, situated on the highly sought-after Central Parade. Offering a phenomenal footprint, this property seamlessly blends classic seaside charm with vast living spaces and the ultimate coastal luxury: sea views from your own garden and allocated parking for two vehicles right by the sea.
Whether you are looking for a spectacular full-time residence, a lucrative investment, or a spacious coastal weekend retreat, this property delivers on all fronts.

The Lounge is situated at the front of the property, this genuinely huge reception room is a standout feature. It boasts a beautiful, classic bay window that draws in natural light, offering an incredibly versatile space with more than enough room for both expansive living and formal dining areas. A highly functional, well-appointed kitchen space offering excellent potential for culinary enthusiasts to create their ideal cooking environment.
The principle bedroom mirrors the grand proportions of the lounge, the vast first bedroom is a true sanctuary. It features a sweeping bay window to the rear of the property, ensuring a quiet, peaceful space that easily accommodates a super-king bed and extensive freestanding wardrobes.
Bedroom two is versatile and well-proportioned second bedroom, perfectly suited as a guest room, a child's bedroom, or a dedicated home office for remote working. The family bathroom concludes the apartment.

A massive premium for the seafront, this apartment benefits from designated parking space for two cars located to the rear of the building alongside a private use garden to the front with views across the seafront.
Located directly on Central Parade, you are just a stone's throw from the beach, Herne Bay Pier, vibrant bandstand and just moments away from the town centre's eclectic mix of boutique shops, cafes, restaurants, and excellent transport links.

It is exceptionally rare to find an apartment on Central Parade that boasts not only this sheer volume of internal square footage but also the coveted addition of two parking spaces and private front garden. A viewing is highly recommended to fully appreciate the size and potential of this home.

Approved Property Details   


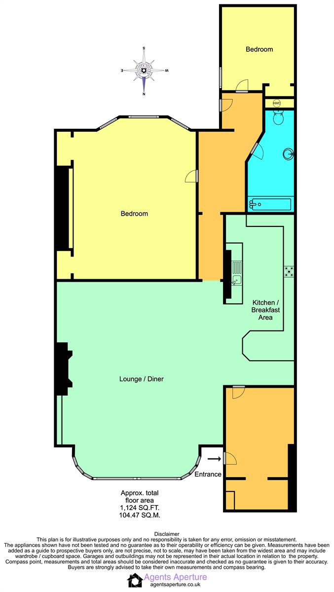
Hallway   


Lounge/Diner    16' 5 x 19' 8 (5m x 6m)


Kitchen/Breakfast Area    16' 5 x 9' 10 (5m x 3m)


Utility Room   


Bedroom One    16' 5 x 13' 1 (5m x 4m)


Bedroom Two    6' 7 x 9' 10 (2m x 3m)


Family Bathroom   


Sea-Facing Garden   


Rear Courtyard With Storage   


Allocated Parking   


Main Services
The following mains services are connected to the property electricity, water, gas, drainage and a telephone line. All services will be subject to the appropriate companies transfer conditions.

Heating
Central heating is provided by a gas fired boiler and hot water radiators as indicated in these particulars.

Windows
The windows are a mixture of UPVC double glazing and original style wood sash.

Tenure
The property is to be sold Leasehold with vacant possession and a share of the freehold.The lease runs 189 years from 29th September 1986Ground rent: £0Service charge: £136 per month

Council Tax
We are advised by the Valuation Office that the property is currently within Council Tax Band B. The amount payable under tax band B for the year 2025/2026 is £1,791.42.

Viewing
Please ring us to make an appointment. We are open from 9am to 6pm Monday to Friday, 9am to 5pm Saturdays and by appointment only on Sundays.

Agent Notes
Kent Estate Agencies gives notice for themselves and for the sellers of the property, whose agents they are that any floor plans, plans or mapping and measurements are approximate quoted in metric with imperial equivalents. All are for general guidance only and whilst every attempt has been made to ensure accuracy, they must not be relied on. The measurements are provided in accordance with the R.I.C.S. Code of Measuring Practice 6th edition. We have not carried out a structural survey and the services, appliances and specific fittings have not been tested and therefore no guarantee can be given that they are in working order. Photographs are reproduced for general information and it must not be inferred that any item shown is included with the property. Prospective purchasers or lessees should seek their own professional advice. Kent Estate Agencies retain the copyright in all advertising material used to market this property. No person in the employment of Kent Estate Agencies has any authority to make any representation or warranty whatever in relation to this property. Purchase prices, rents or other prices quoted are correct at the date of publication and, unless otherwise stated, exclusive of VAT. For a free valuation of your property contact the number on this brochure. Printed ???..2026

Property LOCATION

Show Map
Powered by Apex27