Property SEARCH

3 bed Semi-detached House

£365,000

Colmanton Grove, Sholden, Deal, Kent

AVAILABLE


Property FEATURES

  • Stunning rear extension added around 5 Years ago
  • Beautifully landscaped sunny aspect rear garden
  • Car port parking for 2 vehicles
  • Spacious master bedroom on top floor with en-suite
  • Show home condition throughout and three double bedrooms
View Brochure

Property DESCRIPTION

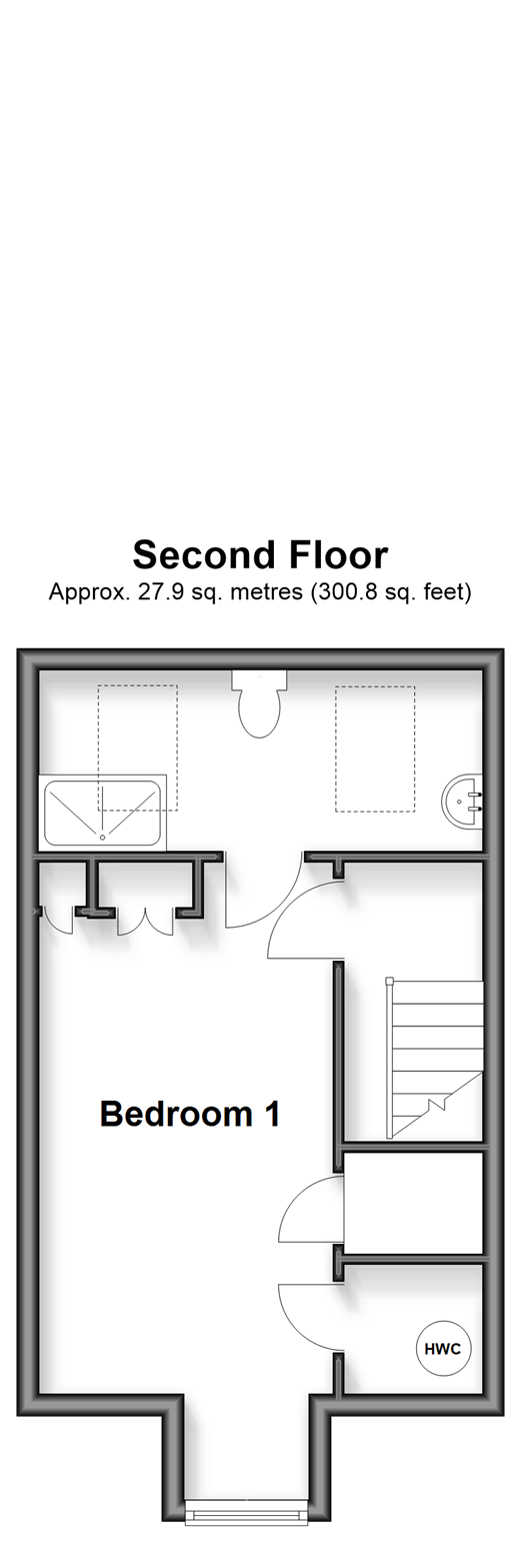
One of the finest examples of a town house on the popular Sholden fields development. This semi detached house is presented in show home development. The rear extension added 5-6 years ago is the real show stopper leading out to the landscaped rear garden with several destination areas. The high fences to the rear make this garden particularly private and you can enjoy the sun here all day. A huge benefit to the house is all bedrooms are double bedrooms. The largest on the second floor with equally spacious en-suite. On the first floor there are further double bedrooms and a jack and Jill bathroom. To the front you will find a driveway and car park for up to two vehicles. Room sizes:Entrance HallwayCloakroomKitchen: 12'9 x 6'3 (3.89m x 1.91m)Lounge: 15'5 x 13'3 (4.70m x 4.04m)Conservatory Area: 11'5 x 10'9 (3.48m x 3.28m)LandingBedroom 2: 13'5 x 10'10 (4.09m x 3.30m)Jack and Jill BathroomBedroom 3: 13'4 x 10'11 (4.07m x 3.33m)LandingBedroom 1: 19'3 x 8'10 (5.87m x 2.69m)En-suite Shower RoomCar portFront and Rear Gardens 
The information provided about this property does not constitute or form part of an offer or contract, nor may it be regarded as representations. All interested parties must verify accuracy and your solicitor must verify tenure/lease information, fixtures & fittings and, where the property has been extended/converted, planning/building regulation consents. All dimensions are approximate and quoted for guidance only as are floor plans which are not to scale and their accuracy cannot be confirmed. Reference to appliances and/or services does not imply that they are necessarily in working order or fit for the purpose.
 
Legal advice should be taken to verify fixtures/fittings, planning, alterations and/or lease details. Appliances & services are untested, dimensions are approximate and floor plans are not to scale. Through a Homewise Home For Life Plan people aged 60+ can secure this property for up to 59% less, by purchasing a Lifetime Lease.
 
We are pleased to offer our customers a range of additional services to help them with moving home. None of these services are obligatory and you are free to use service providers of your choice. Current regulations require all estate agents to inform their customers of the fees they earn for recommending third party services. If you choose to use a service provider recommended by Wards, details of all referral fees can be found at the link below. If you decide to use any of our services, please be assured that this will not increase the fees you pay to our service providers, which remain as quoted directly to you.

Council Tax band: D

Tenure: Freehold

Powered by Apex27