Property SEARCH

4 bed Detached House

£475,000

Lords Wood Lane, Chatham, ME5

AVAILABLE


Property FEATURES

  • Part Exchange Available
  • No Onward Chain
  • Four Bedroom Detached
  • Immaculate Throughout
  • Two Receptions
  • Separate Utility and Guest Cloakroom
  • New Fitted Carpets
  • Close to local Amenities
  • New Modern Fitted Kitchen and Integrated Appliances
  • New Windows Throughout

Property DESCRIPTION

Being offered with no onward chain is this four bedroom detached home which has been presented to a high standard and enhanced with a new modern fitted kitchen and separate utility room. It includes a host of new integrated appliances, this to include electric oven/hob, microwave, dishwasher and fridge/freezer, a new washing machine and tumble dryer. It also has the benefit of new double glazing on all windows and doors throughout.

Continuing on the ground floor, the property also offers a spacious lounge to the front which is a perfect space to unwind and entertain. Also with a dining room with French doors leading onto the enclosed rear garden. A convenient modern downstairs cloakroom adds further practicality.

Moving upstairs there are four well proportioned bedrooms, all fitted with new carpets, alongside a new stylish family bathroom.

Externally, the property offers a driveway leading to the garage with an electric roller door. Further parking to the front. The rear garden is offered with low maintenance in mind with decking, enclosed with fence surround and gated side access.

Immaculately presented throughout and ready to move into, perfect for any growing family. Please call the Walderslade sales team for further details.

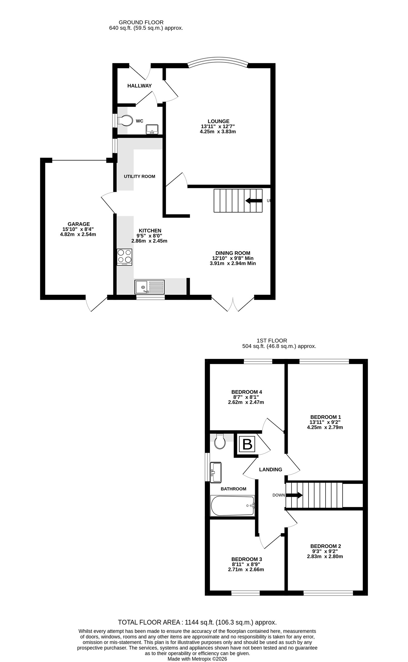
Ground Floor


Hallway


Lounge
13' 11" x 12' 7" (4.24m x 3.84m)

Dining Room
12' 10" x 9' 8" (3.91m x 2.95m)

Kitchen
9' 5" x 8' 0" (2.87m x 2.44m)

Utility Room


WC


Garage
15' 10" x 8' 4" (4.83m x 2.54m)

First Floor


Bedroom 1
13' 11" x 9' 2" (4.24m x 2.79m)

Bedroom 2
9' 3" x 9' 2" (2.82m x 2.79m)

Bedroom 3
8' 11" x 8' 9" (2.72m x 2.67m)

Bedroom 4
8' 7" x 8' 1" (2.62m x 2.46m)

Bathroom
9' 11" x 5' 3" (3.02m x 1.60m)

Property LOCATION

Show Map
Powered by Apex27