Property SEARCH

3 bed Semi-detached House

£425,000

Brewer Road, Cliffe Woods, Rochester

AVAILABLE


View Brochure

Property DESCRIPTION

Situated in the sought-after village of Cliffe Woods, Heritage Estates are delighted to offer for sale this three-four bedroomed, semi-detached house which has been immaculately maintained and updated by the current owner. The property comprises: a porch; hallway; lounge; kitchen/dining room; conservatory; ground floor cloakroom; utility; second reception room/bedroom four; rear garden; and three bedrooms and family bathroom on the first floor. There is a block-paved driveway providing off-road parking for two cars. The owner has replaced the kitchen; uPVC double glazed windows; upgraded the bathroom and laid new flooring. This property would make a great versatile family home. Excellent access onto the A2, M2, M25 and M20 motorways and many local amenities.

Front View of Property
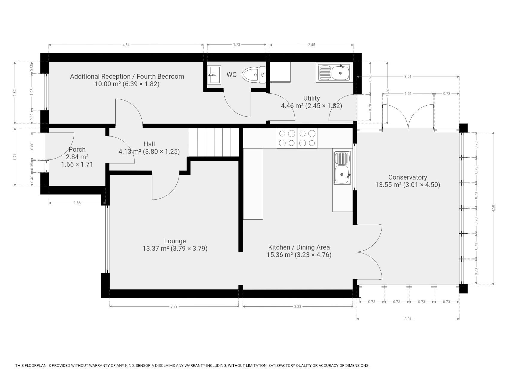
Block paved driveway to front provides off-road parking for two cars. Composite front door and uPVC double glazed glass panel to front. Leads to porch.

Porch 1.71m (5' 7') x 1.66m (5' 5')
Veneered flooring. Radiator. Internal door leads to inner hallway.

Entrance Hall 1.25m (4' 1') x 2.27m (7' 5')
Veneered flooring. Radiator. Carpeted stairs lead to first floor.

Lounge 3.79m (12' 5') x 3.79m (12' 5')
UPVC double glazed window to front. Grey veneered flooring. Radiator. Cupboard with electric circuit board, gas and electric meters. Opening to kitchen/dining room.

Kitchen/Dining Room 4.76m (15' 7') x 3.23m (10' 7')
UPVC double glazed patio doors to rear leading to conservatory. UPVC double glazed window to rear with view into conservatory. Brand new fully-fitted kitchen fitted in December 2025. Range of wall and base units in grey. 'Flavel' electric range-style double oven and induction top. Spaces for fridge/freezer and washing machine. Extractor fan in stainless steel above range.

Conservatory 4.50m (14' 9') x 3.01m (9' 11')
UPVC double glazed windows and patio door to side. Roof renewed 4 years ago.

Garden
Patio. Steps down to lawn. Landscaped with gravelled area. Timber shed and timber fence surround.

Extension
The extended area could be used as an annex. This was in place when the current seller moved here 8 years ago. This was previously a garage. Comprises the second reception room; WC; and utility.

Additional Reception Room or Fourth Bedroom 1.82m (6' 0') x 5.07m (16' 7')
UPVC double glazed window to rear. Linoleum, wooden-style flooring. Radiator.

Ground Floor Cloakroom 0.78m (2' 7') x 1.73m (5' 8')
White suite with WC and wash-hand basin set on vanity cupboard. Heated towel rail in stainless steel. Linoleum, wooden-style flooring. Half-tiled walls.

Utility 1.82m (6' 0') x 2.45m (8' 0')
UPVC double glazed door to rear leading to garden. Base with inset stainless-steel sink and drainer. Cupboard under and space for washing machine and tumble drier. Matching fitted storage cupboard. Linoleum wooden-style flooring.

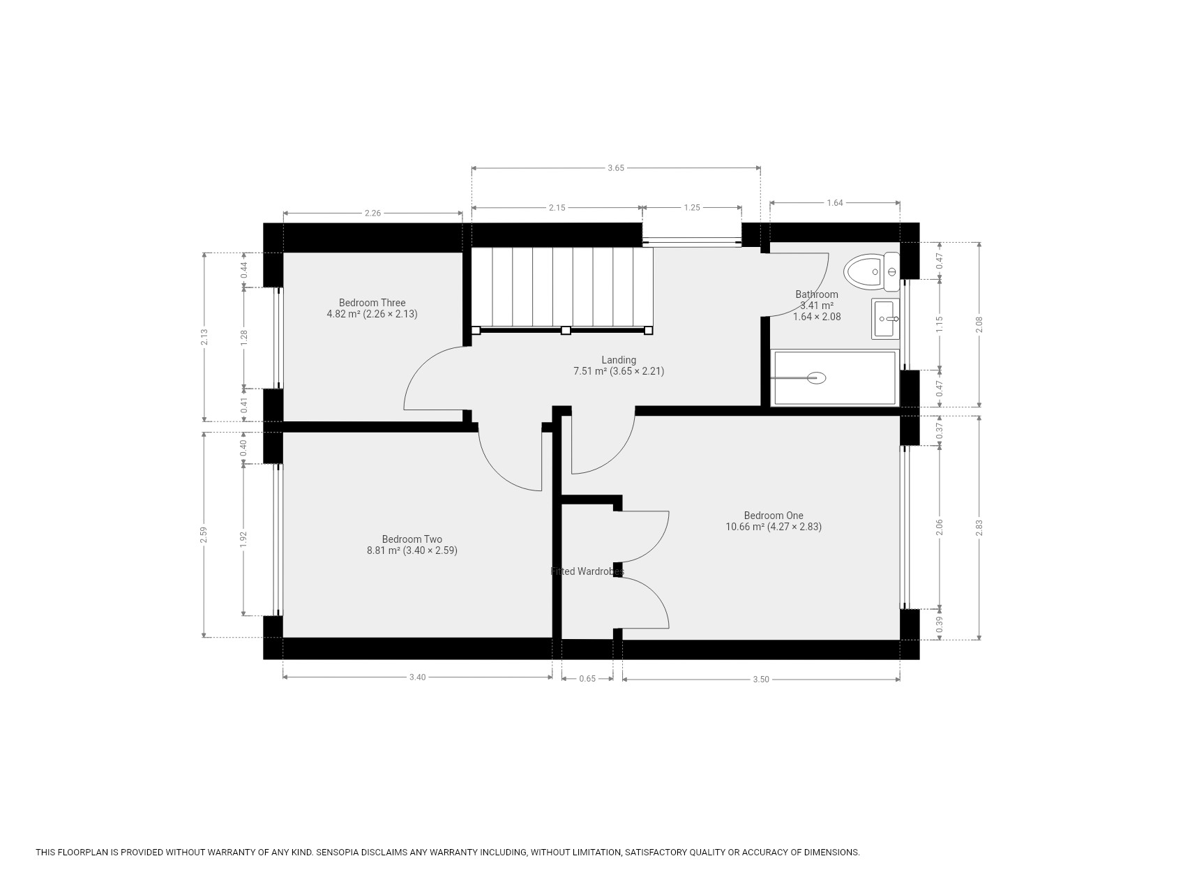
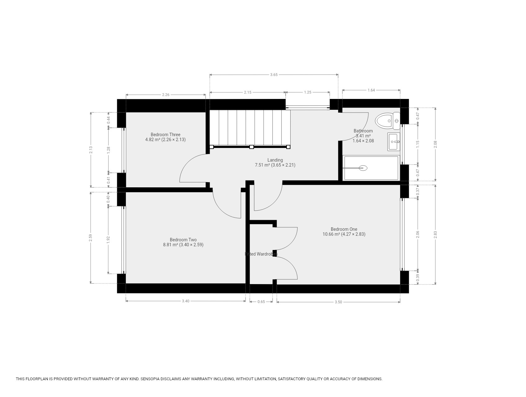
First Floor Landing
UPVC double glazed window to side. Grey carpet. Access to loft via hatch. Air conditioning vent. Airing cupboard with combination boiler.

Bedroom One 2.91m (9' 6') x 4.27m (14' 0')
UPVC double glazed window to rear. Grey carpet. Fitted wardrobes. Radiator. Air conditioning vent. Double room.

Bedroom Two 2.59m (8' 6') x 3.40m (11' 2')
UPVC double glazed window to front. Grey carpet and grey décor. Radiator with feature cover. Double room. Air conditioning vent.

Bedroom Three 2.13m (7' 0') x 2.26m (7' 5')
UPVC double glazed windows to front. Radiator. Grey carpet. Grey décor. Single room.

Bathroom 2.08m (6' 10') x 1.64m (5' 5')
UPVC double glazed patterned window to rear. Large shower cubicle with glass screen. This could be converted back to a bath as full-size shower base. Rain shower and hand-held shower over. WC and wash-hand basin set on vanity cupboard. Stainless steel heated towel rail. Ceramic floor tiles.

Further Information
Council Tax: Band C (£1,962 annually)
Local Authority: Medway Council

Property LOCATION

Show Map
Powered by Apex27