Property SEARCH

4 bed Detached House

£1,250,000

Reculver Road, Herne Bay, Kent

AVAILABLE


Property FEATURES

  • A fabulous and modern detached house
  • Stunning open plan kitchen/breakfast room with integrated appliances
  • Indoor heated swimming pool with shower and changing room
  • Double garage and electric gated driveway
  • Wonderful garden with vast terrace for entertaining
  • Spacious rooms with plenty of natural light
  • Above-average EPC energy efficiency rating B (84)
View Brochure

Property DESCRIPTION

This striking residence, hidden behind wrought iron gates and set back from the road, was originally built 20 years ago by a builder for his own mother – a detail that hints at its meticulous construction – and the house has since been reimagined by its current owners. A sweeping, block-paved driveway, edged by brick pillars, leads to an impressive façade. Double doors open into a vast entrance hall - the effect is immediate: a sense of volume, scale and arrival. The dining area, triple-aspect and luminous, opens onto the terrace, while an archway leads to the kitchen with Shaker-style cabinetry, a Rangemaster cooker, and a striking curved blackboard wall. A separate utility room keeps the necessities discreetly out of sight. There are two reception rooms, the first with bespoke shelving and cabinetry offers an inviting space for work and the second, a grand, dual-aspect lounge, is designed for entertaining, with its French doors opening onto the garden. There is a heated indoor pool complex - open the doors in summer and the pool terrace becomes an extension of the landscape. Upstairs, the landing is generous enough to accommodate a seating area. The four bedrooms each offer their own take on comfort, but the main suite is the standout. Outside, the terrace stretches from the dining area to the pool, while a second terrace, complete with a barbecue, offers a more relaxed setting. A wooden gazebo and a glass-covered orb provide alternative perches, perfect for following the sun. The rest is lush lawn and mature borders, enclosed by a recently installed fence that ensures privacy without feeling enclosed. What the Owner says:
From the moment we stepped through the doors, this house felt like home. There's a flow about it – a warmth that instantly puts you at ease. For the two of us, it's been the perfect sanctuary, but it truly comes to life when family fills the space. Some of our best memories have been made here; hosting major life events in the garden, celebrating special occasions, or simply unwinding.
We've taken great pride in looking after and enhancing the house over the years, from installing new oak doors to completely updating the kitchen. It's always been important to us that the home is well-maintained, and we've loved every moment spent making it our own. Leaving will be bittersweet, but with some of our family now settled outside of Kent, it feels like the right time to downsize and embrace new adventures.
One of the things we've cherished most is the location. Everything we need is close by but we are also not ‘on top' of the town.
Plus, with new David Lloyd facility opening close by and the Thanet Way close by, Canterbury, London, and the rest of the Kent coast are all within easy reach.
This house has been a place of laughter, celebration and comfort. We'll miss it dearly, but we know it's ready for its next chapter with those who will love it as much as we have.
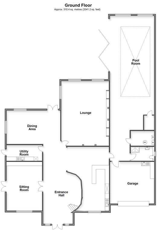
Room sizes:Entrance Hall: 20'8 x 13'2 (6.30m x 4.02m)Kitchen/Breakfast Area: 25'11 x 13'7 (7.90m x 4.14m)Sitting Room: 19'11 x 14'5 (6.07m x 4.40m)Utility Room: 14'4 x 5'4 (4.37m x 1.63m)Dining Area: 21'6 x 13'7 (6.56m x 4.14m)Lounge: 26'2 x 19'3 (7.98m x 5.87m)Pool Room: 58'11 x 18'0 (17.97m x 5.49m)Boiler Room: 9'6 x 6'1 (2.90m x 1.86m)Shower Room: 9'6 x 5'11 (2.90m x 1.80m)FIRST FLOORGalleried Landing: 18'3 x 6'7 (5.57m x 2.01m)Bedroom 1: 26'2 x 19'6 (7.98m x 5.95m)En Suite Bathroom: 13'3 x 9'1 (4.04m x 2.77m)Bedroom 2: 18'1 x 13'7 (5.52m x 4.14m)Family Bath/Shower Room: 14'1 x 7'6 (4.30m x 2.29m)Bedroom 4: 14'6 x 12'4 (4.42m x 3.76m)Bedroom 3: 14'4 x 13'4 (4.37m x 4.07m)OUTSIDERear GardenElectric Gated DrivewayDouble Garage: 18'3 x 17'11 (5.57m x 5.46m) 
The information provided about this property does not constitute or form part of an offer or contract, nor may it be regarded as representations. All interested parties must verify accuracy and your solicitor must verify tenure/lease information, fixtures & fittings and, where the property has been extended/converted, planning/building regulation consents. All dimensions are approximate and quoted for guidance only as are floor plans which are not to scale and their accuracy cannot be confirmed. Reference to appliances and/or services does not imply that they are necessarily in working order or fit for the purpose.
 
We are pleased to offer our customers a range of additional services to help them with moving home. None of these services are obligatory and you are free to use service providers of your choice. Current regulations require all estate agents to inform their customers of the fees they earn for recommending third party services. If you choose to use a service provider recommended by Fine & Country, details of all referral fees can be found at the link below. If you decide to use any of our services, please be assured that this will not increase the fees you pay to our service providers, which remain as quoted directly to you.

Council Tax band: G

Tenure: Freehold

Property LOCATION

Show Map
Powered by Apex27