Property SEARCH

6 bed Detached House

£550,000

Stoke Road, Allhallows, Rochester, Kent

AVAILABLE


Property FEATURES

  • Stunning grade II listed detached house built in 1693
  • Period features and a wealth of character alongside modern benefits
  • Roof terrace with views over countryside
  • Central village location
  • Rear gated entrance for several vehicles
  • Electric charge car point, mature gardens
View Brochure

Property DESCRIPTION

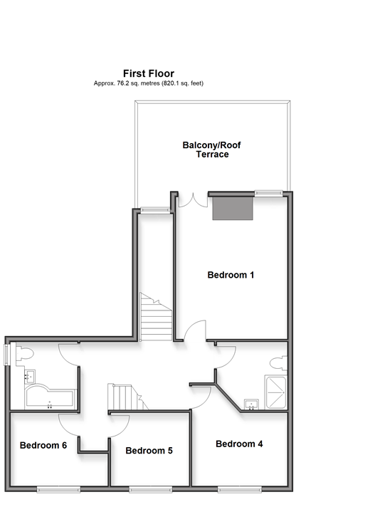
An extremely spacious and stunning grade 2 listed detached house offering flexible accommodation and a wealth of period features. Situated opposite the village Church and within easy reach of countryside walks this is a property for a buyer wanting a unique home with huge character and charm. Room sizes:Entrance HallLounge: 21'9 x 15'5 (6.63m x 4.70m)Sitting Area: 14'1 x 12'10 (4.30m x 3.91m)Inner HallwayKitchen/Breakfast Area: 14'5 x 14'0 (4.40m x 4.27m)Dining Area: 15'5 x 10'5 (4.70m x 3.18m)CloakroomUtility Room: 13'9 x 10'5 (4.19m x 3.18m)Office: 34'3 x 8'4 (10.45m x 2.54m)LandingBedroom 1: 16'6 x 13'3 (5.03m x 4.04m)Balcony/Roof TerraceBathroomBedroom 4: 12'3 x 10'7 (3.74m x 3.23m)Bedroom 5: 9'6 x 9'4 (2.90m x 2.85m)Bedroom 6: 11'3 x 8'3 (3.43m x 2.52m)Bathroom: 7'9 x 6'0 (2.36m x 1.83m)LandingBedroom 2: 18'2 x 13'3 (5.54m x 4.04m)Bedroom 3: 16'8 x 9'4 (5.08m x 2.85m)BathroomDrivewayRear Garden 
The information provided about this property does not constitute or form part of an offer or contract, nor may it be regarded as representations. All interested parties must verify accuracy and your solicitor must verify tenure/lease information, fixtures & fittings and, where the property has been extended/converted, planning/building regulation consents. All dimensions are approximate and quoted for guidance only as are floor plans which are not to scale and their accuracy cannot be confirmed. Reference to appliances and/or services does not imply that they are necessarily in working order or fit for the purpose.
 
Legal advice should be taken to verify fixtures/fittings, planning, alterations and/or lease details. Appliances & services are untested, dimensions are approximate and floor plans are not to scale. Through a Homewise Home For Life Plan people aged 60+ can secure this property for up to 59% less, by purchasing a Lifetime Lease.
 
We are pleased to offer our customers a range of additional services to help them with moving home. None of these services are obligatory and you are free to use service providers of your choice. Current regulations require all estate agents to inform their customers of the fees they earn for recommending third party services. If you choose to use a service provider recommended by Wards, details of all referral fees can be found at the link below. If you decide to use any of our services, please be assured that this will not increase the fees you pay to our service providers, which remain as quoted directly to you.

Council Tax band: F

Tenure: Freehold

Property LOCATION

Show Map
Powered by Apex27