Property SEARCH

3 bed Semi-detached House

£460,000

Chilmington Rise, Great Chart, Ashford, TN23

AVAILABLE


Property FEATURES

  • Brand new development - Call us today
  • Flooring included throughout
  • Appliances included
  • Superfast broadband
  • Car Barn & driveway
  • 10-year LABC build warranty - Built to last quality
  • Part Exchange and Assisted Move available*
View Brochure

Property DESCRIPTION

SUMMARY
Luxury semi-detached home of approx. 1346sqft in an enviable position of the ever popular Chilmington Rise development. Boasts a kitchen/diner, impressive 22' main bedroom (+en-suite) & car barn & driveway. INCENTIVES AVAILABLE*!


DESCRIPTION
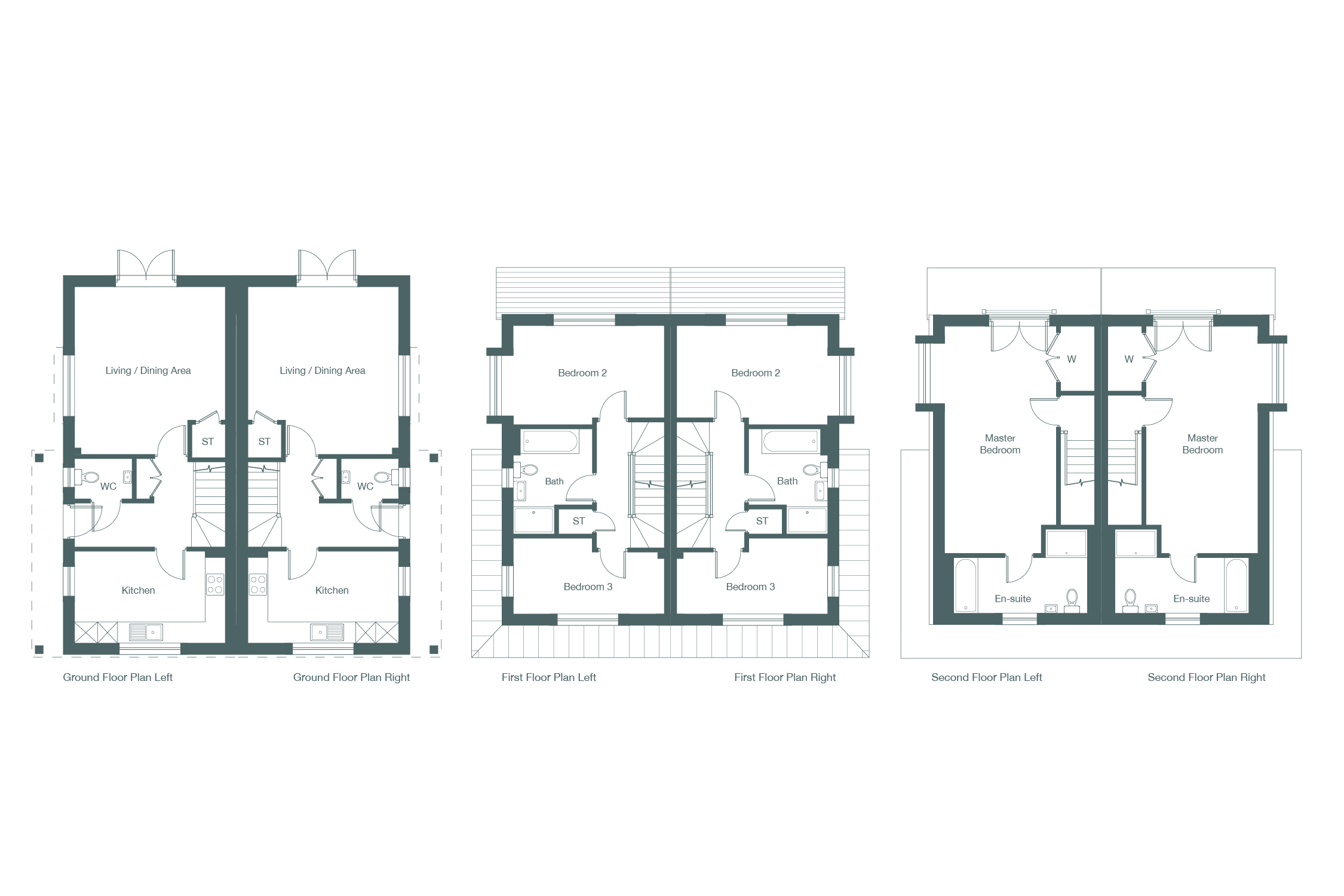
The Saffron's accommodation consists of a large living room/dining room, separate well-appointed kitchen, and w/c on the ground floor.

First floor consists of two double bedrooms with a large family bathroom in between complete with a bath and a separate double shower.

Second floor is the master suite with fitted wardrobes, Juliet balcony and large en-suite complete with bath and a separate large double shower. The property has extremely good head heights throughout.

Outside the garden has a patio area, turfing and garden shed. Parking is a car barn and driveway.

Other benefits within the property include superfast broadband connection and 10-year LABC build warranty.

Please call or email now for your appointment to view this stunning home. Don't miss your opportunity.

*T&C's apply
Council Tax Band: Not currently available, please contact the branch Tenure: Unknown

Additional Information
Chilmington Rise is a beautiful new development of 2, 3, 4 and 5 bedroom houses and 2-bedroom apartments. This brand-new neighbourhood placed in the exciting Garden Village of Chilmington with a new Primary and Secondary School.
Residents at Chilmington Rise will have access to a huge selection of amenities within the Garden Village of Chilmington. The High Street will have a great choice of shops, a supermarket, restaurants, leisure facilities and other commercial businesses. The community hub will also offer a large range of services for your convenience, including GP surgeries. All of this surrounded by parkland.
*Part exchange and Assisted Move available on this home operated through our partner companies Spring Move and Connells. Subject to conditions.


Disclaimer
All the information has been provided by the developer and is subject to change. Please note all interior images are either computer generated or of the show home and are indicative only. External images shows the typical appearance of a 'Saffron' house - image used may not be specific plot advertised.




1. MONEY LAUNDERING REGULATIONS - Intending purchasers will be asked to produce identification documentation at a later stage and we would ask for your co-operation in order that there will be no delay in agreeing the sale.
2. These particulars do not constitute part or all of an offer or contract.
3. The measurements indicated are supplied for guidance only and as such must be considered incorrect.
4. Potential buyers are advised to recheck the measurements before committing to any expense.
5. Connells has not tested any apparatus, equipment, fixtures, fittings or services and it is the buyers interests to check the working condition of any appliances.
6. Connells has not sought to verify the legal title of the property and the buyers must obtain verification from their solicitor.

Property LOCATION

Show Map
Powered by Apex27