Property SEARCH

4 bed Semi-detached House

£450,000

Fallowfield, Wayfield, Chatham, ME5

AVAILABLE


Property FEATURES

  • Four Double Bedrooms
  • Extended Semi-Detached House
  • Immaculate Condition
  • Downstairs Cloakroom
  • Sought After Location
  • Long Driveway
  • Garage (Currently Used as Utility/Gym)
  • Ideal Family Home

Property DESCRIPTION

Immaculately presented throughout. The current vendors have invested a lot of time and resources to create a fantastic family home. Situated in the sought after location of Wayfield on the outskirts of Chatham with access to local shops, schools and amenities.

There is a welcoming porch and bright entrance hall with staircase and glass balustrade. There is a convenient downstairs cloakroom too. The well appointed kitchen includes integral fridge and freezer, integrated microwave, hob and oven with bi-fold doors that open completely to the rear garden, bringing the outside in. Perfect for family and friends get togethers. The garden room is connected to the lounge and has heating for the cooler months and patio doors and windows overlooking the garden.

To the first floor are three bedrooms, all of good size, one of which is currently being used as an excellent office space. The bathroom is contemporary with an amazing triple size walk in shower.

Moving up to the top floor, is the converted loft space providing a tranquil bedroom and dressing area.

The rear garden is decked with raised borders and gazebo with plenty of side access/storage area. The garage has plumbing for washing machine, electronic up and over door and is currently used as a gym space.

Superb property, must be viewed.

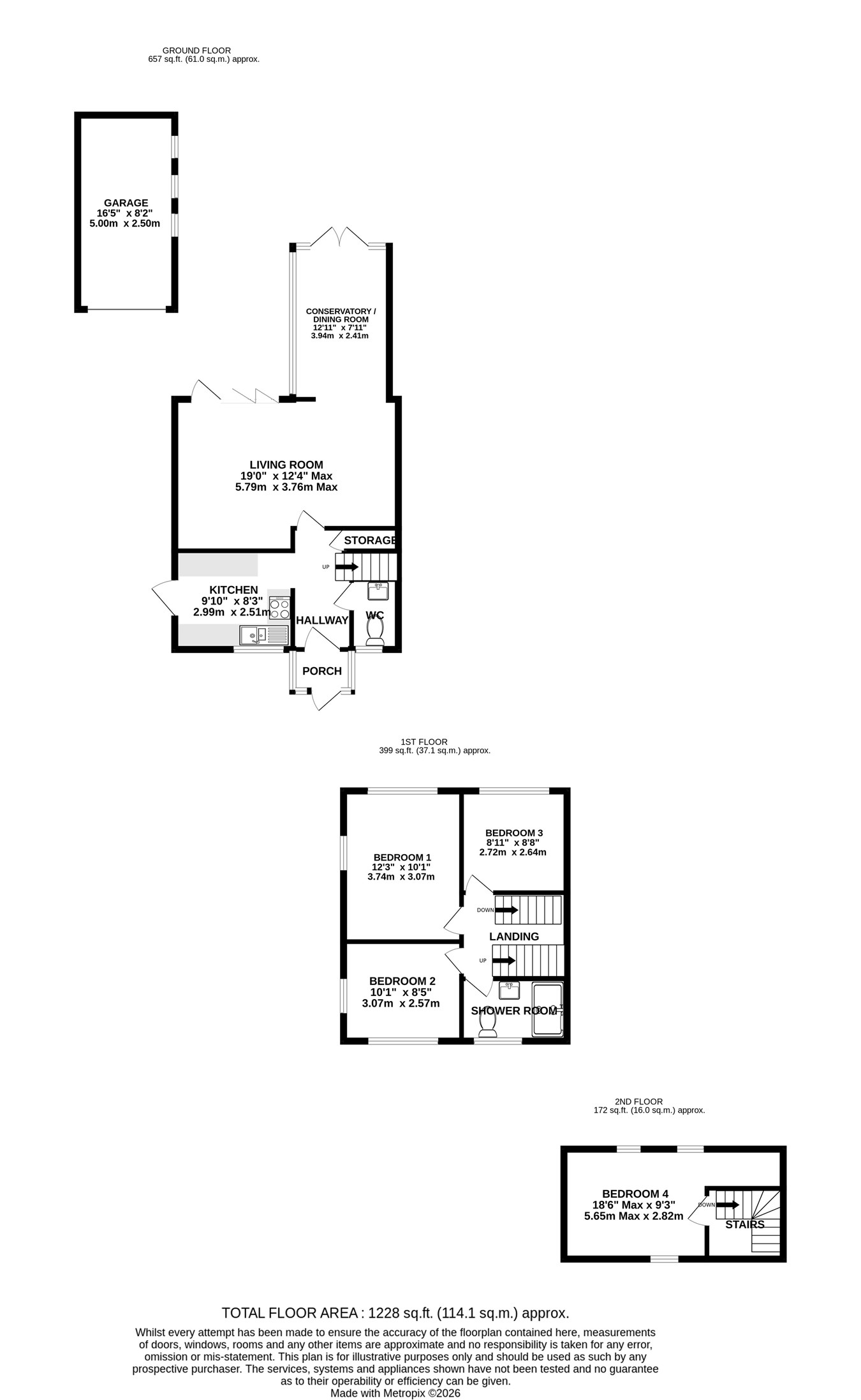
Ground Floor


Entrance Hall


Cloakroom
5' 5" x 3' 4" (1.65m x 1.02m)

Kitchen
9' 10" x 8' 3" (3.00m x 2.51m)

Living Room
19' 0" x 12' 4" (5.79m x 3.76m)

Conservatory/Dining Room
12' 11" x 7' 11" (3.94m x 2.41m)

First Floor


Bedroom 1
12' 3" x 10' 1" (3.73m x 3.07m)

Bedroom 2
10' 1" x 8' 5" (3.07m x 2.57m)

Bedroom 3
8' 11" x 8' 8" (2.72m x 2.64m)

Shower Room
8' 8" x 5' 5" (2.64m x 1.65m)

Second Floor


Loft Bedroom
18' 6" x 9' 3" (5.64m x 2.82m)

External


Garage
16' 5" x 8' 2" (5.00m x 2.49m)

Property LOCATION

Show Map
Powered by Apex27