Property SEARCH

2 bed Chalet

£215,000

Hamilton Road, Gillingham, ME7

AVAILABLE


Property FEATURES

  • Semi-Detached Chalet Bungalow
  • Fantastic Outlook Overlooking A Park
  • Perfect First Time Buy Or Potential Investment Opportunity
  • Two Generous Double Bedrooms
  • Spacious Separate Family Bathroom
  • Plenty Of Amenities Nearby
  • 0.5 Miles To Gillingham Train Station
  • Low Maintenance Rear Garden With Outbuilding Measuring Approx 32ft x 16ft

Property DESCRIPTION

A well-presented two-bedroom semi-detached chalet bungalow situated in a popular Gillingham location, ideally positioned within walking distance of Gillingham mainline train stations, the town centre, and a wide range of local amenities. The property also benefits from pleasant views overlooking a nearby park. The ground floor offers a generously sized lounge/dining room, a generous double bedroom with built-in wardrobes, a well-appointed fitted kitchen, and a spacious family bathroom. To the first floor is a further double bedroom, providing flexible accommodation. Externally, the rear garden is a great size and designed for low maintenance, making it ideal for entertaining. Side access leads through to the front garden, completing this attractive home.

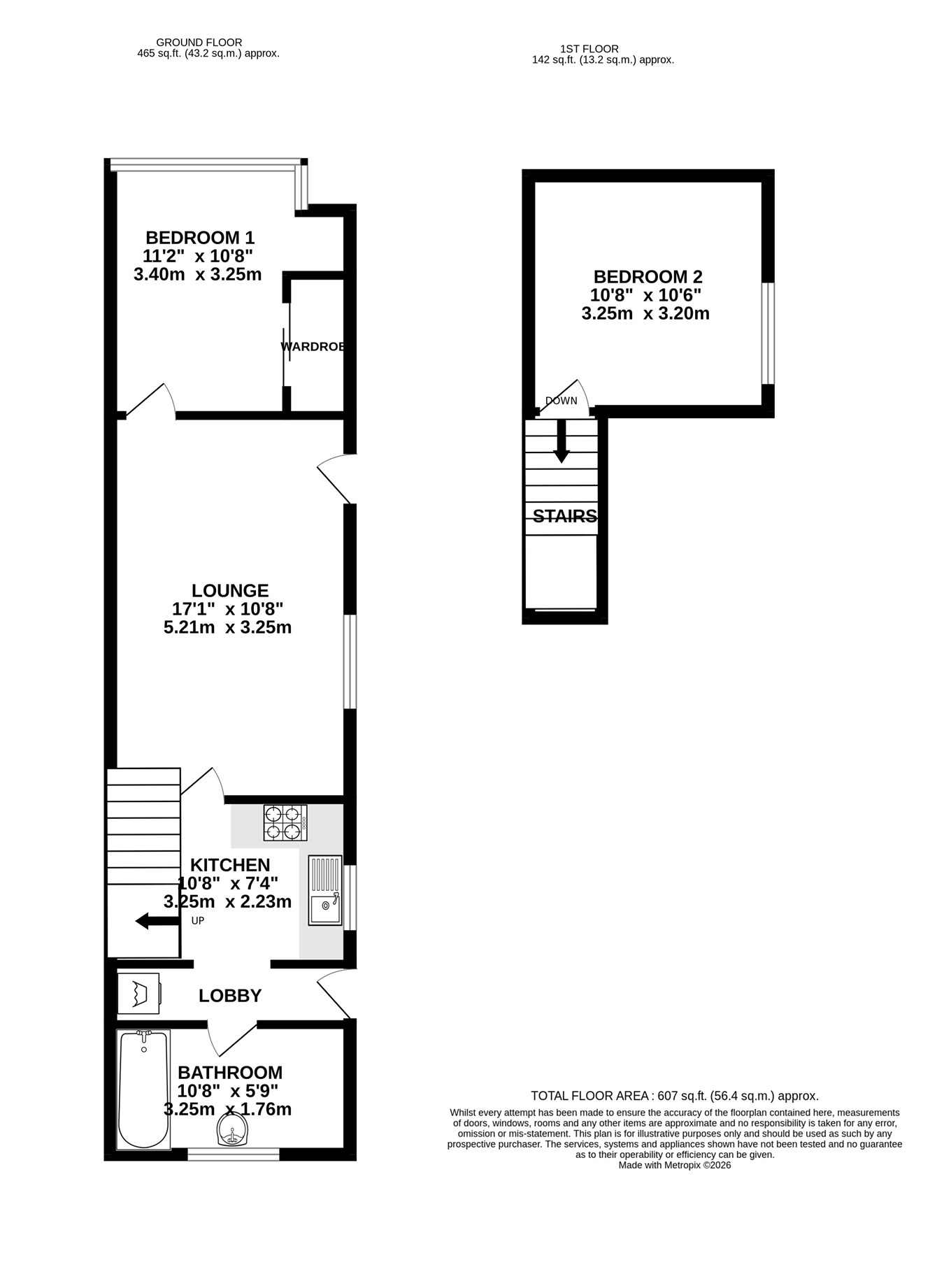
Ground Floor


Bedroom 1
10' 08" x 8' 10" (3.25m x 2.69m)

Bathroom
8' 0" x 2' 09" (2.44m x 0.84m)

Kitchen
10' 07" x 7' 02" (3.23m x 2.18m)

Lounge
17' 0" x 10' 08" (5.18m x 3.25m)

First Floor


Bedroom 2
9' 07" x 5' 10" (2.92m x 1.78m)

Property LOCATION

Show Map
Powered by Apex27