Property SEARCH

3 bed End of Terrace House

£500,000

Hermitage Lane, Boughton Monchelsea, Maidstone, Kent

AVAILABLE


Property FEATURES

  • High specification home with modern and traditional features
  • Superb open plan kitchen/diner, sure to become the hub of the home
  • Garage and off road parking for multiple vehicles
  • Picturesque semi rural location with stunning scenery and countryside walks on your doorstep
  • NO FORWARD CHAIN
  • Above-average EPC energy efficiency rating B (87)
View Brochure

Property DESCRIPTION

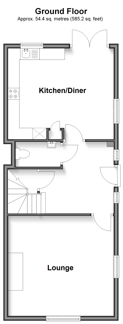
Built in 2023 this superb and spacious end of terrace family house is located in a picturesque semi rural location, yet just a short drive to local shops, schools and amenities. Benefiting from a superb open plan kitchen/diner, modern interiors and a garage and ample off road parking, offered with no forward chain. Room sizes:Entrance HallDownstairs Cloakroom: 6'1 x 3'1 (1.86m x 0.94m)Lounge: 15'0 x 14'1 (4.58m x 4.30m)Kitchen/Diner: 15'0 x 13'1 (4.58m x 3.99m)LandingBedroom 1: 15'0 x 14'1 (4.58m x 4.30m)Bedroom 2: 15'0 x 13'1 (4.58m x 3.99m)Bedroom 3: 9'0 x 8'1 (2.75m x 2.47m)Bathroom: 6'0 x 6'0 (1.83m x 1.83m)Garage and Off Road ParkingRear Garden 
The information provided about this property does not constitute or form part of an offer or contract, nor may it be regarded as representations. All interested parties must verify accuracy and your solicitor must verify tenure/lease information, fixtures & fittings and, where the property has been extended/converted, planning/building regulation consents. All dimensions are approximate and quoted for guidance only as are floor plans which are not to scale and their accuracy cannot be confirmed. Reference to appliances and/or services does not imply that they are necessarily in working order or fit for the purpose.
 
We are pleased to offer our customers a range of additional services to help them with moving home. None of these services are obligatory and you are free to use service providers of your choice. Current regulations require all estate agents to inform their customers of the fees they earn for recommending third party services. If you choose to use a service provider recommended by Wards, details of all referral fees can be found at the link below. If you decide to use any of our services, please be assured that this will not increase the fees you pay to our service providers, which remain as quoted directly to you.

Council Tax band: E

Tenure: Freehold

Property LOCATION

Show Map
Powered by Apex27