Property SEARCH

6 bed Detached House

£1,000,000

Hempstead Road, Hempstead, Gillingham, Kent

AVAILABLE


Property FEATURES

  • A substantial and extended family home offering flexible accommodation over three floors
  • Impressive 30ft lounge with a cosy feature wood burner
  • Spacious 31ft dining/family area perfect for entertaining
  • Luxury fitted bathroom and en-suites
  • Close to local amenities, schools and motorway links
  • Above-average EPC energy efficiency rating C (74)
View Brochure

Property DESCRIPTION

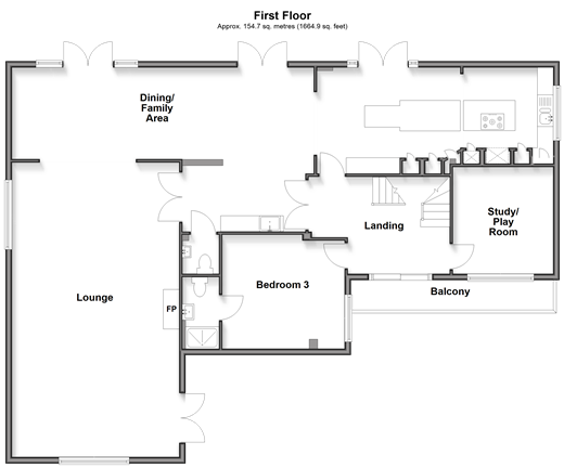
This impressive detached house is set out across three beautifully arranged levels and offers generous and flexible accommodation that would be perfectly suited to a young and growing family. From its expansive living spaces to its versatile bedroom layout, every part of the property has been thoughtfully designed to balance comfort, practicality, and modern family living. The upper floor has a semi-open plan living area and boasts a stunning 30ft lounge with a beautiful feature wood burner as well as an equally large 31ft dining/family area that provides a fantastic space for hosting family and friends. A separate room also gives you an ideal space whether you require a home office, play room or additional lounge. A large driveway provides ample off-street parking and a gated side and rear drive gives a secure additional area. The rear of the property opens onto a superb and generous private garden, enjoying uninterrupted views that create a peaceful and picturesque backdrop-ideal for relaxation, entertaining and a safe place for the children to play. Perfectly positioned for family life, the property is just moments from well regarded schools, a range of local shops, cafés, and restaurants, as well as convenient motorway links that make commuting simple and stress free. This is a rare opportunity to secure a wonderful family home that would be hard to match on space and condition. Room sizes:Entrance Hall: 14'3 x 9'7 (4.35m x 2.92m)Store RoomBoot Room: 12'5 x 8'8 (3.79m x 2.64m)Utility Room: 9'8 x 8'0 (2.95m x 2.44m)Landing: 13'3 x 9'9 (4.04m x 2.97m)BalconyCloakroomStudy/Play Room: 10'5 x 10'4 (3.18m x 3.15m)Bedroom 3: 12'7 x 11'8 (3.84m x 3.56m)En-Suite Shower RoomKitchen/Breakfast Area: 23'7 x 11'6 (7.19m x 3.51m)Dining/Family Area: 31'2 x 18'8 at widest point (9.51m x 5.69m)Lounge: 30'5 x 16'5 (9.28m x 5.01m)Landing: 23'7 x 9'6 at widest point (7.19m x 2.90m)Bedroom 1: 13'9 x 11'3 (4.19m x 3.43m)Juliette BalconyDressing Area: 11'3 x 9'2 (3.43m x 2.80m)En-Suite Wet Room: 10'2 at widest point x 9'7 maximum (3.10m x 2.92m)Bedroom 2: 16'5 x 9'4 (5.01m x 2.85m)En-Suite Shower Room: 8'2 x 6'0 (2.49m x 1.83m)Bedroom 4: 12'1 x 9'9 (3.69m x 2.97m)Bedroom 5: 11'5 x 9'7 (3.48m x 2.92m)Bedroom 6: 13'2 x 9'1 (4.02m x 2.77m)Dressing Room: 16'1 x 7'6 (4.91m x 2.29m)Full Family Bathroom: 10'6 x 6'8 (3.20m x 2.03m)Front GardenFront Decking Area: 40'0 at widest point x 31'0 (12.20m x 9.46m)Rear GardenGarage: 13'5 x 10'1 (4.09m x 3.08m)Front DrivewayGated Side/Rear Driveway 
The information provided about this property does not constitute or form part of an offer or contract, nor may it be regarded as representations. All interested parties must verify accuracy and your solicitor must verify tenure/lease information, fixtures & fittings and, where the property has been extended/converted, planning/building regulation consents. All dimensions are approximate and quoted for guidance only as are floor plans which are not to scale and their accuracy cannot be confirmed. Reference to appliances and/or services does not imply that they are necessarily in working order or fit for the purpose.
 
Legal advice should be taken to verify fixtures/fittings, planning, alterations and/or lease details. Appliances & services are untested, dimensions are approximate and floor plans are not to scale. Through a Homewise Home For Life Plan people aged 60+ can secure this property for up to 59% less, by purchasing a Lifetime Lease.
 
We are pleased to offer our customers a range of additional services to help them with moving home. None of these services are obligatory and you are free to use service providers of your choice. Current regulations require all estate agents to inform their customers of the fees they earn for recommending third party services. If you choose to use a service provider recommended by Wards, details of all referral fees can be found at the link below. If you decide to use any of our services, please be assured that this will not increase the fees you pay to our service providers, which remain as quoted directly to you.

Council Tax band: G

Tenure: Freehold

Property LOCATION

Show Map
Powered by Apex27