Property SEARCH

4 bed Barn Conversion

£650,000

Collier Street, Tonbridge, Kent

AVAILABLE


Property FEATURES

  • The images marked "Virtual Stager" show styling potential only. All other images show the property as currently presented.
  • Beautiful Thatched Grade II Listed barn
  • Stunning wrap-around gardens with well stocked fish pond and small stream
  • 3 large reception rooms plus additional(dining/family area)
  • All 4 double bedrooms including main bedroom with en-suite plus huge attic rooms
  • Nearby walks into stunning countryside, river walks & the Green Sand Way
  • Above-average EPC energy efficiency rating C (70)
View Brochure

Property DESCRIPTION

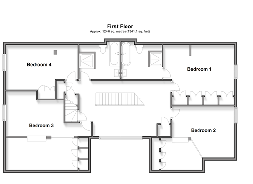
A beautiful thatched Grade II listed barn conversion with delightful wrap around gardens, well stocked fish pond and small stream. Full of stunning features including exposed timbers, Inglenook fireplace, galleried hall and landings. Room sizes:Galleried Entrance HallLounge: 25'4 (7.73m) x 19'6 (5.95m) narrowing to 15'0 (4.58m)Kitchen/Dining/Family Area: 25'7 (7.80m) narrowing to 15'2 (4.63m) x 19'1 (5.82m)Dining Room: 15'4 (4.68m) x 14'0 (4.27m) narrowing to 12'0 (3.66m)Sun Room: 17'0 x 9'4 (5.19m x 2.85m)Utility: 6'8 x 5'4 (2.03m x 1.63m)CloakroomLandingBedroom 1: 16'0 x 11'6 (4.88m x 3.51m)En suite Bedroom 1: 9'2 (2.80m) narrowing to 6'4 (1.93m) x 7'10 (2.39m)Bedroom 2: 16'8 (5.08m) narrowing to 14'1 (4.30m) x 11'4 (3.46m)Bedroom 3: 15'7 (4.75m) x 10'7 (3.23m) narrowing to 8'0 (2.44m)Bedroom 4: 16'0 (4.88m) x 13'1 (3.99m) narrowing to 10'2 (3.10m)Bathroom: 9'1 (2.77m) narrowing to 6'3 (1.91m) x 7'10 (2.39m)Loft Rooms: 51'7 x 13'6 (15.73m x 4.12m)Garage: 18'5 x 9'9 (5.62m x 2.97m)DrivewayFront, Side & Rear Gardens 
The information provided about this property does not constitute or form part of an offer or contract, nor may it be regarded as representations. All interested parties must verify accuracy and your solicitor must verify tenure/lease information, fixtures & fittings and, where the property has been extended/converted, planning/building regulation consents. All dimensions are approximate and quoted for guidance only as are floor plans which are not to scale and their accuracy cannot be confirmed. Reference to appliances and/or services does not imply that they are necessarily in working order or fit for the purpose.
 
Legal advice should be taken to verify fixtures/fittings, planning, alterations and/or lease details. Appliances & services are untested, dimensions are approximate and floor plans are not to scale.
 
We are pleased to offer our customers a range of additional services to help them with moving home. None of these services are obligatory and you are free to use service providers of your choice. Current regulations require all estate agents to inform their customers of the fees they earn for recommending third party services. If you choose to use a service provider recommended by Wards, details of all referral fees can be found at the link below. If you decide to use any of our services, please be assured that this will not increase the fees you pay to our service providers, which remain as quoted directly to you.

Council Tax band: G

Tenure: Freehold

Property LOCATION

Show Map
Powered by Apex27