Property SEARCH

2 bed Park Home

£160,000

Castle Drive, Harrietsham, Maidstone, ME17

AVAILABLE


Property FEATURES

  • Age-restricted development (Over-50s) in a peaceful gated community
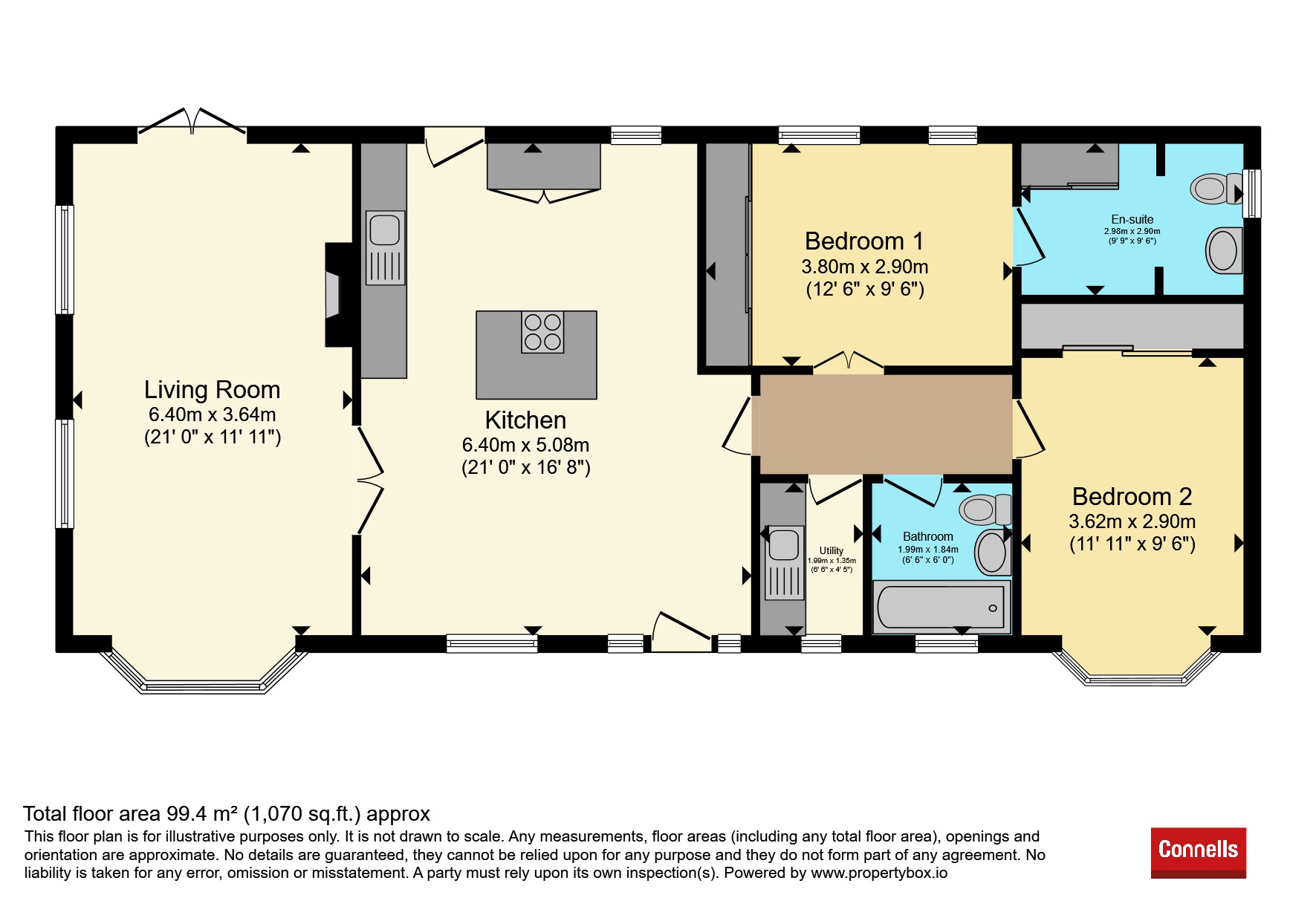
  • Two bedrooms, including a master with ensuite
  • Open-plan living space with modern kitchen and bright lounge
  • Onsite leisure facilities: clubhouse/bar, indoor pool & gym
  • Excellent transport links: train to London/Ashford, bus services, plus easy road access
View Brochure

Property DESCRIPTION

SUMMARY
A charming two bedroom park home nestled in the heart of the Garden of England, offering relaxed countryside living with easy access to modern conveniences, transport links, and local community amenities.


DESCRIPTION
An elegant and well-maintained two bedroom park home showcasing the perfect blend of comfort, convenience, and countryside charm. Situated on a friendly, age-restricted development—ideally suited to over-50s—this home provides a peaceful retreat with excellent amenities, both onsite and locally.Step inside to discover a bright and welcoming open-plan layout that effortlessly combines a modern kitchen, dining area, and spacious lounge. The lounge features cozy aspects and large windows that fill the space with natural light.

Accommodation comprises two inviting bedrooms—complete with an ensuite shower room to the master—and a separate main bathroom.Outside, private parking and a wrap around garden provide outdoor space to enjoy. Residents benefit from exclusive use of a vibrant clubhouse, complete with bar-restaurant, heated indoor pool, and gym facilities—perfect for an active and sociable lifestyle. Scenic walking trails and lush greenery are right on your doorstep.Positioned within easy reach of the charming village of Harrietsham, enjoy local pubs, cafés, a village shop, and the historic St John the Baptist Church. The village is steeped in history—dating back to the Domesday Book—and renowned for its tranquil setting in the North Downs, with the River Len flowing nearby Council Tax Band: B Tenure: Unknown

Agents Note
There are a number of obligations on both sellers and buyers when completing the process for purchasing a park home. Sites often have requirements specific to the purchase and to 'the site' in general, which could include paying the site owners commission. Intending purchasers should satisfy themselves about any such requirements including any specific restrictions on occupancy or residential use of the home.
Purchasers are strongly advised to take advice from a solicitor. Guidance can be sought from Park homes - GOV.UK (www.gov.uk)

Agents Note
We have been unable to verify material information that relates to this property. We ask that buyers make their own enquiries and satisfy themselves in regards to anyspecific requirements before proceeding



We are currently awaiting Tenure details. For further information please contact the branch. Please note additional fees could be incurred for items such as leasehold packs.



1. MONEY LAUNDERING REGULATIONS - Intending purchasers will be asked to produce identification documentation at a later stage and we would ask for your co-operation in order that there will be no delay in agreeing the sale.
2. These particulars do not constitute part or all of an offer or contract.
3. The measurements indicated are supplied for guidance only and as such must be considered incorrect.
4. Potential buyers are advised to recheck the measurements before committing to any expense.
5. Connells has not tested any apparatus, equipment, fixtures, fittings or services and it is the buyers interests to check the working condition of any appliances.
6. Connells has not sought to verify the legal title of the property and the buyers must obtain verification from their solicitor.

Powered by Apex27