Property SEARCH

4 bed Terraced

£280,000

Castle Avenue, Rochester

FOR SALE


Property FEATURES

  • No Onward Chain
  • Good Sized Terraced House
  • 4 Bedrooms
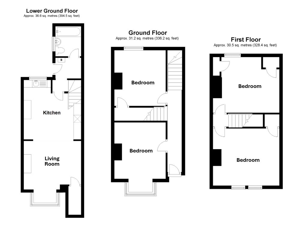
  • Accommodation Over 3 Floors
  • Generous Sized Open Plan Kitchen/Living Area
  • Bathroom
  • Rear Garden Extending to Approx 70'
  • Popular & Convenient Location
  • EPC Rating D
  • Council Tax Band C

Property DESCRIPTION

This good sized and versatile four-bedroom mid-terraced home offers flexible accommodation across three floors and is positioned within walking distance of Rochester High Street and the mainline train station, making it an convenient location.

The ground floor comprises two bedrooms, with the front room offering the option to be used as an additional sitting room if desired. On the lower ground floor, you ll find a spacious open-plan kitchen and living area, a rear lobby with access to the garden, and a family bathroom. The first floor completes the accommodation with a further two bedrooms.

Externally, the property enjoys a generous rear garden, extending to approximately 70ft and mainly laid to lawn perfect for families or outdoor entertaining.

Offered to the market with No Onward Chain, this property is ready for its new owners to move in and make their own.

Property LOCATION

Show Map
Powered by Apex27