Property SEARCH

4 bed Detached House

£1,150,000

The Street, Kingston, Canterbury

FOR SALE


Property FEATURES

  • Substantial & Beautifully Presented Family Home
  • Idyllic Rural Location with Uninterrupted Countrys
  • 2863 sq ft (266 sq m) of Versatile Accommodation
  • Finished to an Exceptional Standard Throughout
  • Generous Reception Space
  • 4 Bedrooms
  • 3 Bathrooms
  • Integral Double Garage
  • Off-Street Parking
  • Extensive Landscaped Gardens

Property DESCRIPTION

A substantial and beautifully presented family home, set within an idyllic rural location and enjoying spectacular, uninterrupted countryside views. The property occupies a prime position within the desirable village of Kingston, approximately 6 miles from the historic Cathedral City of Canterbury, which offers High Speed rail services to London and excellent schooling options.

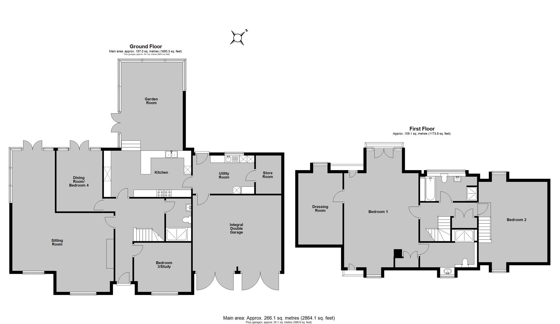
Extending to approximately 2863 sq ft (266 sq m), the accommodation is generous, versatile and finished to an exceptional standard throughout. The ground floor includes a welcoming entrance hall with an oak staircase rising to the first floor. The contemporary kitchen, fitted in heritage tones with granite worktops, leads into a superb garden room; a dramatic oak-framed and glazed addition with a vaulted ceiling, creating a striking living and dining space that beautifully connects the house with the gardens.
A generous dual-aspect sitting room features an exposed brick fireplace with a wood-burning stove, while a separate dining room provides an elegant entertaining space. The ground floor is further complemented by a study/bedroom positioned near the front of the house, a stylish shower room, a well-appointed utility room, and a useful store room. An integral double garage is accessed directly from the utility area.

The first floor offers two excellent double bedrooms, both enjoying far-reaching views across rolling countryside. The impressive principal bedroom suite includes a dressing room, a beautifully fitted en-suite shower room, and a Juliette balcony overlooking the gardens. A further generous bathroom serves the second bedroom.

The gardens are a particularly attractive feature, having been thoughtfully landscaped to provide a large natural stone terrace, expansive lawns, mature planting, a pond and an allotment area beyond the hedging. To the front, a block-paved driveway provides parking for several vehicles and access to the integral double garage.

Property LOCATION

Show Map
Powered by Apex27