Property SEARCH

4 bed Detached House

£850,000

Northwood Road, Whitstable

FOR SALE


Property FEATURES

  • Beautifully Presented Detached Family Home
  • Prime Central Location
  • Seafront 250 metres
  • Whitstable Mainline Station 700 metres
  • 2 Reception Rooms
  • 4 Bedrooms & 2 Bathrooms
  • Delightful Landscaped Garden
  • Summer House & Workshop
  • Off-Street Parking
  • No Onward Chain

Property DESCRIPTION

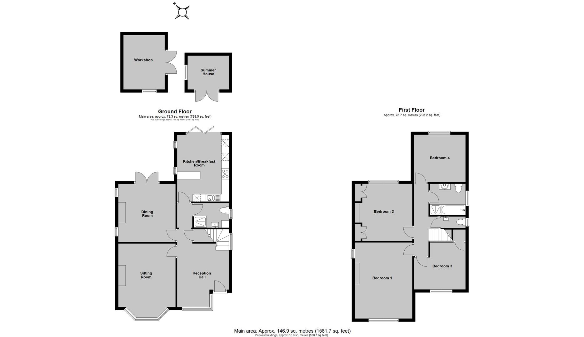
A beautifully presented detached family home situated in a prime central location, 250 metres from the seafront and 400 metres from the harbour, with the shops and amenities of Whitstable High Street and Tankerton Road within easy walking distance. It is a short distance from highly regarded schools and from Whitstable mainline station (700 metres).

The exceptionally spacious and versatile accommodation benefits from high ceilings throughout and comprises a large reception hall, a sitting room with a wood-burning stove, a dining room, a contemporary kitchen/breakfast room with bi-folding doors opening onto the garden, and a stylish shower room. To the first floor, there are four double bedrooms, a well-appointed bathroom, and a separate cloakroom.

The delightful rear garden extends to 71 ft (21.6 m) and has been thoughtfully landscaped to include a natural stone terrace, a pond with raised deck and walkway leading to a summer house, and a workshop suitable for a variety of uses. To the rear of the property, there is an area of off-street parking accessed via a right of way from both Northwood Road and Tower Road. No onward chain.

Property LOCATION

Show Map
Powered by Apex27