Property SEARCH

4 bed Detached House

£1,300,000

North Pole Road, Barming, Maidstone

FOR SALE


Property FEATURES

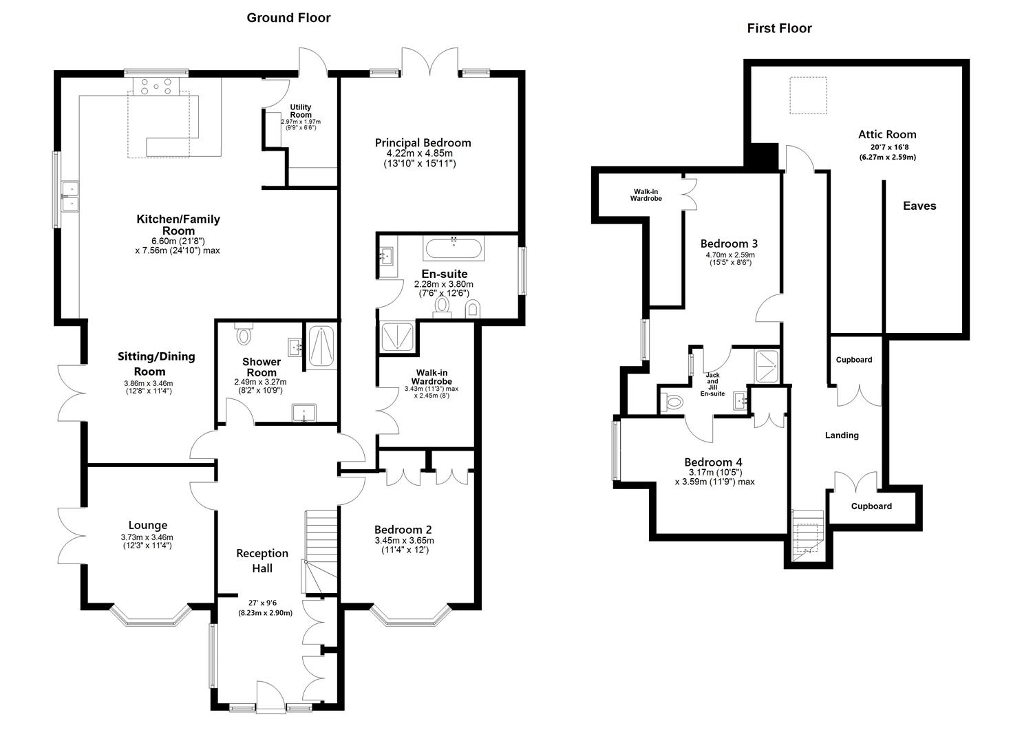
  • 4 bed detached chalet style property
  • Stunning location with views
  • Spacious accommodation, high spec
  • Magnificent kitchen/family room
  • Utility room
  • 3 bathrooms
  • Detached double garage
  • Landscaped gardens approx one third of an acre
  • Outbuildings

Property DESCRIPTION

Fellgarth is situated in a quite stunning setting bordering open farmland on the periphery of Barming. The immediate area has excellent local amenities with the county town itself providing a wide range of shopping, educational and social facilities. There is a station in Barming providing services to London.

The property comprises a very substantial detached chalet style property which has been finished to an extremely high specification. The property was built in the late 1920's and has been subject to considerable improvement and extension since that time. The gardens extend to about one third of an acre and are worthy of special mention being beautifully landscaped and taking full advantage of the immediate surroundings. Internal inspection of this quality family home is thoroughly recommended by the sole selling agents. Contact: PAGE & WELLS King Street office 01622 756703. EPC Rating: D.
Council Tax Band: E. Tenure: Freehold.

Property LOCATION

Show Map
Powered by Apex27