Property SEARCH

3 bed Semi-detached House

£525,000

Fernham Homes At Fawkham, Fernham Homes at Fawkham, Longfield, Kent

AVAILABLE


Property FEATURES

  • Ready to live in specification - no hidden upgrades
  • Amtico, carpet and tiling included throughout
  • Fitted wardrobe and en-suite to principal bedroom
  • Bosch kitchen appliances
  • Quartz stone worktops with featured tile splashback to kitchen
  • Samsung Air Source Heat Pump
  • Allocated parking for 2 cars
  • Turf and patio paving in the rear gardens
  • 10-year Premier Guarantee warranty and 2-year Fernham Homes customer service support
View Brochure

Property DESCRIPTION

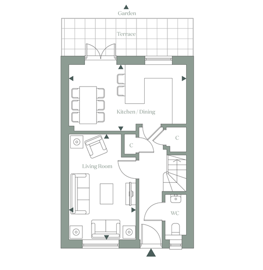
The Fairfield is a charming bedroom home extending to 954 square feet, with an open-plan kitchen, breakfast bar and dining area that seamlessly extends to the garden, together with a separate living room at the front of the property. All window dressings are included in this plot. The cloakroom and storage cupboard in the hallway maximises space and convenience. Upstairs, there is a principal bedroom with an en-suite and a fitted wardrobe. Bedroom 2 is a double bedroom and bedroom 3 could be used as a single bedroom or a home office. Fernham Homes at Fawkham features 16 meticulously designed three and four bedroom homes. Each home boasts quality specifications with exquisitely crafted interiors, and includes two parking spaces or carports and E.V. Charging. All homes are fully equipped with everything you need, from flooring and appliances to mirrors and robe hooks, ensuring they are ready to live in. Situated on Fawkham Road and tucked away in the Green Belt of north west Kent, this hamlet within the Sevenoaks District is a highly desirable place to live for those seeking a home in the countryside with easy access into London. Daily essentials are at your convenience, with the nearby village offering a diverse range of amenities. A 9 minutes stroll to Waitrose Supermarket situated opposite the Longfield train station, which provides direct and fast commutes into London Victoria in 31 minutes. Bluewater Shopping Centre is just 4 miles away for access to a wide range of retail outlets, restaurants, cinemas and entertainment facilities. Grammar and independent schools offer. Outstanding and Good ratings, and there is plenty nearby to entertain those seeking an active lifestyle with the London Golf Club, Brands Hatch and the 40-acre Camer Park. Book to view now! *Please note, all homes are freehold and will contribute towards the maintenance of the managed areas by way of an estate charge. Please confirm the amount with the sales team. All imagery shown is indicative. Photography used will occasionally be of show homes and may not necessarily be of the exact home listed. Please confirm with the sales team regarding external and internal finishes of the home you are interested in. Room sizes:GROUND FLOOREntrance HallLounge: 16'0 x 10'2 (4.88m x 3.10m)Kitchen/Diner: 17'10 x 10'1 (5.44m x 3.08m)CloakroomLandingBedroom 1: 10'10 x 9'4 (3.30m x 2.85m)En-Suite Shower RoomBedroom 2: 9'7 x 9'2 (2.92m x 2.80m)Bedroom 3: 9'2 x 7'10 (2.80m x 2.39m)BathroomRear GardenAllocated Parking 
The information provided about this property does not constitute or form part of an offer or contract, nor may it be regarded as representations. All interested parties must verify accuracy and your solicitor must verify tenure/lease information, fixtures & fittings and, where the property has been extended/converted, planning/building regulation consents. All dimensions are approximate and quoted for guidance only as are floor plans which are not to scale and their accuracy cannot be confirmed. Reference to appliances and/or services does not imply that they are necessarily in working order or fit for the purpose.
 
We are pleased to offer our customers a range of additional services to help them with moving home. None of these services are obligatory and you are free to use service providers of your choice. Current regulations require all estate agents to inform their customers of the fees they earn for recommending third party services. If you choose to use a service provider recommended by Wards, details of all referral fees can be found at the link below. If you decide to use any of our services, please be assured that this will not increase the fees you pay to our service providers, which remain as quoted directly to you.

Tenure: Freehold

Property LOCATION

Show Map
Powered by Apex27