Property SEARCH

3 bed Semi-detached House

£370,000

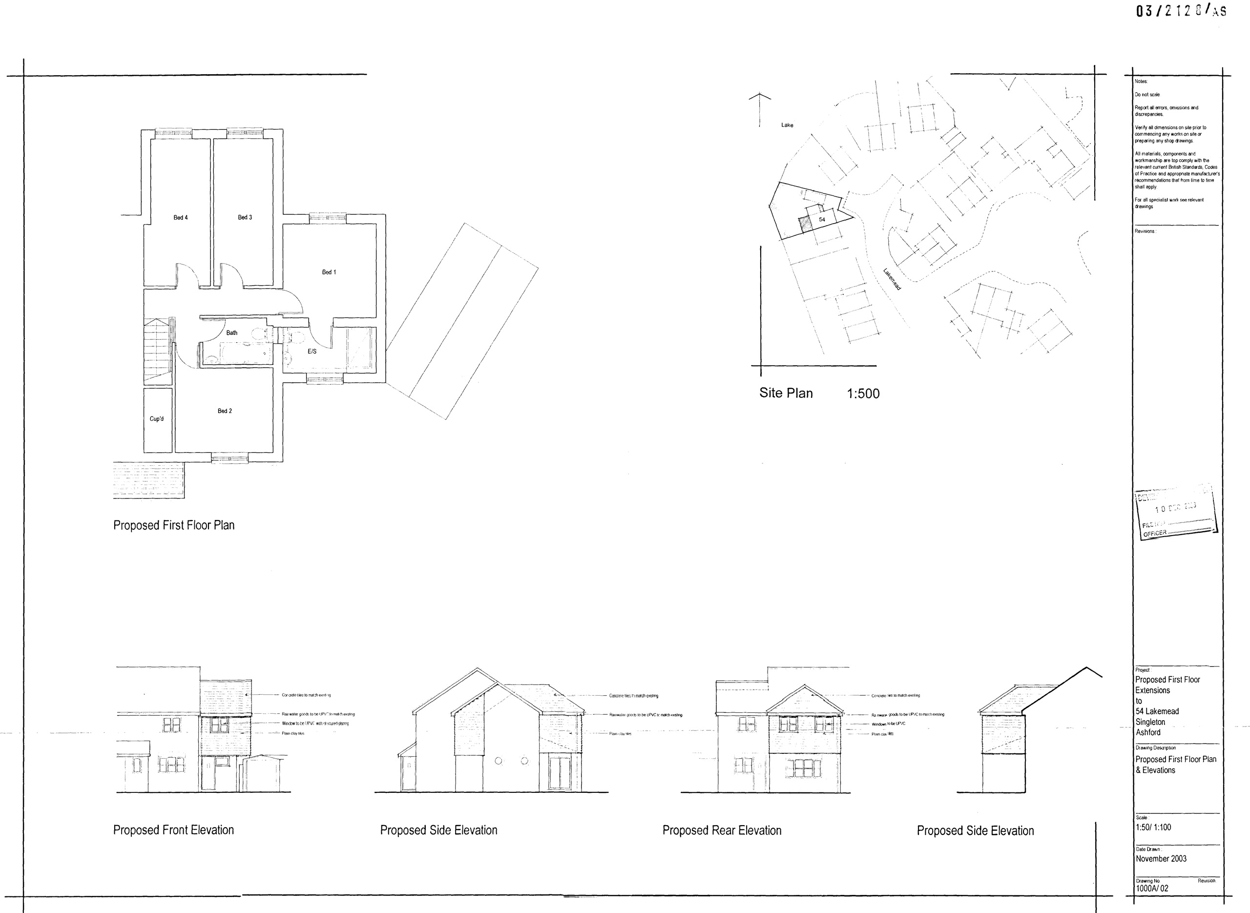
Lakemead, Ashford, TN23

AVAILABLE


Property FEATURES

  • Off-road parking & garage
  • Popular Singleton area
  • No onward chain
  • Extra large corner plot
  • Large 3 DOUBLE bedroom property with previous expired planning for 4 bed conversion, one ensuite
  • Utility Room
  • Walking distance to the OFSTED outstanding rated Great Chart Primary School
  • Backing on to the Single Lake
View Brochure

Property DESCRIPTION

SUMMARY
Connells are delighted to offer this superb 3 bedroom family home on the ever so popular Lakemead. Being offered with no onward chain really does mean you could in sooner than you think!


DESCRIPTION
This beautifully extended three double bedroom semi-detached home (with previous expired planning permission to convert to four bedrooms with an en-suite) backing onto Singleton Lake on a cul-de-sac in Lakemead which offers an impressive blend of space, convenience and privacy. Set on a generous corner plot, the property immediately stands out with its wider front with its two front doors (one through the utility room to keep muddy boots/pets at bay), private driveway and attached garage, providing excellent kerb appeal and practical day-to-day benefits. Inside, the home has been thoughtfully extended to create bright, versatile living areas ideal for modern family life. The ground floor flows effortlessly, offering generous reception/dining space and an additional reception room with French windows perfect for both relaxing and entertaining, while the separate kitchen and utility/cloakroom offers excellent functionality.

Upstairs, three well-proportioned bedrooms provide comfortable accommodation, complemented by a family bathroom with a beautiful mirror wall. Outside, the corner plot offers additional garden space compared to typical homes in the area, giving you more room to enjoy, personalise or further develop subject to planning. With its sought-after location, extended living space and valuable plot position, this Lakemead property presents a fantastic opportunity for buyers looking for a spacious family home in the Singleton Lake area of Ashford. Council Tax Band: D Tenure: Unknown



1. MONEY LAUNDERING REGULATIONS - Intending purchasers will be asked to produce identification documentation at a later stage and we would ask for your co-operation in order that there will be no delay in agreeing the sale.
2. These particulars do not constitute part or all of an offer or contract.
3. The measurements indicated are supplied for guidance only and as such must be considered incorrect.
4. Potential buyers are advised to recheck the measurements before committing to any expense.
5. Connells has not tested any apparatus, equipment, fixtures, fittings or services and it is the buyers interests to check the working condition of any appliances.
6. Connells has not sought to verify the legal title of the property and the buyers must obtain verification from their solicitor.

Property LOCATION

Show Map
Powered by Apex27