Property SEARCH

4 bed Detached House

£499,995

Ridgeway Road, Herne Bay

AVAILABLE


Property FEATURES

  • Charming Chalet Bungalow Adjoining Countryside
  • Four Bedrooms & Two Bathrooms
  • Stunning Views Across Open Fields
  • Rural Walks & Ancient Woodland On The Doorstep
  • 176' (53.65m) Rear Garden With Log Cabin
  • Large Lounge With Working Open Fire
  • Impressive Kitchen/Diner Across The Rear
  • Highly Sought After Semi-Rural Location
  • Wide Frontage With Large Driveway
  • No Forward Chain
View Brochure

Property DESCRIPTION

An enchanting chalet bungalow adjoining Herne's stunning countryside with rural walks across fields and ancient woodland on the doorstep.
This unique home has a lovely cottage style ambience from the moment you step inside with the roaring open fireplace bringing a sense of cosiness to the large living room which has exposed beams.
The property offers a well balanced layout, with two bedrooms on the ground floor served by a family bathroom, and two further bedrooms upstairs, accompanied by a sleek, contemporary shower room. From the first floor bedrooms, you can enjoy beautiful views across the surrounding fields. To the rear sits a beautifully appointed kitchen/diner, featuring elegant shaker style cabinetry and granite work surfaces.
Moving outside, the property continues to impress. The substantial rear garden begins with a raised patio, perfect for outdoor dining, leading to a generous lawn that flows down to a versatile garden cabin with power - ideal as a home office, gym, studio or entertainment room. Beyond the cabin, the garden extends even further and tapering into a point. There is wide frontage with a large driveway providing off street parking for multiple cars.
All in all, this is a stunning country home in a peaceful semi-rural setting, tucked behind the historic village of Herne. Surrounded by fields and ancient woodland, this unique property offers the perfect countryside escape while remaining well connected to local amenities.
A must see home for anyone seeking character, charm and idyllic rural living.

Location:
The historic village of Herne with the church of St. Martins dating circa 1558 is on the outskirts of the fast 'up-and-coming' seaside town of Herne Bay with its ever popular seafront and array of period architecture. The Cathedral City of Canterbury with its range of shopping facilities, restaurants and of course the Marlowe Theatre is only a short drive away and is well served by direct bus routes from the village of Herne. Canterbury is also well served by other amenities including a wealth of high-achieving schools. The harbour town of Whitstable is only 5 miles distant which enjoys a variety of shopping, educational and leisure amenities including sailing, water sports and bird watching, as well as the seafood restaurants for which it has become renowned. Excellent transport links are nearby with Herne Bay mainline train station providing direct links to London Victoria as well as the high speed Javelin service to St London St. Pancras. Easy access to the A299 is nearby providing road links to London via the M2.

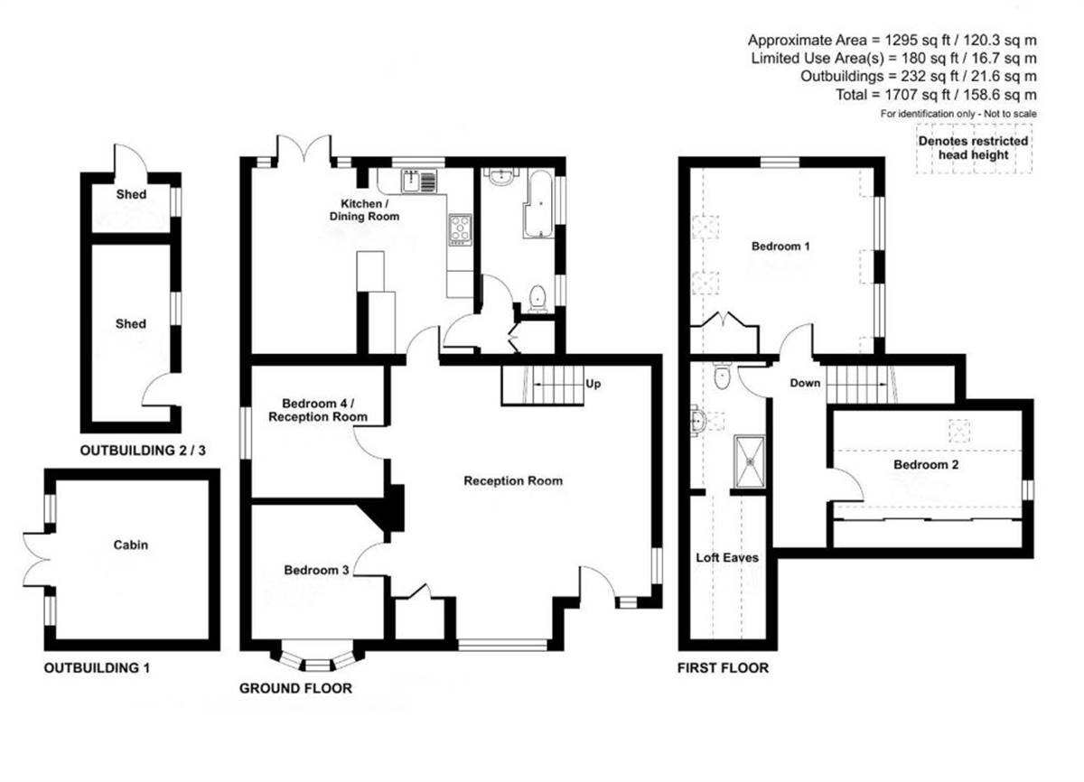
Lounge    19' 3 x 17' 2 Extending to 20' 6 (5.87m x 5.24m)
Composite front entrance door. Windows to front and side overlooking front garden. . Brick fireplace with open hearth.

Bedroom Four    9' 11 x 9' 10 (3.03m x 3m)
Window to side. Radiator. Power points.

Bedroom Three    9' 10 x 10' 7 (3m x 3.23m)
Window to front. Power points. Radiator.

Bathroom    10' 10 x 5' 5 (3.31m x 1.66m)
Suite in white comprising p-shaped bath. Close coupled WC. Wash hand basin set into vanity unit. Tiled walls. Tiled flooring. Frosted windows to side. Extractor fan. Downlighters.

Kitchen/Diner    16' 4 x 13' 11 (4.98m x 4.25m)
The kitchen is planned with a matching range of wall and base units arranged over two walls with a breakfast bar. Inset ceramic sink unit. Granite worktops. Gas hob with electric fan assisted oven. Integrated oven.

First Floor Landing   


Bedroom One    14' 6 x 13' 8 (4.42m x 4.17m)
Windows to side and rear overlooking the rear garden. Radiator. Built in wardrobe. Downlighters.

Bedroom Two    13' 10 x 9' 8 (4.22m x 2.95m)
Windows to side overlooking fields. Radiator. Built in wardrobes.

Family Shower Room    9' 9 x 5' 8 (2.98m x 1.73m)
Suite in white comprising double shower cubicle. Wash hand basin set into vanity unit. Eaves storage. Radiator with towel rail. Extractor fan. Downlighters. Frosted window to side.

Rear Garden    27' 4 x 176' 0 Tapering to a point (8.34m x 53.65m)


Cabin    11' 9 x 11' 4 (3.59m x 3.46m)


Main Shed    13' 2 x 5' 9 (4.02m x 1.76m)


Small Shed    6' 0 x 3' 8 (1.83m x 1.12m)


Front Garden & Driveway    45' 5 x 46' 12 (13.85m x 14.32m)


Main Services
The following mains services are connected to the property electricity, water, gas, drainage and a telephone line. All services will be subject to the appropriate companies transfer conditions.

Heating
Central heating is provided by a gas fired boiler and hot water radiators as indicated in these particulars.

Windows
The windows are generally of UPVC double glazed sealed units.

Tenure
The property is to be sold Freehold with vacant possession.

Council Tax
We are advised by the Valuation Office that the property is currently within Council Tax Band C. The amount payable under tax band C for the year 2025/2026 is £2,106.49

Viewing
Please ring us to make an appointment. We are open from 9am to 6pm Monday to Friday, 9am to 5pm Saturdays and by appointment only on Sundays.

Agent Notes
Kent Estate Agencies gives notice for themselves and for the sellers of the property, whose agents they are that any floor plans, plans or mapping and measurements are approximate quoted in metric with imperial equivalents. All are for general guidance only and whilst every attempt has been made to ensure accuracy, they must not be relied on. The measurements are provided in accordance with the R.I.C.S. Code of Measuring Practice 6th edition.
We have not carried out a structural survey and the services, appliances and specific fittings have not been tested and therefore no guarantee can be given that they are in working order. Photographs are reproduced for general information and it must not be inferred that any item shown is included with the property. Prospective purchasers or lessees should seek their own professional advice. Kent Estate Agencies retain the copyright in all advertising material used to market this property.
No person in the employment of Kent Estate Agencies has any authority to make any representation or warranty whatever in relation to this property. Purchase prices, rents or other prices quoted are correct at the date of publication and, unless otherwise stated, exclusive of VAT.
For a free valuation of your property contact the number on this brochure.

Property LOCATION

Show Map
Powered by Apex27