Property SEARCH

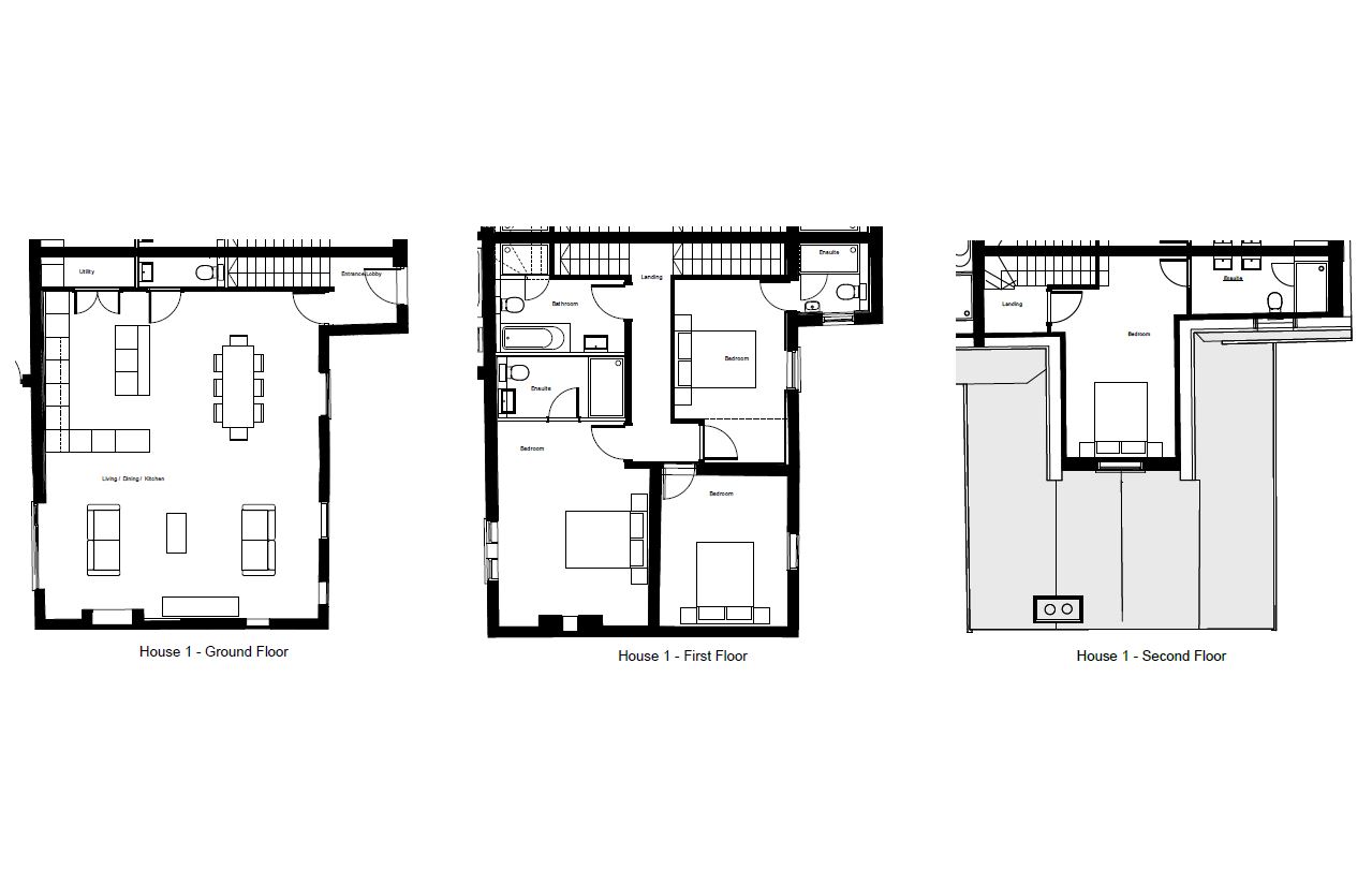
4 bed Semi-detached House

£575,000

Shaw Hill House, Addington, West Malling, ME19

AVAILABLE


Property FEATURES

  • 10 Year Warranty
  • Underfloor Heating
  • Gas Heating
  • High Spec Kitchen
  • Island Kitchen
  • 4 Double Bedrooms / 2 Ensuites
  • Garage
  • EPC - B
View Brochure

Property DESCRIPTION

SUMMARY
An Exceptional conversion project in a sought-after location near West Malling. Live in the country but stay well connected with easy access to the M20 & M26.


DESCRIPTION
This stunning, newly converted four-bedroom home has been finished to an exceptionally high standard and forms part of a characterful building full of original charm. The property features impressive high ceilings throughout and comes with a 10-year warranty for added peace of mind.

Inside, you'll find generous living space and a contemporary high-specification kitchen featuring an island, quartz worktops, and integrated appliances. The home also benefits from underfloor heating powered by a gas boiler.

Externally, the property offers a private garden and parking for two cars and a Garage. The development is quietly tucked away just outside West Malling, providing convenient access to the M20 and M26.

Addington Park is only a two-minute walk away, ideal for families and pet owners, while Wrotham Heath Golf Club and Leybourne Lakes are just a short drive from the property.
Council Tax Band: Not currently available, please contact the branch Tenure: Unknown

Disclaimer
All the information has been provided by the developer and is subject to verification. Please note all interior images are from the show home and are indicative only.



1. MONEY LAUNDERING REGULATIONS - Intending purchasers will be asked to produce identification documentation at a later stage and we would ask for your co-operation in order that there will be no delay in agreeing the sale.
2. These particulars do not constitute part or all of an offer or contract.
3. The measurements indicated are supplied for guidance only and as such must be considered incorrect.
4. Potential buyers are advised to recheck the measurements before committing to any expense.
5. Connells has not tested any apparatus, equipment, fixtures, fittings or services and it is the buyers interests to check the working condition of any appliances.
6. Connells has not sought to verify the legal title of the property and the buyers must obtain verification from their solicitor.

Property LOCATION

Show Map
Powered by Apex27