Property SEARCH

5 bed Detached House

£1,350,000

Lower Lees Road, Old Wives Lees, Canterbury, Kent

AVAILABLE


Property FEATURES

  • Detached family home with Tudor origins
  • Set in 0.9759 acres of grounds with stunning views
  • Extended and renovated by the current owners
  • Retained period features throughout
  • Double driveways and useful outbuilding
  • Easy access to village school, pub and high speed trains
View Brochure

Property DESCRIPTION

Sitting in the midst of 0.9759 acres of grounds is this superb residence with stunning views across vineyards and the North Downs AONB. It has been beautifully renovated and extended but still retains wonderful period features reflecting its Tudor origins. The main vehicular entrance is from Lower Ensden Road and leads to a large block paved driveway with off road parking. There is also a parking area off Lower Lees Road together with a pedestrian gate and a pathway to the front entrance. The property has great external appeal with its Kent peg tiled roof, high chimney stack, casement windows and exposed half timbers. The gorgeous entrance hall has original beams, a vast inglenook fireplace, access to a cloakroom and the basement cellar. The dual aspect living room includes beams and a stone fireplace with a log burner while the fabulous triple aspect kitchen and dining area features painted wooden units with quartz worktops housing a variety of appliances, an impressive central island and space for a table and chairs. A bright linkway has access to the rear terrace and utility room. It also leads to the awe inspiring vaulted ceiling games room with six bi-fold doors to the terrace. There is an office and a large double bedroom with a seating area and an ensuite shower as well as a separate entrance from the main parking area so could form part of an annex. A secondary staircase from the games room leads to a mezzanine family area with a vast window and a glazed door to the wonderful roof terrace with breath-taking views. The main oak staircase leads to four double bedrooms, a family bathroom and a main dual aspect bedroom with an original Tudor window, a fitted dressing area and an ensuite shower. A garden shed matches the outside of the house and wraparound terraces enable you to follow the sun. These are surrounded by lawns with shrub beds and apple trees as well as an historical well. What the Owner says:
We love the location and have renovated and extended the property during our seven years here and designed the large garden to be easy to manage using a robot mower that keeps the grass well-manicured.
A three minute drive or a 20 minute walk takes you to Chilham, which includes two pubs, a good primary school and free parking at its mainline station with access to high speed trains to London in less than an hour. It features 16th century black and white houses, The White Horse Inn and tea rooms surrounding the village square with access to Chilham castle and grounds including 300 acres of park and woodland.
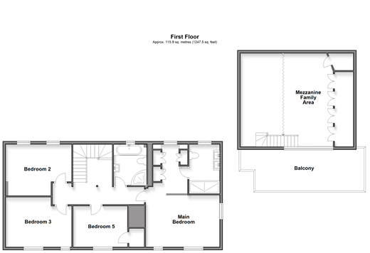
It is not far to Canterbury with its historic buildings, pubs, restaurants and two theatres as well as high street stores, independent shops, recreational facilities and two mainline stations. It also has excellent grammar schools as well as top class public schools and three universities. Room sizes:SPLIT LEVEL GROUND FLOOREntrance Hall: 21'4 x 11'1 (6.51m x 3.38m)Cloak CupboardLiving Room: 21'0 x 13'1 (6.41m x 3.99m)CloakroomKitchen/Dining Area: 21'4 x 14'7 (6.51m x 4.45m)Linkway: 8'11 x 6'11 (2.72m x 2.11m)Utility Room: 12'11 x 7'1 (3.94m x 2.16m)Games Room: 21'0 x 12'10 (6.41m x 3.91m)Bedroom 4: 20'8 x 12'2 (6.30m x 3.71m)En Suite Shower Room: 7'0 x 6'1 (2.14m x 1.86m)Office: 9'3 x 7'10 (2.82m x 2.39m)Playroom: 11'5 x 8'5 (3.48m x 2.57m)SPLIT LEVEL FIRST FLOORLandingMain Bedroom: 15'5 x 10'8 (4.70m x 3.25m)Dressing Area/Walk in Wardrobe: 10'4 x 7'2 (3.15m x 2.19m)En Suite Shower Room: 7'7 x 6'0 (2.31m x 1.83m)Bathroom: 7'10 x 6'9 (2.39m x 2.06m)Bedroom 2: 13'3 x 10'5 (4.04m x 3.18m)Bedroom 3: 13'3 x 10'5 (4.04m x 3.18m)Bedroom 5: 11'4 x 8'9 (3.46m x 2.67m)MEZZANINE SITTING ROOM: 17'5 x 10'3 (5.31m x 3.13m)BalconyFront GardenRear GardenWorkshop: 18'9 x 9'1 (5.72m x 2.77m)Front DrivewayRear Driveway 
The information provided about this property does not constitute or form part of an offer or contract, nor may it be regarded as representations. All interested parties must verify accuracy and your solicitor must verify tenure/lease information, fixtures & fittings and, where the property has been extended/converted, planning/building regulation consents. All dimensions are approximate and quoted for guidance only as are floor plans which are not to scale and their accuracy cannot be confirmed. Reference to appliances and/or services does not imply that they are necessarily in working order or fit for the purpose.
 
Legal advice should be taken to verify fixtures/fittings, planning, alterations and/or lease details. Appliances & services are untested, dimensions are approximate and floor plans are not to scale.
 
We are pleased to offer our customers a range of additional services to help them with moving home. None of these services are obligatory and you are free to use service providers of your choice. Current regulations require all estate agents to inform their customers of the fees they earn for recommending third party services. If you choose to use a service provider recommended by Fine & Country, details of all referral fees can be found at the link below. If you decide to use any of our services, please be assured that this will not increase the fees you pay to our service providers, which remain as quoted directly to you.

Council Tax band: G

Tenure: Freehold

Property LOCATION

Show Map
Powered by Apex27