Property SEARCH

5 bed Equestrian Facility

£1,425,000

Headcorn, Kent

FOR SALE


Property DESCRIPTION

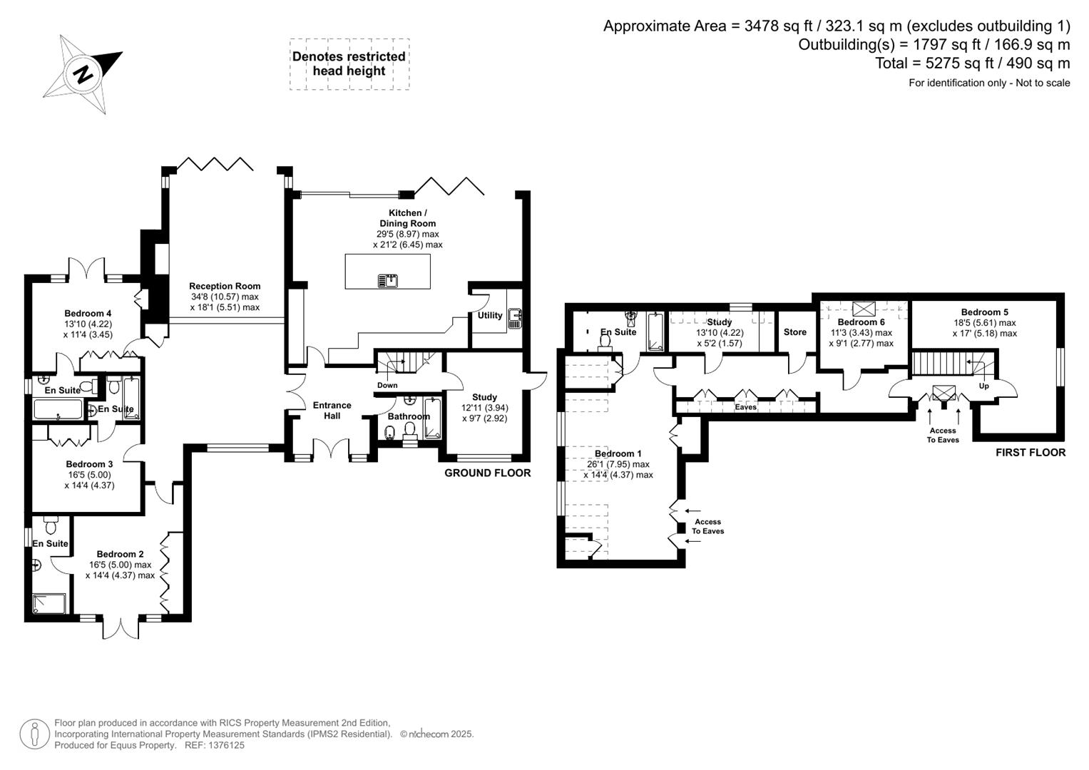
No Chain A substantial detached family home with 5/6 double bedrooms 5 luxury en-suite shower/bathrooms) set in 6.5 acres (*TBV) with extensive equestrian facilities including a 50m x 30m outdoor Riding Arena, 9 box stable yard, large detached barn (scope further stables/other uses like SuperCar Storage).
This unique property, of bespoke design, boasts impressive part vaulted accommodation to the ground floor with full height glazing to most rooms flooding natural light into the whole interior. The house has recently been refurbished, modernised and extended to exacting standards by the current owner with the heart of the home undoubtedly being the stunning open plan kitchen/dining/sitting and family room with feature brick fireplace and wood burner offering superb entertaining spaces embracing a modern indoor/outdoor theme.

For those with extended family living requirements the versatile ground floor layout may offer options to adapt to incorporate a self contained annexe if required.

The property is situated in a rural location with surrounding country walks and off road riding on designated TROTT toll rides yet offers the convenience of being around 1.8 miles from the village of Headcorn with mainline rail station providing direct links to London in around 1 hour and thriving high street of independent shops, including Sainsbury s local supermarket, post office.eip.

Property LOCATION

Show Map
Powered by Apex27