Property SEARCH

2 bed Terraced

£220,000

Charter Street, Chatham, ME4

AVAILABLE


Property FEATURES

  • No Onward Chain
  • Ideal for investment or First Time Buyer
  • Two Reception Rooms
  • New Fitted Kitchen
  • Two Double Bedrooms
  • Walking Distance to Chatham Station
  • Cellar

Property DESCRIPTION

An opportunity for the first time buyer or investor is this two double bedroom terraced home within walking distance to the Chatham Train Station and Town Centre. The property has been refurbished with new kitchen and carpets throughout and is ready to move into.

Stepping inside you are welcomed to the lounge which continues through to the dining area, with a door leading to the cellar which is an ideal place for storage. The kitchen is fitted with modern wall and base units to include integrated oven and hob and integrated fridge freezer. Moving upstairs you have two double bedrooms with feature wrought iron fireplaces. Also with a family bathroom. Outside is an enclosed rear garden with fence surround. Please call the Walderslade Sales Team for further details.

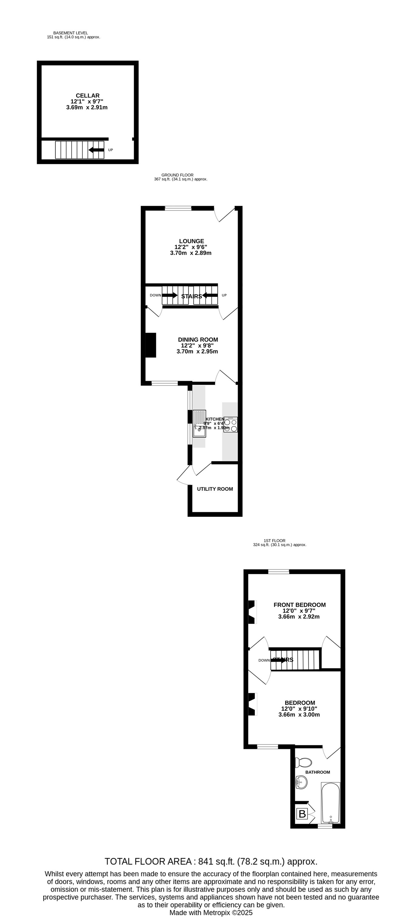
Basement Level


Cellar
12' 1" x 9' 7" (3.68m x 2.92m)

Ground Floor


Lounge
12' 2" x 9' 6" (3.71m x 2.90m)

Dining Room
12' 2" x 9' 8" (3.71m x 2.95m)

Kitchen
9' 9" x 6' 4" (2.97m x 1.93m)

Utility Room


First Floor


Bedroom 1
12' 0" x 9' 7" (3.66m x 2.92m)

Bedroom 2
12' 0" x 9' 10" (3.66m x 3.00m)

Bathroom

Property LOCATION

Show Map
Powered by Apex27