Property SEARCH

3 bed Terraced

£220,000

Bright Road, Chatham, ME4

AVAILABLE


Property FEATURES

  • No Onward Chain
  • Three Double Bedrooms
  • New Fitted Kitchen
  • Downstairs Bathroom
  • Close to local Amenities
  • Cellar
  • Separate Dining Room
  • Lounge

Property DESCRIPTION

Being offered with no onward chain is this opportunity for the investor or first time buyer. On entering the first floor, you have the lounge and bedroom three. To the ground floor you are welcomed to the dining room and a new modern fitted kitchen with a range of fitted wall and base units. It also offers a cellar which is a great space for storage or could be utilised as an additional room subject to being renovated. Moving upstairs to the second floor you have again two double bedrooms and outside you have an enclosed rear garden.

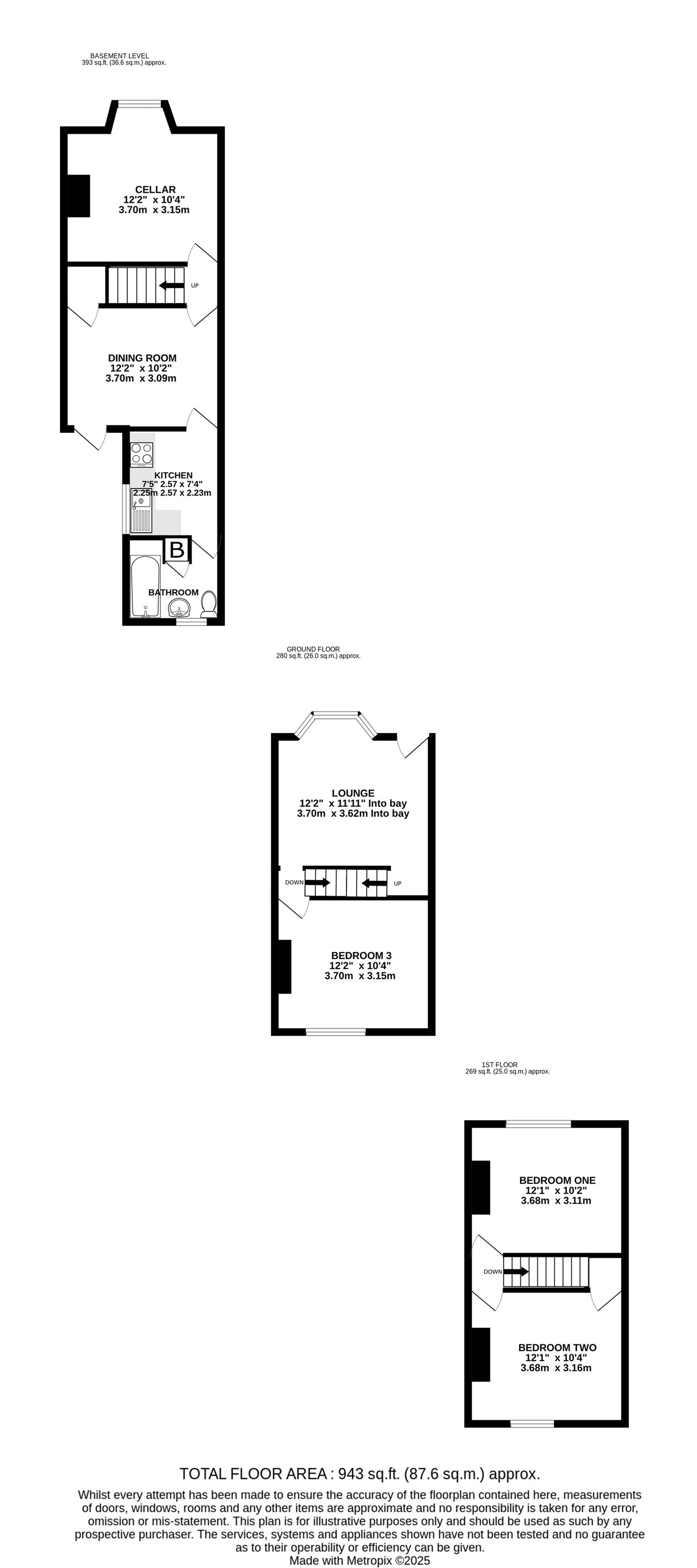
Basement Level


Cellar
12' 2" x 10' 4" (3.71m x 3.15m)

Dining Room
12' 2" x 10' 2" (3.71m x 3.10m)

Kitchen


Bathroom


Ground Floor


Lounge
12' 2" x 11' 11" (3.71m x 3.63m)

Bedroom 3
12' 2" x 10' 4" (3.71m x 3.15m)

First Floor


Bedroom 1
12' 1" x 10' 2" (3.68m x 3.10m)

Bedroom 2
12' 1" x 10' 4" (3.68m x 3.15m)

Property LOCATION

Show Map
Powered by Apex27