Property SEARCH

3 bed Terraced

£350,000

Kinder Close, London

AVAILABLE


Property FEATURES

  • The images marked "Virtual Stager" show styling potential only. All other images show the property as currently presented.
  • A modern family home
  • Offered for sale with no chain
  • Garage en bloc
  • Set within a cul de sac with schools and open spaces on your doorstep
  • Bus stops nearby with access to Abbey Wood rail station and the Elizabeth Line
  • Above-average EPC energy efficiency rating C (70)
View Brochure

Property DESCRIPTION

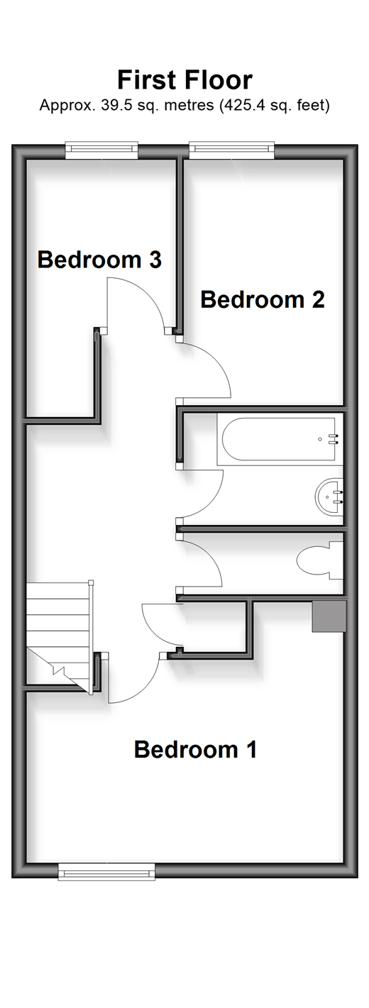
This terraced family home is offered for sale with no forward chain, a garage en bloc and schools as well as open spaces literally on your doorstep. There are also bus stops close by to take you to Abbey Wood Station for access to the Elizabeth Line. Room sizes:Entrance PorchEntrance HallwayKitchen: 11'0 x 7'4 (3.36m x 2.24m)Lounge/Diner: 19'0 x 13'9 (5.80m x 4.19m)LandingBedroom 1: 13'9 x 8'10 (4.19m x 2.69m)Bedroom 2: 10'0 x 7'2 (3.05m x 2.19m)Bedroom 3: 11'0 x 6'3 (3.36m x 1.91m)BathroomSeparate ToiletFront GardenRear GardenGarage en bloc 
The information provided about this property does not constitute or form part of an offer or contract, nor may it be regarded as representations. All interested parties must verify accuracy and your solicitor must verify tenure/lease information, fixtures & fittings and, where the property has been extended/converted, planning/building regulation consents. All dimensions are approximate and quoted for guidance only as are floor plans which are not to scale and their accuracy cannot be confirmed. Reference to appliances and/or services does not imply that they are necessarily in working order or fit for the purpose.
 
Legal advice should be taken to verify fixtures/fittings, planning, alterations and/or lease details. Appliances & services are untested, dimensions are approximate and floor plans are not to scale. Through a Homewise Home For Life Plan people aged 60+ can secure this property for up to 59% less, by purchasing a Lifetime Lease.
 
We are pleased to offer our customers a range of additional services to help them with moving home. None of these services are obligatory and you are free to use service providers of your choice. Current regulations require all estate agents to inform their customers of the fees they earn for recommending third party services. If you choose to use a service provider recommended by Wards, details of all referral fees can be found at the link below. If you decide to use any of our services, please be assured that this will not increase the fees you pay to our service providers, which remain as quoted directly to you.

Council Tax band: C

Tenure: Freehold

Property LOCATION

Show Map
Powered by Apex27