Property SEARCH

4 bed Detached House

£575,000

Ocean's Edge, St. Marys Bay, Romney Marsh, TN29

AVAILABLE


Property FEATURES

  • Stamp duty contribution available
  • Show home open - Book your viewing today!
  • 2,054 Sq.Ft
  • Fully fitted kitchen / Spacious open plan living
  • Internal garage / Separate study
  • High finish throughout
  • Beachside location
  • Part exchange available - contact us for more information
View Brochure

Property DESCRIPTION

SUMMARY
Stamp duty contribution available! Contact us for more information!
Ocean's Edge, an exclusive development just steps away from St Marys Bay shoreline!
Phase 1 consists of 10 1 & 2 bed apartments, and 30 3 & 4 bed homes, all finished to a high standard.



DESCRIPTION
Plot 57 - Show home open, book your viewing today!

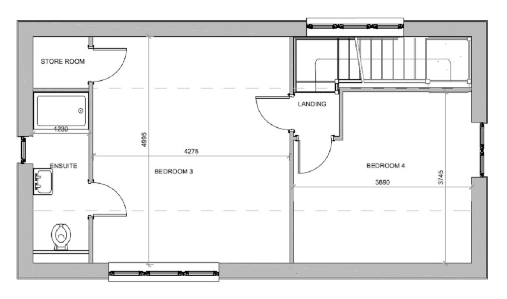
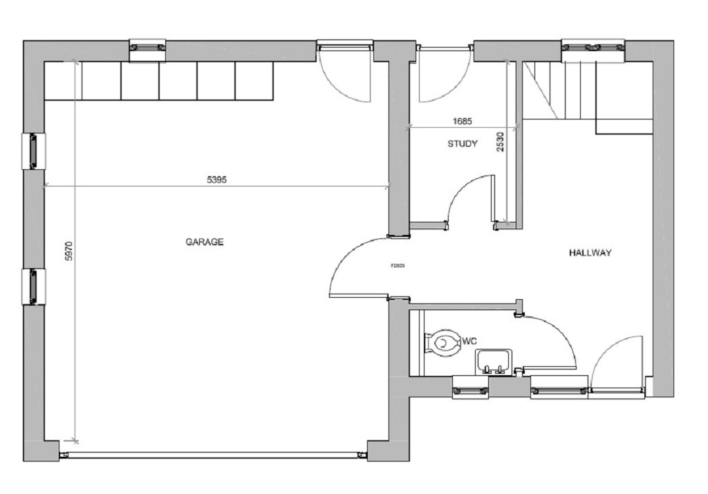
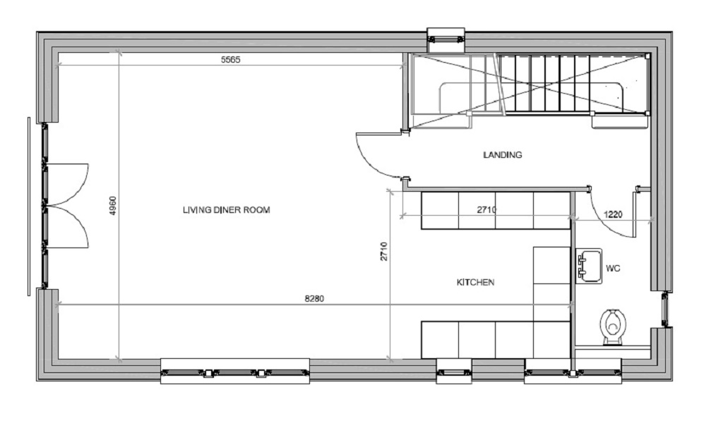
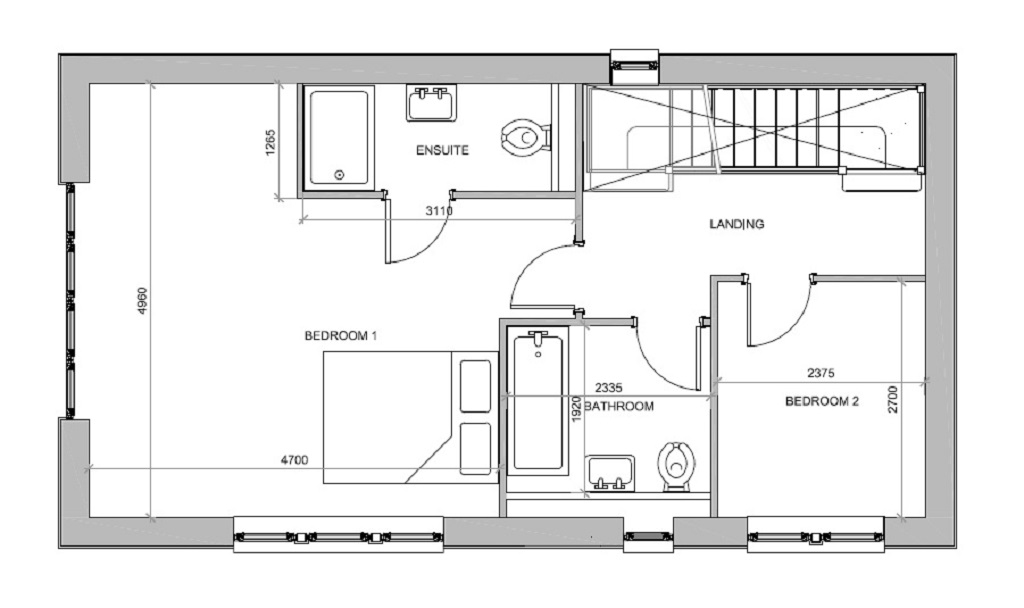
This stunning new homes boasts 4 generous bedrooms, 1 family bathroom plus 2 en-suites and 2 cloakrooms. The first floor offers a large open plan kitchen/living area with separate study to the ground floor. Plot 57 also comes with a private internal garage with electric doors and an EV charging point.

This spacious 2,054 Sq.Ft home is finished to a high standard, with a fully fitted kitchen complete with BOSCH appliances to include; double oven, microwave, fridge freezer and dishwasher. All wet rooms come complete with Roca sanitary ware and tiled flooring.

Ocean's Edge is an exclusive development in the coastal village of St Marys Bay. Phase 1 offers 40 new homes where every property comes with private parking.

St Marys Bay is situated between New Romney and Dymchurch, offering a wide range of activities and eateries, from local Golf courses to Seafront amusements, fish and chips on the beach to pubs and restaurants. The long sandy beach stretched north to Dymchurch and South to Littlestone-on-Sea.

Ocean's Edge is the ideal home for peaceful seafront living, whilst being in close proximity of local towns and access to larger cities with Ashford International Train Station being only a 30 minute drive from the development, where you can reach London St Pancras in just 38 minutes!

Contact us for more information - Brochure available upon request!
Council Tax Band: Not currently available, please contact the branch Tenure: Unknown

Disclaimer
All information has been provided by the developer and is subject to verification. Please note all interior images are from the show home and are indicative only.



1. MONEY LAUNDERING REGULATIONS - Intending purchasers will be asked to produce identification documentation at a later stage and we would ask for your co-operation in order that there will be no delay in agreeing the sale.
2. These particulars do not constitute part or all of an offer or contract.
3. The measurements indicated are supplied for guidance only and as such must be considered incorrect.
4. Potential buyers are advised to recheck the measurements before committing to any expense.
5. Connells has not tested any apparatus, equipment, fixtures, fittings or services and it is the buyers interests to check the working condition of any appliances.
6. Connells has not sought to verify the legal title of the property and the buyers must obtain verification from their solicitor.

Property LOCATION

Show Map
Powered by Apex27