Property SEARCH

1 bed Apartment

£175,000

Ocean's Edge, St. Marys Bay, Romney Marsh, TN29

AVAILABLE


Property FEATURES

  • Stamp duty contribution available
  • Show home open - Book your viewing today!
  • First floor apartment
  • Fully fitted kitchen and flooring
  • Parking
  • High finish throughout
  • Beachside location
  • Ready to move into!
View Brochure

Property DESCRIPTION

SUMMARY
Stamp duty contribution available! Contact us for more information!
Ocean's Edge, an exclusive development just steps away from St Marys Bay shoreline!
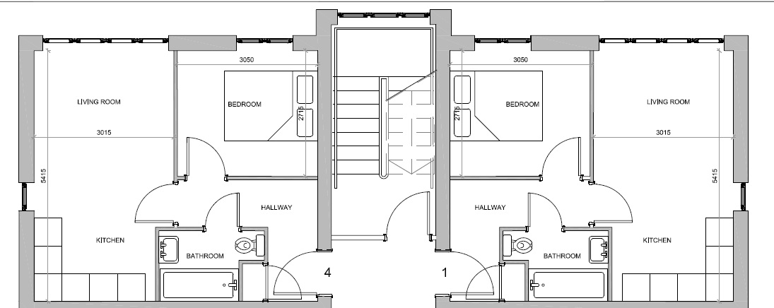
Phase 1 consists of 10 1 & 2 bed apartments, and 30 3 & 4 bed homes, all finished to a high standard.



DESCRIPTION
Show home open, book your viewing today!

This stunning new home boasts a large double bedroom, 1 family bathroom, a large open plan kitchen/living area and private parking! This plot comes fully fitted with kitchen, appliances and flooring - making your new home ready to move in to!

Ocean's Edge is an exclusive development in the coastal village of St Marys Bay. Phase 1 offers 40 new homes where every property comes with private parking.

St Marys Bay is situated between New Romney and Dymchurch, offering a wide range of activities and eateries, from local Golf courses to Seafront amusements, fish and chips on the beach to pubs and restaurants. The long sandy beach stretched north to Dymchurch and South to Littlestone-on-Sea.

Ocean's Edge is the ideal home for peaceful seafront living, whilst being in close proximity of local towns and access to larger cities with Ashford International Train Station being only a 30 minute drive from the development, where you can reach London St Pancras in just 38 minutes!

Contact us for more information - Brochure available upon request!
Council Tax Band: Not currently available, please contact the branch Tenure: Leasehold Current Annual Ground Rent (£): Not currently available, please contact the branch Ground Rent Review Period (Years): Not currently available, please contact the branch Ground Rent Increase (%): Not currently available, please contact the branch Current Annual Service Charge (£): Not currently available, please contact the branch Date of Next Service Charge Review: Not currently available, please contact the branch Number of Years Left on Lease: Not currently available, please contact the branch

Disclaimer
All information has been provided by the developer and is subject to verification. Please note all interior images are from the 1 bed apartment show home and are indicative only.



This is a Leasehold property with details as follows; Term of Lease 999 years from 08 May 2025. Should you require further information please contact the branch. Please Note additional fees could be incurred for items such as Leasehold packs.



1. MONEY LAUNDERING REGULATIONS - Intending purchasers will be asked to produce identification documentation at a later stage and we would ask for your co-operation in order that there will be no delay in agreeing the sale.
2. These particulars do not constitute part or all of an offer or contract.
3. The measurements indicated are supplied for guidance only and as such must be considered incorrect.
4. Potential buyers are advised to recheck the measurements before committing to any expense.
5. Connells has not tested any apparatus, equipment, fixtures, fittings or services and it is the buyers interests to check the working condition of any appliances.
6. Connells has not sought to verify the legal title of the property and the buyers must obtain verification from their solicitor.

Property LOCATION

Show Map
Powered by Apex27