Property SEARCH

4 bed Semi-detached House

£650,000

Lower Hartlip Road, Hartlip, Sittingbourne, ME9

AVAILABLE


Property FEATURES

  • Beautifully Presented Three Bedroom Semi-Detached Cottage
  • One Bedroom Annexe - Perfect Multi-Generational Dwelling
  • Located In The Picturesque Village Of Hartlip
  • Spacious Bright & Airy Open Plan Kitchen/Living Area
  • Driveway For Multiple Cars
  • Second Reception/Dining Room, Utility & W/C
  • Modern & Stylish Family Bathroom With Separate Shower Cubicle
  • Generous Rear Garden Overlooking Paddocks

Property DESCRIPTION

Beautiful Modern Semi-Detached Cottage with One Bedroom Annexe in Picturesque Hartlip Village.

Nestled in the heart of the picturesque village of Hartlip, this beautifully presented, move-in ready modern cottage with a versatile one-bedroom annexe offers stunning scenic views over open paddocks and easy access to countryside walks right on your doorstep. Perfect for multi-generational living, guest accommodation, or a private workspace, the annexe provides exceptional flexibility in a truly idyllic setting. The ground floor welcomes you with a spacious entrance hall leading to a convenient cloakroom/WC and a light-filled open-plan kitchen and living area. The kitchen features a stylish central island and integrated appliances, including a dishwasher and fridge freezer, while bi-fold doors open onto the garden, filling the space with natural light. A log burner adds warmth and character, creating a perfect setting for relaxing or entertaining. You also benefit from a separate reception/dining room and a handy utility room. Upstairs, you'll find three generously sized double bedrooms and a luxurious family bathroom complete with a four-piece suite, including a separate bath and shower. The ground floor of the annexe has its own living area with kitchenette and direct access to the garden through bi-fold doors. Upstairs the spacious bedroom benefits from built-in wardrobes and a modern en-suite shower room. Externally, the rear garden offers an ideal mix of paved, decked, and lawn areas, all overlooking the peaceful farmers' paddock beyond. To the front, a low maintenance paved driveway provides parking for multiple vehicles. Perfectly located for commuters, the property has easy access to the A2/M2, nearby amenities, and is just a short walk from the local village pub. Surrounded by beautiful countryside walks and breathtaking views, this stunning home combines rural charm with modern comfort. This exceptional property won't be on the market for long, contact the Greyfox Sales Team in Rainham today to arrange your viewing.

Note - The loft has spray foam insulation which can boost energy efficiency, and the vendors will provide a specialist report conforming to the PCA inspection protocol March 2023. However buyers should check their lender requirements with their mortgage advisor before making a formal offer.



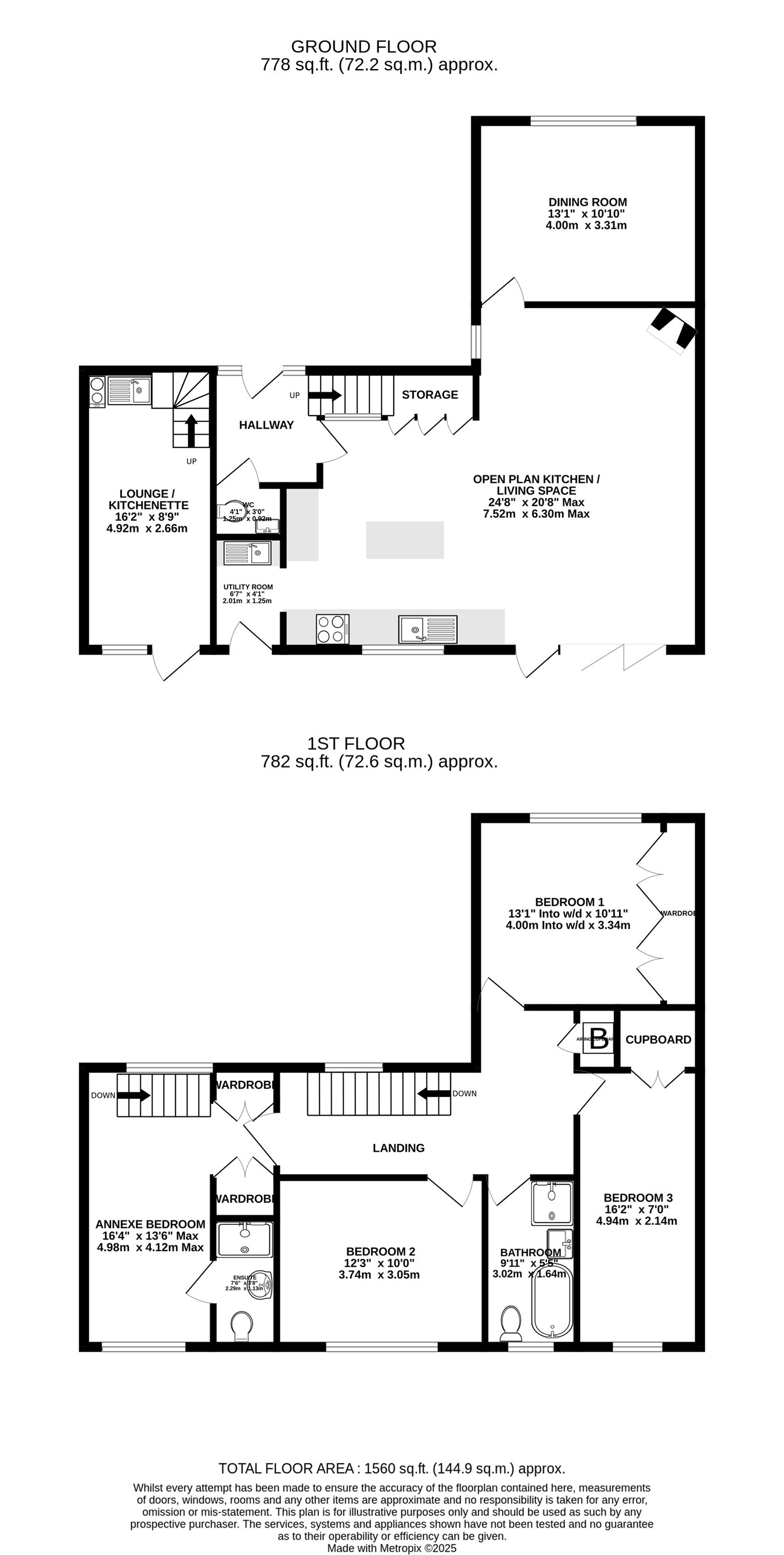
Ground Floor


Open Plan Kitchen/ Living Space
24' 8" x 20' 8" (7.52m x 6.30m)

Dining Room
13' 1" x 10' 10" (3.99m x 3.30m)

Utility Room
6' 7" x 4' 1" (2.01m x 1.24m)

WC
4' 1" x 3' 0" (1.24m x 0.91m)

Lounge/ Kitchenette
16' 2" x 8' 9" (4.93m x 2.67m)

First Floor


Bedroom 1
16' 4" x 13' 6" (4.98m x 4.11m)

En Suite
7' 6" x 3' 8" (2.29m x 1.12m)

Bedroom 2
13' 1" x 10' 11" (3.99m x 3.33m)

Bedroom 3
16' 2" x 7' 0" (4.93m x 2.13m)

Bedroom 4
12' 3" x 10' 0" (3.73m x 3.05m)

Bathroom
9' 11" x 5' 5" (3.02m x 1.65m)

Property LOCATION

Show Map
Powered by Apex27